Szczecin, Pomorzany

Lokale na Wynajem
Oferta specjalna
Obniżka ceny
nr oferty 428915
powierzchnia 96 m2
ilość pokoi 1
piętro 3 / 4
Lokal na wynajem Pomorzany

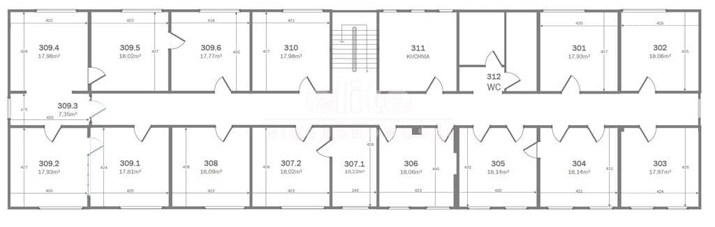
Na wynajem lokal mieszczący się na III piętrze w biurowcu znajdującym się przy pętli Pomorzany.
Biuro o powierzchni 96,79 m2, składające się z 5 klimatyzowanych pokoi.

Biura są po remoncie - gotowe do wynajęcia, na podłogach ułożono panele a ściany zostały odmalowane.
Na każdym piętrze znajduje się WC oraz pomieszczenie socjalne dostępne dla najemców.

Czynsz najmu wynosi od 46zł/m² + VAT. (w czynszu wliczone są opłaty za: wodę, ogrzewanie, śmieci). Dodatkowo płatny jest prąd według zużycia oraz Internet - 50 zł/mc (w budynku światłowód Orange).

Dla najemców dostępne są miejsca parkingowe na terenie obiektu w cenie 150 zł/mc   za miejsce postojowe.

W budynku dostępne są biura o zróżnicowanych powierzchniach od 10 m2 do ok. 300 m2 (całe piętro). Istnieje możliwość aranżacji pomieszczeń według własnych potrzeb. Biura są przeznaczone do prowadzenia działalności biurowej oraz usługowej.

Zapraszam do kontaktu i na prezentację.
WYŁĄCZNOŚĆ

KUPUJEMY NIERUCHOMOŚCI ZA GOTÓWKĘ w Szczecinie oraz nad morzem, również zadłużone: mieszkania, domy, działki - płacimy natychmiast

 Powyższe ogłoszenie ma wyłącznie charakter informacyjny. Nie stanowi ono oferty w myśl art. 66 i n. ustawy z dnia 23.04.1964r. Kodeks cywilny (Dz.U. 1964r. Nr 16, poz. 93, ze zm.).

Cena
3 871 zł
Cena za m2
46 zł
Miejscowość
Szczecin, Pomorzany
Rodzaj budynku
Budynek biurowy
Stan prawny
Własność
Rok budowy
1964
Powierzchnia
96 m2
Piętro
3
Liczba pokoi
1
Wyświetleń
526
3 871 PLN
46 PLN / m2

Angelika Strzelecka

tel. +48 789 452 065

angelika@elite.nieruchomosci.pl

Wyrażam zgodę na przetwarzanie danych
3 871
Chcesz otrzymywać podobne oferty?

Skorzystaj z automatycznych powiadomień e-mail o nowych ogłoszeniach

© 2026 Elite Nieruchomości Szczecin - Mieszkania i domy na sprzedaż - Szczecin, Warszewo, Mierzyn, Bezrzecze, Gumieńce