Szczecin, Śródmieście-Centrum

Lokale na Wynajem
nr oferty 436973
powierzchnia 204 m2
piętro parter / 10
Wynajem lokal 204 m2

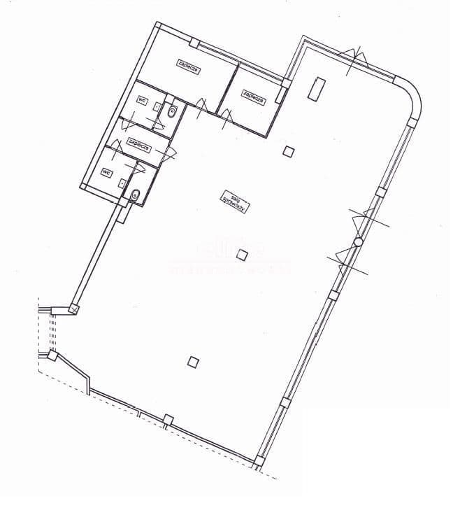
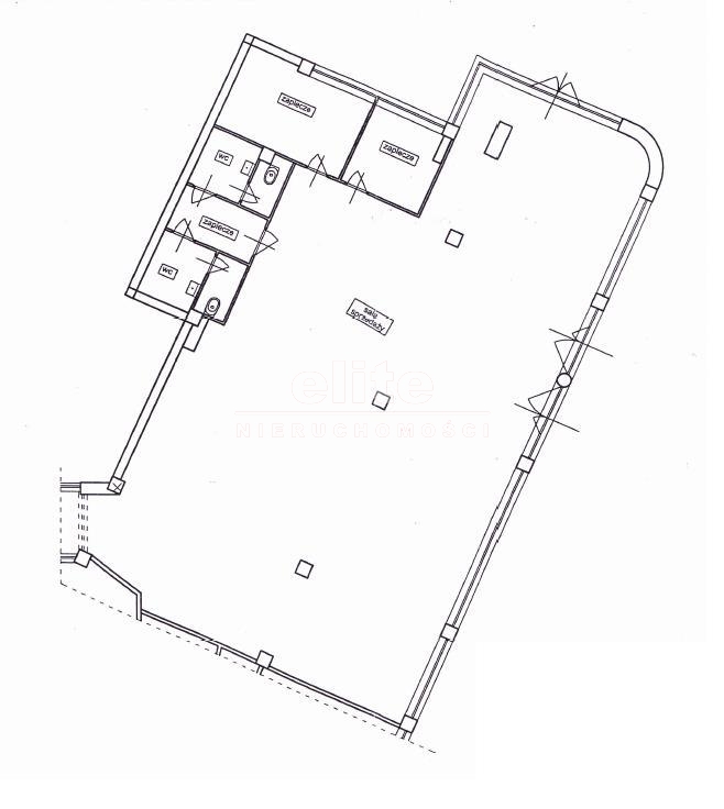
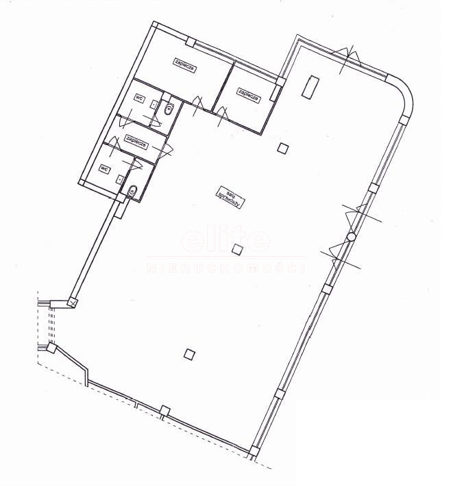
Do wynajęcia lokal handlowo - usługowy o powierzchni   204 m2 położny na parterze budynku mieszkalno - usługowego.

Szerokie witryny, dwa wejścia z poziomu 0 (bez schodków).

Powierzchnia najmu nadaje się na każdą działalność: biurową, usługową, handlową, itp.

Na parterze znajduje się:
• recepcja,
• 3 gabinety (13/13/13 m2),
• sala konferencyjna (34 m2),
• zaplecze socjalne,
• pomieszczenie socjalne,
• WC.

Lokal z dużym potencjałem, posiada dodatkową przestrzeń w postaci antresoli o powierzchni 44 m2, o pełnej wysokości i nośności.

Ogrzewanie i ciepła woda z sieci miejskiej. W lokalu rozprowadzona jest instalacja alarmowa.

Czynsz do zarządcy w wysokości ok. 2.800 zł zawiera zaliczki na ciepłą i zimną wodę, odprowadzenie ścieków, ogrzewanie, wywóz śmieci.
Dodatkowo płatna energia elektryczna według zużycia.

Wymagana kaucja w wysokości 6000 zł.

Lokalizacja w żółtej strefie SPP, duża liczba miejsc parkingowych w okolicy.

KUPUJEMY NIERUCHOMOŚCI ZA GOTÓWKĘ w Szczecinie oraz nad morzem, również zadłużone: mieszkania, domy, działki - płacimy natychmiast

 Powyższe ogłoszenie ma wyłącznie charakter informacyjny. Nie stanowi ono oferty w myśl art. 66 i n. ustawy z dnia 23.04.1964r. Kodeks cywilny (Dz.U. 1964r. Nr 16, poz. 93, ze zm.).

Cena
4 000 zł
Cena za m2
19 zł
Miejscowość
Szczecin, Śródmieście-Centrum
Rodzaj budynku
Apartamentowo-biurowy
Stan prawny
Własność
Rok budowy
1985
Powierzchnia
204 m2
Dodatkowe
Winda
Wyświetleń
22
4 000 PLN
19 PLN / m2

ELITE nieruchomości

tel. 91 817 17 17

zainteresowania@elite.nieruchomosci.pl

Wyrażam zgodę na przetwarzanie danych
4 000
Chcesz otrzymywać podobne oferty?

Skorzystaj z automatycznych powiadomień e-mail o nowych ogłoszeniach

© 2025 Elite Nieruchomości Szczecin - Mieszkania i domy na sprzedaż - Szczecin, Warszewo, Mierzyn, Bezrzecze, Gumieńce