Szczecin, Centrum

Mieszkania na Sprzedaż
nr oferty 437981
powierzchnia 110 m2
ilość pokoi 4
piętro 3 / 4
standard Do remontu
Centrum, 4 pokoje, 110,41m2, balkon

Oferuję na sprzedaż duże mieszkanie do remontu w bardzo dobrej i pożądanej lokalizacji. W jego pobliżu znajdują się liczne obiekty użyteczności publicznej, blisko jest do komunikacji miejskiej.

Lokal o funkcjonalnym układzie wnętrz. Idealny także na biura i gabinety.

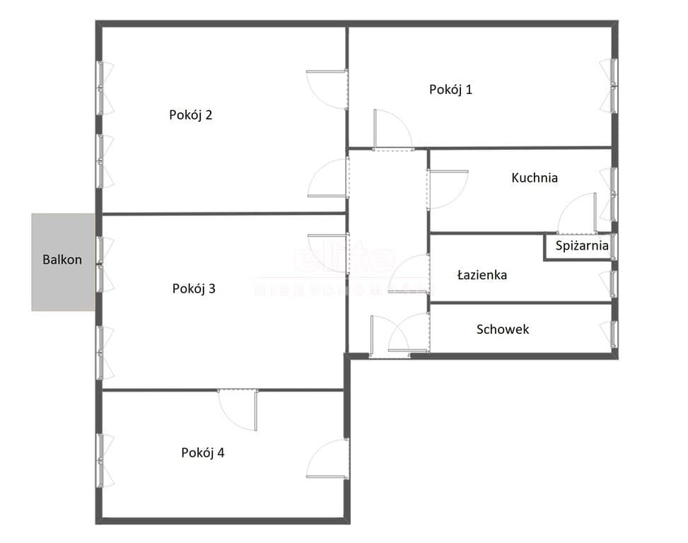
Na powierzchnię mieszkania 110,41 m2 składają się:
* pokój nr 1 salon (ok. 22,55 m2) z balkonem
* pokój nr 2 sypialnia (ok. 15,4 m2)
* pokój nr 3 (ok.23,3 m2)
* pokój nr 4 (ok.18,22 m2)
* kuchnia (ok.10 m2)
* schowek (ok.5 m2)
* łazienka (ok.7 m2)
* przedpokój (ok.8,94 m2)

Mieszkanie do remontu, na podłodze deski. Okna pcv, drzwi drewniane. W jednym z pokoi znajduje się działający piec kaflowy, w dobrym stanie wizualnym. Ogrzewanie i ciepła woda z gazowego pieca dwuobiegowego. Czynsz ok. 365zł (1 osoba) + ok. 280zł/m-c + prąd wg zużycia

Do mieszkania przynależy piwnica ok. 6m2 oraz bardzo duży strych ogólnodostępny. Dla mieszkańców dostępny parking z bramą otwieraną na pilot.

Polecam lokal z uwagi na pożądaną lokalizację, dobrą inwestycję na przyszłość, biura, gabinety oraz duże możliwości własnej aranżacji, stworzenia pięknego i wyjątkowego własnego mieszkania.

Zapraszam na prezentację.

KUPUJEMY NIERUCHOMOŚCI ZA GOTÓWKĘ w Szczecinie oraz nad morzem, również zadłużone: mieszkania, domy, działki - płacimy natychmiast

 Powyższe ogłoszenie ma wyłącznie charakter informacyjny. Nie stanowi ono oferty w myśl art. 66 i n. ustawy z dnia 23.04.1964r. Kodeks cywilny (Dz.U. 1964r. Nr 16, poz. 93, ze zm.).

Cena
830 000 zł
Cena za m2
7 517 zł
Czynsz administracyjny
365 zł
Miejscowość
Szczecin, Centrum
Rodzaj budynku
Kamienica
Stan prawny
Własność
Rok budowy
1930
Powierzchnia
110 m2
Standard
Do remontu
Piętro
3
Liczba pokoi
4
Ogrzewanie
Gazowe
Ciepła woda
Piec gazowy
Typ kuchni
Oddzielna
Wyświetleń
18
Sprawdź ratę kredytu
830 000 PLN
7 517 PLN / m2

ELITE nieruchomości

tel. 91 817 17 17

zainteresowania@elite.nieruchomosci.pl

Wyrażam zgodę na przetwarzanie danych
830 000 Do remontu
Chcesz otrzymywać podobne oferty?

Skorzystaj z automatycznych powiadomień e-mail o nowych ogłoszeniach

© 2026 Elite Nieruchomości Szczecin - Mieszkania i domy na sprzedaż - Szczecin, Warszewo, Mierzyn, Bezrzecze, Gumieńce