Planujesz skredytować to marzenie – zadzwoń.
Polecam na sprzedaż mieszkanie położone przy Bulwarach Szczecińskich, w samym centrum Szczecina.
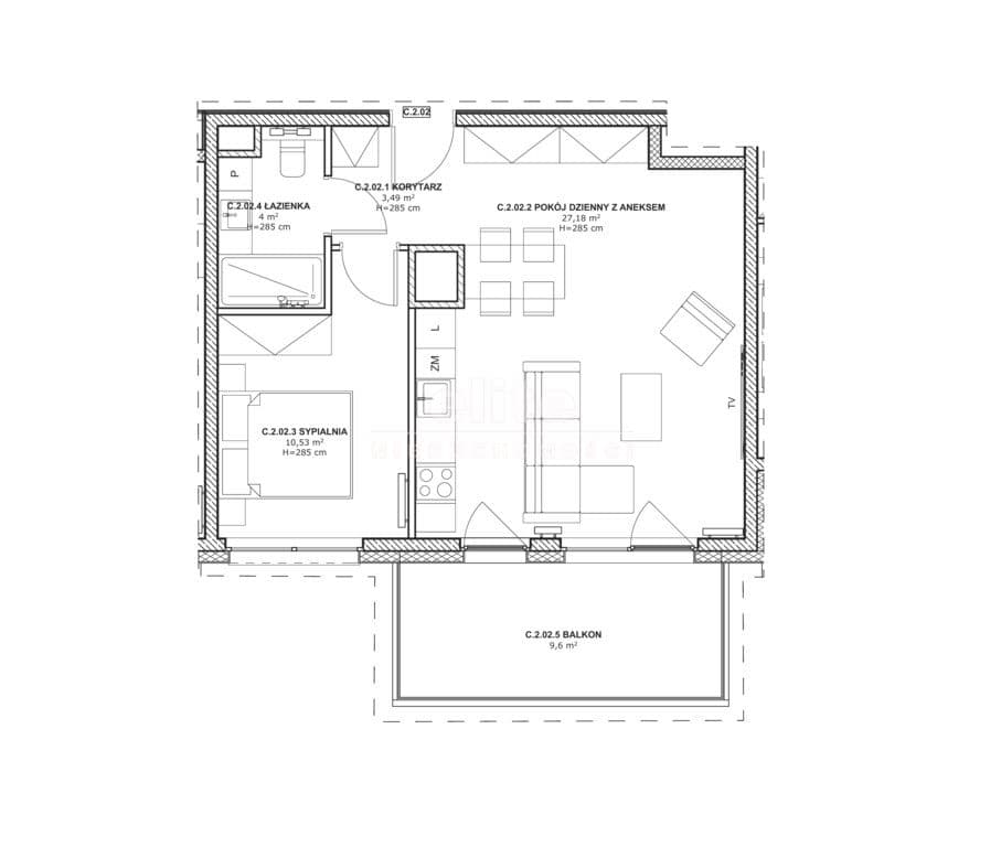
Mieszkanie w stanie deweloperskim, do własnej aranżacji.
Lokal o powierzchni 45,20 m2 składa się z:
- pokoju dziennego z aneksem o powierzchni 27,18 m2 z wyjściem na balkon - 10 m2
- sypialni o powierzchni 10,53 m2
- łazienki z wc o powierzchni 4 m2
- korytarza o powierzchni 3,49 m2 z miejscem na szafę.
Możliwość nabycia komórki lokatorskiej i garażu podziemnego za dodatkową opłatą 73 300 zł.
Budynek nowy, z windą, położony w doskonałym punkcie miasta – blisko bulwarów spacerowych, restauracji, sklepów i komunikacji miejskiej. To idealny wybór zarówno do zamieszkania, jak i jako inwestycja pod wynajem krótkoterminowy, która będzie przyciągać turystów i gości biznesowych przez cały rok.
Zapraszam na prezentację.
KUPUJEMY NIERUCHOMOŚCI ZA GOTÓWKĘ w Szczecinie oraz nad morzem, również zadłużone: mieszkania, domy, działki - płacimy natychmiast
Powyższe ogłoszenie ma wyłącznie charakter informacyjny. Nie stanowi ono oferty w myśl art. 66 i n. ustawy z dnia 23.04.1964r. Kodeks cywilny (Dz.U. 1964r. Nr 16, poz. 93, ze zm.).