Do sprzedania mieszkanie od strony północno-zachodniej w budynku SKY GARDEN przy ul. Niedziałkowskiego 24.
Widok na stronę Piotra Skargi, Felczaka.
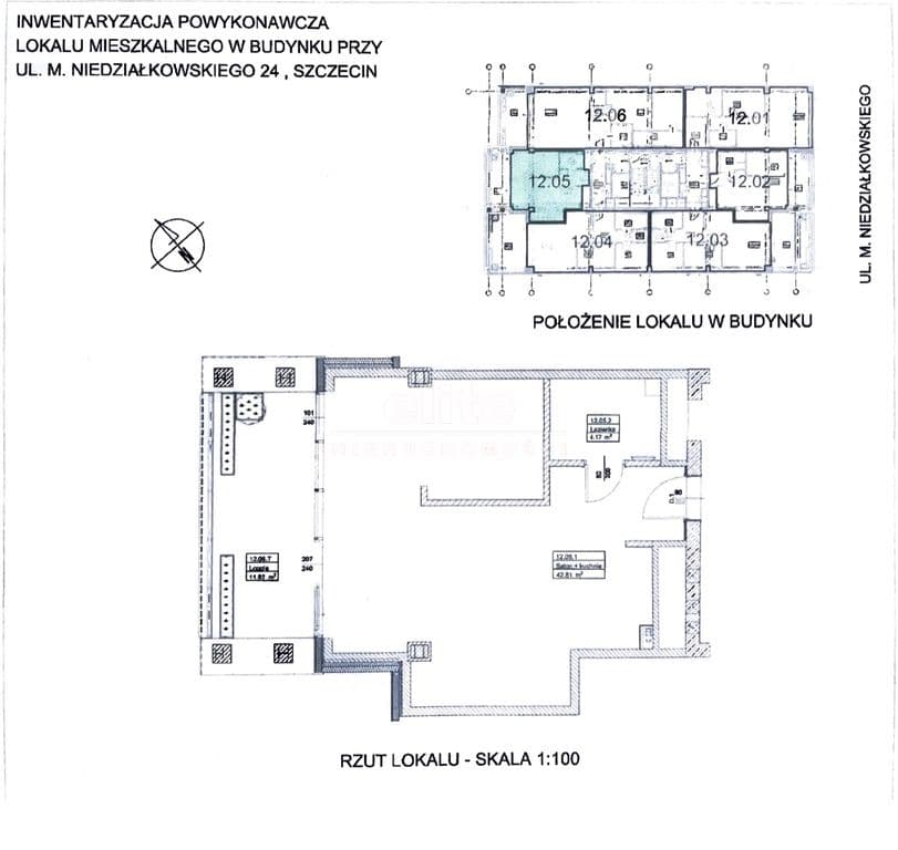
Na powierzchnie 46,98 m2 składa się salon z aneksem kuchennym, sypialnia oraz łazienka (4,17m2).
Ogrzewanie podłogowe z sieci miejskiej oraz klimatyzacja.
Do mieszkania przylega loggia o pow. 11,92m2
W cenie jest również komórka lokatorska o pow. 2,43m2 oraz miejsce postojowe, obie nieruchomosci zlokalizowane na 4 pietrze budynku.
Aktualnie jest zmiana zarządcy. Dotychczasowy czynsz 1200 zł (zarząd nieruchomością wspólna, media) od października ma zostać obniżony.
Mieszkanie w standardzie deweloperskim, sprzedawane na rynku wtórnym przez firmę. VAT w cenie.
Polecam i zapraszam.
KUPUJEMY NIERUCHOMOŚCI ZA GOTÓWKĘ w Szczecinie oraz nad morzem, również zadłużone: mieszkania, domy, działki - płacimy natychmiast
Powyższe ogłoszenie ma wyłącznie charakter informacyjny. Nie stanowi ono oferty w myśl art. 66 i n. ustawy z dnia 23.04.1964r. Kodeks cywilny (Dz.U. 1964r. Nr 16, poz. 93, ze zm.).