Prezentujemy ofertę sprzedaży przestronnego, dwupokojowego mieszkania w ścisłym Centrum vis a vis Galaxy. Lokal znajduje się w odnowionej kamienicy, w ślepej uliczce o minimalnym natężeniu ruchu. Mieszkanie z potencjałem do własnej aranżacji, ale bez konieczności wymiany elektryki czy pionów hydraulicznych. Idealne dla osób szukających wygód związanych z bliskością miejskiej infrastruktury, ale bez hałasu i zgiełku.
Pokoje są bardzo zbliżone pod kątem wielkości, więc jest to bardzo dobra opcja dla inwestora pod wynajem.
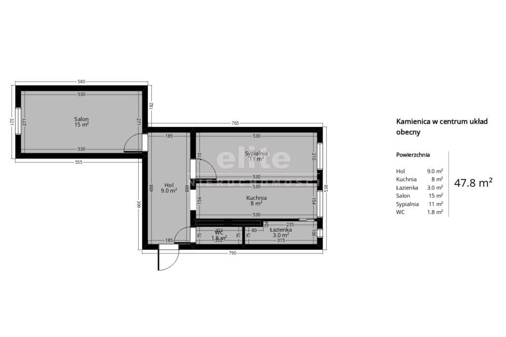
Możliwość łatwego utworzenia przestronnego salonu poprzez usunięcie ścianki pomiędzy sypialnią a kuchnią (jedna warstwa cegły "na sztorc").
Cena do lekkiej negocjacji...
Mieszkanie:
* powierzchnia 47,8mkw, II piętro, wystawa na dwie strony
- dwa pokoje z podstawowym umeblowaniem
- duży przedpokój, gdzie obecnie znajduje się pojemna szafa
- widna kuchnia, w której znajduje się kuchenka gazowa, ale jest także przygotowany kabel 3x2.5 pod podłączenie kuchenki indukcyjnej
- łazienka z oknem, kabiną prysznicową i umywalką
- wc w osobnym pomieszczeniu
* instalacja grzewcza wymieniona została w 2000 r. po usunięciu pieców kaflowych
* instalacja elektryczna nowego typu (miedziana)
* wymieniona hydraulika (także piony)
* okna drewniane nowego typu w bardzo dobrym stanie (uchylne)
* drzwi wejściowe antywłamaniowe
* ogrzewanie i ciepła woda z sieci miejskiej
Budynek:
* nowy dach i elewacja
* izolacja pionowa i pozioma budynku
* wyremontowana klatka schodowa
* wymienione piony hydrauliczne
* monitoring wokół budynku i w piwnicy
* miejsca parkingowe dostępne na podwórzu za bramą zamykaną na pilota
Okolica:
Kamienica znajduje się w ścisłym centrum Szczecina. Jest to rewelacyjna lokalizacja dla osób szukających czegoś w kamienicznym klimacie, ale blisko miejskiej infrastruktury, lub inwestycyjnie pod wynajem ze względu na bliskość punktów handlowych, usługowych i komunikacji miejskiej.
W okolicy znajdziemy CH Galaxy, liczne punkty gastronomiczne i restauracje, banki, apteki, paczkomaty, stację benzynową, szkoły, przedszkola, punkty usługowe, place zabaw, boisko orlik itp. W rejonie Placu Grunwaldzkiego i Placu Rodła znajdują się przystanki głównych linii autobusowych i tramwajowych umożliwiające podróż w każdym kierunku Szczecina.
W spacerowej odległości usytuowany jest Park Żeromskiego i Wały Chrobrego. Do Parku Kasprowicza odległość wynosi 2.5 km.
Ważne:
* czynsz przy 3 osobach tylko 775zł z funduszem i zaliczkami na wodę i ogrzewanie!
* do mieszkania przynależy czysta i sucha piwnica o pow. 11mkw (betonowa podłoga, oświetlenie 12V)
* TV naziemna cyfrowa na dachu
* nowa instalacja elektryczna i hydrauliczna
* spokojni sąsiedzi
KUPUJEMY NIERUCHOMOŚCI ZA GOTÓWKĘ w Szczecinie oraz nad morzem, również zadłużone: mieszkania, domy, działki - płacimy natychmiast
Powyższe ogłoszenie ma wyłącznie charakter informacyjny. Nie stanowi ono oferty w myśl art. 66 i n. ustawy z dnia 23.04.1964r. Kodeks cywilny (Dz.U. 1964r. Nr 16, poz. 93, ze zm.).