Zainwestuj w centrum Szczecina !
Lokal mieszkalny 53m kw. w samym centrum miasta przy ul. Ks. Bogusława, na 1 piętrze ładnie prezentującej się przedwojennej kamienicy.
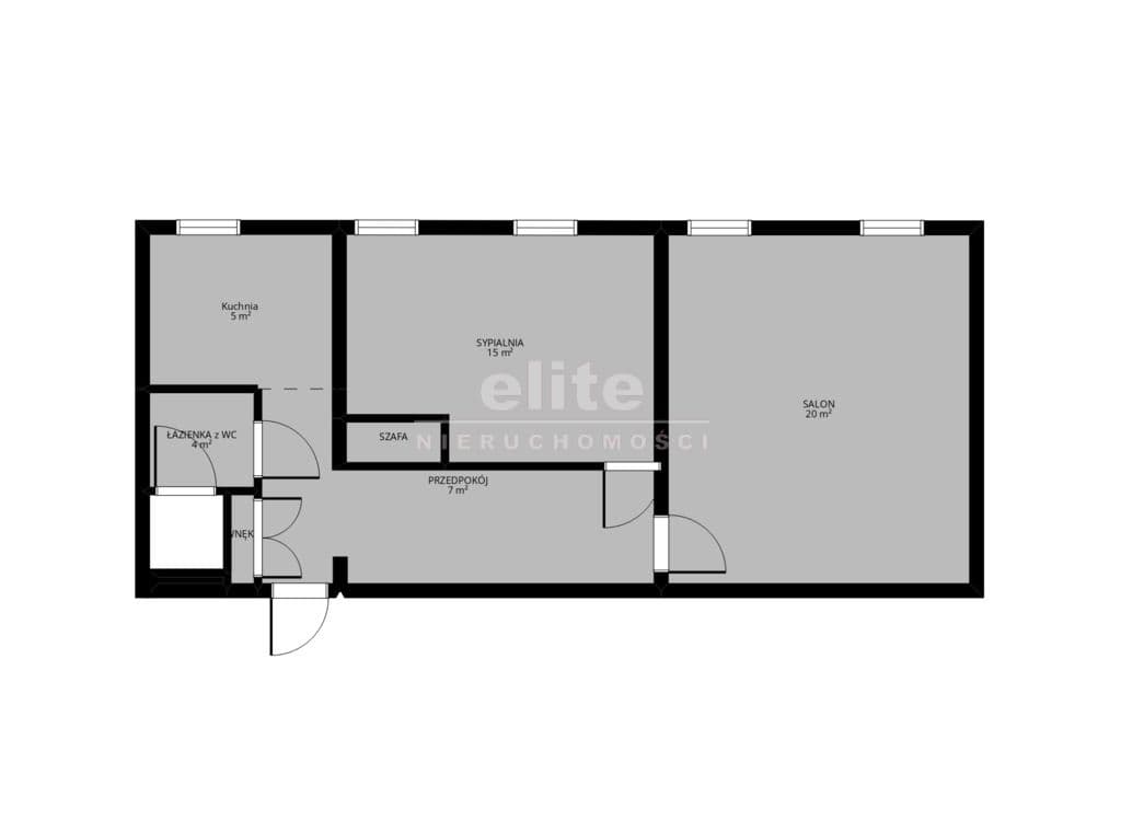
Mieszkanie składa się z:
-dwóch pokoi o powierzchniach ok. 20 oraz 15m kw. z dużymi oknami PCV na ulicę,
-oddzielnej kuchni 5m kw. z oknem PCV, wraz z zabudową, lodówko-zamrażarką, piekarnikiem, kuchenką gazową i pralką,
-łazienki z kabiną prysznicową, umywalką i WC,
-przedpokoju z dwiema szafami wnękowymi.
Mieszkanie ma ściany pomalowane na biało, pokoje zostały pozbawione mebli, można więc od razu się wprowadzać. Kuchnia jest wyposażona, łazienka jest odnowiona. Całość do drobnych prac remontowych wg uznania. Klatka schodowa do remontu.
MEDIA:
Ogrzewanie i ciepła woda z pieca gazowego 2-obiegowego.
Opłaty do zarządcy na poziomie 297zł plus woda oraz opłata za śmieci.
ATUTY:
To mieszkanie charakteryzuje się świetną lokalizacją z uwagi na charakter ulicy, dostępność restauracji, salonów odnowy biologicznej, barberów, CH Kaskada, CH Kupiec, bliskość przystanków komunikacji miejskiej i bliskość dworca PKP.
Wszystkie pomieszczenia są niezależne, a największy pokój można podzielić na dwa mniejsze.
Wysokość pomieszczeń około 305 cm, przez co lokal wydaje się być jeszcze większy.
Mieszkanie zlokalizowane jest na 1-piętrze kamienicy z odnowioną elewacją.
DLACZEGO WARTO?
W tej lokalizacji mieszkania pojawiają się bardzo rzadko w sprzedaży.
Mieszkania na pierwszym piętrze doskonale nadają się także na biuro, na wynajem lub na własne potrzeby.
Możliwość korzystania z wewnętrznego podwórka. W pobliżu podziemny miejski parking strzeżony.
Zapraszamy do osobistego zapoznania się oferowaną nieruchomością. Oferta na wyłączność, mamy klucze.
KUPUJEMY NIERUCHOMOŚCI ZA GOTÓWKĘ w Szczecinie oraz nad morzem, również zadłużone: mieszkania, domy, działki - płacimy natychmiast
Powyższe ogłoszenie ma wyłącznie charakter informacyjny. Nie stanowi ono oferty w myśl art. 66 i n. ustawy z dnia 23.04.1964r. Kodeks cywilny (Dz.U. 1964r. Nr 16, poz. 93, ze zm.).