Dziwnów

Mieszkania na Sprzedaż
Obniżka ceny
nr oferty 432715
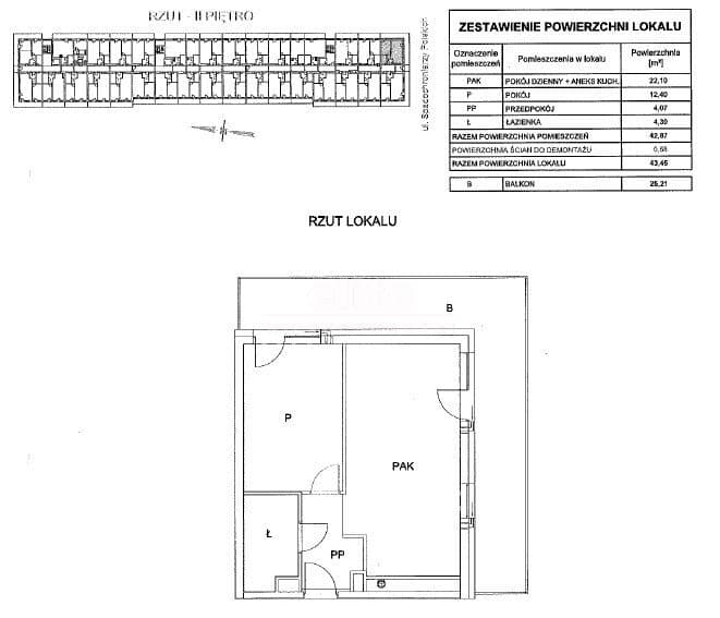
powierzchnia 42 m2
ilość pokoi 2
piętro 2 / 2
standard Idealny
2 pokojowy apartament z 25 metrowym tarasem

Planujesz skredytować to marzenie – zadzwoń.

Piękny, 2 pokojowy apartament (pow. 42,87 m2) z narożnym, przestronnym tarasem o powierzchni 25.21 m2.

Nieruchomość usytuowana w samym sercu Dziwnowa, przy ujściu rzeki Dziwnej, w bliskiej odległości od morza (około 600m).

Apartamenty przy ul. Spadochroniarzy Polskich to prestiżowa inwestycja oddana do użytku w 2023 roku, położona nad brzegiem Zatoki Wrzosowskiej. Kompleks składa się z dwóch nowoczesnych budynków czterokondygnacyjnych, w których znajduje się 220 całorocznych apartamentów, idealnych zarówno na wynajem, jak i do własnego użytku.

Na terenie kompleksu znajduje się strefa basenowa, sauna, stół do ping-ponga oraz wewnętrzny plac zabaw dla dzieci.
Budynek wyposażony w windę, ochronę i monitoring.

Do mieszkania przynależy miejsce postojowe w hali garażowej pod budynkiem w dodatkowej cenie 50 000 zł. Sprzedaż łączna.

Apartament został urządzony ze smakiem przy użyciu wysokiej jakości materiałów. Proszę o zapoznanie się ze zdjęciami oraz dołączonym do ogłoszenia spacerem wirtualnym.

Na powierzchnię 42,87 m2 składają się:
-elegancki salon z aneksem kuchennym i miejscem na stół jadalniany (z pokoju jest pierwsze wyjście na taras)
-sypialnia z szafą w zabudowie (z drugim wyjściem na taras)
-pięknie urządzona łazienka z prysznicem
-przedpokój z pojemną szafą

Warto zwrócić uwagę na bardzo duży (pow. 25,21m2) taras, narożny, w kształcie litery L. To niewątpliwie bardzo duży atut tej nieruchomości.
 
Miesięczny koszt utrzymania: czynsz w wysokości ok. 700 zł, zawierający zaliczki na ogrzewanie i wodę, opłaty administracyjne oraz wywóz śmieci. Dodatkowo płatny prąd.

Apartament ten to doskonała propozycja dla osób szukających luksusowego miejsca nad morzem, wysokiej jakości wykończenia oraz bliskości natury.
Nieruchomość idealna na cele prywatne a także na potrzeby inwestycyjne. 

W ofercie mamy także drugi apartament o podobnym metrażu, znajdujący się na parterze w tym samym budynku. 

Zapraszam do kontaktu i osobistą prezentację.

KUPUJEMY NIERUCHOMOŚCI ZA GOTÓWKĘ w Szczecinie oraz nad morzem, również zadłużone: mieszkania, domy, działki - płacimy natychmiast

 Powyższe ogłoszenie ma wyłącznie charakter informacyjny. Nie stanowi ono oferty w myśl art. 66 i n. ustawy z dnia 23.04.1964r. Kodeks cywilny (Dz.U. 1964r. Nr 16, poz. 93, ze zm.).

Cena
740 000 zł
Cena za m2
17 261 zł
Czynsz administracyjny
700 zł
Miejscowość
Dziwnów
Rodzaj budynku
Budynek apartamentowy
Stan prawny
Własność
Rok budowy
2023
Powierzchnia
42 m2
Standard
Idealny
Piętro
2
Liczba pokoi
2
Typ kuchni
Aneks
Dodatkowe
Winda, Garaż
Wyświetleń
248
Sprawdź ratę kredytu
740 000 PLN
17 261 PLN / m2

ELITE nieruchomości

tel. 91 817 17 17

zainteresowania@elite.nieruchomosci.pl

Wyrażam zgodę na przetwarzanie danych
740 000 Idealny
Chcesz otrzymywać podobne oferty?

Skorzystaj z automatycznych powiadomień e-mail o nowych ogłoszeniach

© 2025 Elite Nieruchomości Szczecin - Mieszkania i domy na sprzedaż - Szczecin, Warszewo, Mierzyn, Bezrzecze, Gumieńce