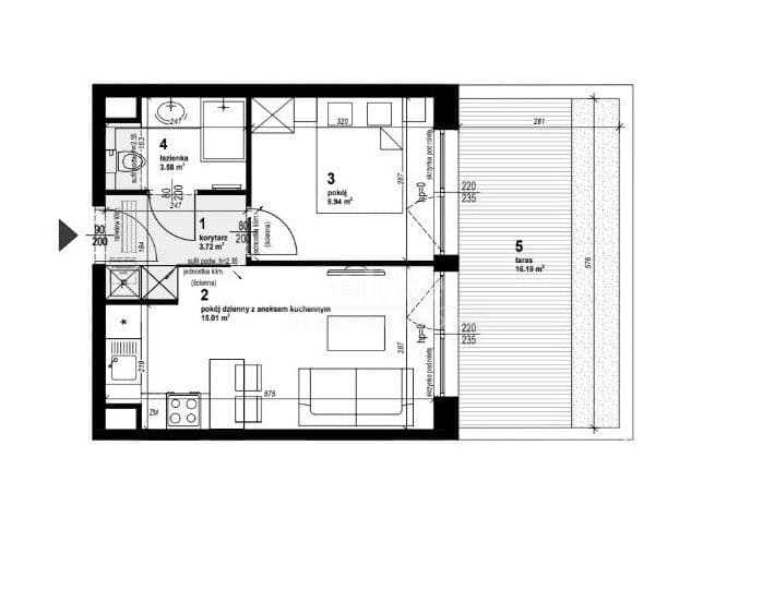
Na sprzedaż apartament zlokalizowany w miejscowości Gąski , lokal użytkowy położony na parterze od strony wschodniej z dodatkowym tarasem o powierzchni ok. 16 m2.
Powierzchnia lokalu 31,25 m2, na którą składa się:
- pokój dzienny + aneks kuchenny
- sypialnia
- łazienka
- przedpokój
W kameralnym kompleksie znajdziesz rozbudowaną strefę relaksu:
taras dachowy z widokiem na morze oraz zewnętrznym basenem z podgrzewaną wodą oraz restaurację, idealną na romantyczne kolacje i spotkania towarzyskie.
Wyjątkowa lokalizacja przy plaży zwiększa atrakcyjność i rentowność apartamentów, a energooszczędne rozwiązania (pompy ciepła, panele fotowoltaiczne, obieg wody deszczowej) obniżają koszty utrzymania lokalu.
Miejscowość Gąski, położona 10 km od Mielna i 29 km od Kołobrzegu znana jest z pięknych plaż i widowiskowej latarni morskiej. To obecnie bardzo popularny cel turystyczny, najszybciej rozwijająca się miejscowość w gminie Mielno i jedna z niewielu nad polskim morzem z możliwością budowy obiektu apartamentowego w tak niewielkiej odległości od morza.
Lokalizacja jest też idealna dla rowerzystów: tuż przy międzynarodowej trasie rowerowej R10 Velo Baltica, biegnącej wzdłuż całego Bałtyku.
Cena: 400 000 Brutto
Przy zakupie istnieje możliwość odliczenia całej kwoty zapłaconego podatku VAT23%
Planowany termin zakończenia Inwestycji: II kwartał 2026 r.
KUPUJEMY NIERUCHOMOŚCI ZA GOTÓWKĘ w Szczecinie oraz nad morzem, również zadłużone: mieszkania, domy, działki - płacimy natychmiast
Powyższe ogłoszenie ma wyłącznie charakter informacyjny. Nie stanowi ono oferty w myśl art. 66 i n. ustawy z dnia 23.04.1964r. Kodeks cywilny (Dz.U. 1964r. Nr 16, poz. 93, ze zm.).