Na sprzedaż
3-pokojowe mieszkanie o powierzchni
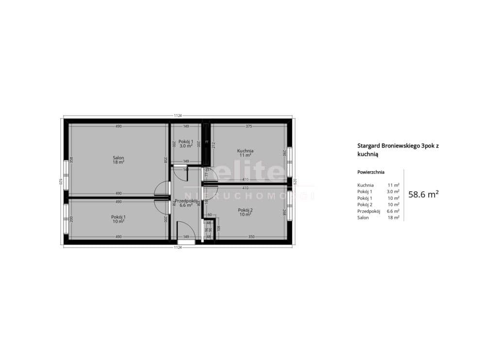
58,6 m², położone na 1. piętrze w niskim, 2-piętrowym budynku z cegły. Nieruchomość znajduje się tuż przy zjeździe z
trasy S10 – to świetna propozycja dla osób dojeżdżających do pracy S10-tką oraz rodzin szukających mieszkania
z potencjałem aranżacyjnym w atrakcyjnej cenie.
Mieszkanie - 58,6 m²
- 1 piętro
- 3 rozkładowe, ustawne pokoje
- duża, widna kuchnia
- łazienka
- przestronny przedpokój
- ekspozycja okien: północ – południe
- budynek z cegły
- drzwi wejściowe do wymiany
- stan: do remont
Obecny układ to klasyczne 3 niezależne pokoje z osobną kuchnią. Istnieje możliwość otwarcia przestrzeni i stworzenia dużego salonu z aneksem kuchennym – idealne rozwiązanie dla osób ceniących nowoczesne wnętrza.
Budynek - niski, 2-piętrowy blok
- wymieniona instalacja elektryczna
- światłowód
- zadbane podwórko z miejscami parkingowymi i terenem zielonym
- duża piwnica przynależna do mieszkania
Ważne: - ogrzewanie oraz ciepła woda z sieci miejskiej
- czynsz (z funduszem remontowym oraz zaliczkami na wodę i ogrzewanie): ok. 900 zł
- możliwość zakupu murowanego garażu w cenie 45 000 zł
Lokalizacja Bardzo dobra lokalizacja przy ul. Broniewskiego. Ulica Władysława Broniewskiego to jedna z dłuższych i ważniejszych ulic w Stargardzie, ciągnąca się przez kilka kilometrów i łącząca różne części miasta, w tym centrum z osiedlem Pyrzyckim. Pełni też lokalną rolę komunikacyjną, bo jest częścią drogi wojewódzkiej (DW106), co ułatwia wyjazd z miasta oraz szybki dojazd np. do drogi S10.
W najbliższej okolicy znajdują się sklepy takie jak: Lidl, Biedronka, Aldi, Rossmann, Pepco, a także punkty usługowe, gastronomiczne, paczkomaty, sala zabaw oraz przystanki autobusowe (linie 7, 8, 9, 21, 36). Do centrum Stargard dojedziemy w 5 minut, natomiast na prawobrzeże Szczecina w około 25 minut. Najbliższe przedszkole i szkoła podstawowa oddalone są zaledwie o 2 minuty samochodem.
KUPUJEMY NIERUCHOMOŚCI ZA GOTÓWKĘ w Szczecinie oraz nad morzem, również zadłużone: mieszkania, domy, działki - płacimy natychmiast
Powyższe ogłoszenie ma wyłącznie charakter informacyjny. Nie stanowi ono oferty w myśl art. 66 i n. ustawy z dnia 23.04.1964r. Kodeks cywilny (Dz.U. 1964r. Nr 16, poz. 93, ze zm.).