Zapraszamy do zapoznania się z ofertą sprzedaży dwupoziomowych mieszkań, w zabudowie dwulokalowej, na nowopowstającym, kameralnym osiedlu, zlokalizowanym przy ul. Rybackiej w Goleniowie.
Teren położony na wzgórzu, z widokiem na panoramę miasta.
Przedmiotem sprzedaży jest segment budynku w stanie deweloperskim, wybudowany w technologii tradycyjnej na podstawie projektu "DOM W CYKLAMENACH 5" z niewielkimi modyfikacjami. Projekt charakteryzuje się prostą, zwartą bryłą. Idealny dla rodziny 2+2 lub 2+3.
Położony na działce o pow. 500 m2, z pośrednim dostępem do drogi publicznej poprzez utwardzoną drogę wewnętrzną.
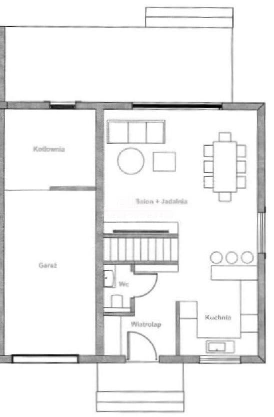
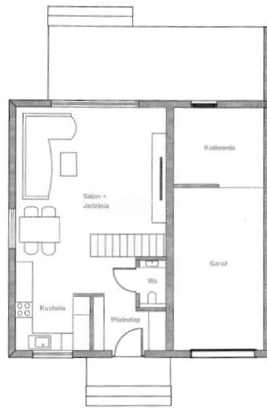
Lokal mieszkalny - parter + poddasze użytkowe, o łącznej pow. użytkowej 127,5 m2 (w tym pow. mieszkalna 102,10 m2 + garaż 25,40 m2), oferowany jest w dwóch wersjach - Z CZTEREMA LUB Z PIĘCIOMA POKOJAMI.
Składa się z następujących pomieszczeń:
PARTER (pow. użytkowa z garażem 66,42 m2):
- wiatrołap 5,87 m²
- salon 26,13 m²
- kuchnia 7,46 m²
- WC 1,56 m²
- garaż 25,40 m²
PODDASZE UŻYTKOWE (pow. użytkowa 61,08 m² - pow. całkowita 66,38 m²):
- sypialnia 1 - 7,78 m² (9,34 m²),
- sypialnia 2 - 14,54 m², (15,6 m²),
- sypialnia 3 - 10,10 m²(10,32 m²),
- łazienka 7,44 m² (9,11 m²),
- garderoba 3,78 m² (4,55 m²)
- przedpokój 17,46 m²
KONSTRUKCJA:
- Ściany konstrukcyjne - bloczki beton komórkowy Solbet 24 cm,
- Strop - płyty żelbetowe, wielokanałowe typu Żerań,
- Schody wewnętrzne - jednobiegowe, żelbetowe, prefabrykowane,
- Ocieplenie ścian zewnętrznych - styropian 18 cm,
- Pokrycie dachu - blacha na rąbek,
STANDARD WYKOŃCZENIA
- drzwi wejściowe Wiśniowski,
- brama garażowa Wiśniowski segmentowa wraz z napędem,
- okna PCV 3-szybowe Wiśniowski,
- instalacja - elektryczna, wodna, kanalizacyjna, RTV,
- system ogrzewania podłogowego w całym domu,
- ocieplenie dachu - wełna mineralna 20 cm lub piana PUR,
- podjazd i ścieżka do domu - kostka betonowa,
- tynk elewacyjny silikatowy, puc,
- taras wykonany z kostki brukowej,
Media - woda z sieci miejskiej, szczelny zbiornik bezodpływowy, prąd.
Pompa ciepła firmy Bosch. Instalacja z możliwością podłączenia paneli fotowoltaicznych.
DODATKOWE MOŻLIWOŚCI:
- na odpowiednim etapie budowy istnieje możliwość modyfikacji ścianek wewnętrznych - działowych,
- wykończenie nieruchomości POD KLUCZ - cena do indywidualnego ustalenia z Deweloperem,
- indywidualny harmonogram płatniczy - do uzgodnienia z Deweloperem.
Teren położony ok. 2,5 km od centrum miasta. Połączenie z ulica Nowogardzką, szybka komunikacja z droga ekspresową S6 Szczecin-Gdańsk.
Cena zawiera podatek VAT - 8%. Kupujący zwolniony z podatku 2% od czynności cywilnoprawnych.
ZAPRASZAMY NA PREZENTACJE i DO SKŁADANIA OFERT ZAKUPU !!!
KUPUJEMY NIERUCHOMOŚCI ZA GOTÓWKĘ w Szczecinie oraz nad morzem, również zadłużone: mieszkania, domy, działki - płacimy natychmiast
Powyższe ogłoszenie ma wyłącznie charakter informacyjny. Nie stanowi ono oferty w myśl art. 66 i n. ustawy z dnia 23.04.1964r. Kodeks cywilny (Dz.U. 1964r. Nr 16, poz. 93, ze zm.).