Na sprzedaż kawalerka
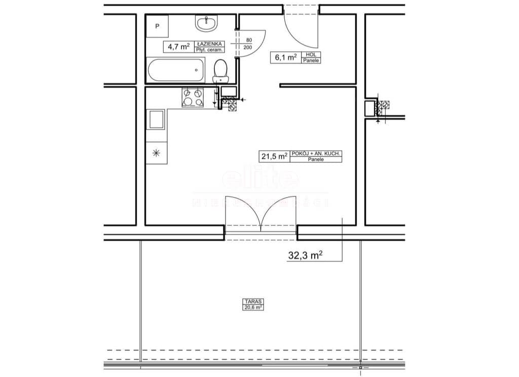
Oferujemy Państwu przestronną i ustawną kawalerkę o powierzchni 32,3 m², znajdującą się na parterze nowoczesnego budynku.
Lokal jest w stanie deweloperskim, co daje możliwość własnej aranżacji wnętrz.
Główne informacje
- ogrzewanie i ciepła woda z SEC
- niski czynsz
- możliwość wykupu miejsca postojowego w garażu lub dodatkowego miejsca parkingu na zewnątrz
Jeśli preferują Państwo gotowe rozwiązania, istnieje możliwość wykończenia mieszkania przez dewelopera, który zadba o każdy detal i stworzy idealne miejsce do zamieszkania lub wynajmu.
Warto wspomnieć, że posiadamy również mieszkania jedno , dwu i trzy pokojowe na parterze, pierwszym i drugim piętrze, zatem każdy może znaleźć odpowiednią przestrzeń dopasowaną do swoich potrzeb.
Zapraszamy do kontaktu w celu uzyskania szczegółowych informacji oraz umówienia się na prezentację.
KUPUJEMY NIERUCHOMOŚCI ZA GOTÓWKĘ w Szczecinie oraz nad morzem, również zadłużone: mieszkania, domy, działki - płacimy natychmiast
Powyższe ogłoszenie ma wyłącznie charakter informacyjny. Nie stanowi ono oferty w myśl art. 66 i n. ustawy z dnia 23.04.1964r. Kodeks cywilny (Dz.U. 1964r. Nr 16, poz. 93, ze zm.).