Goleniów

Mieszkania na Sprzedaż
Obniżka ceny
nr oferty 408753
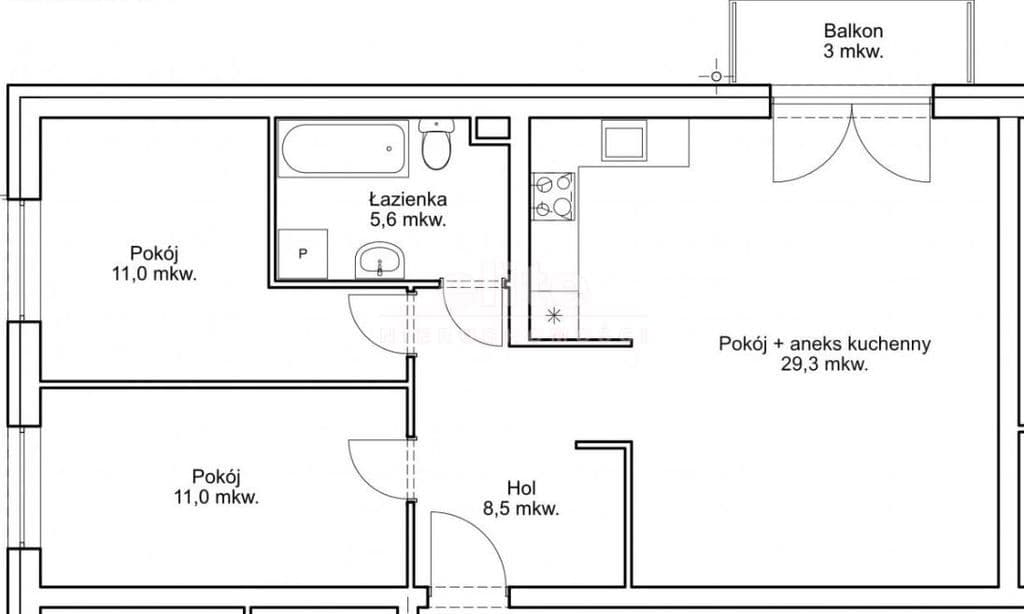
powierzchnia 65 m2
ilość pokoi 3
piętro parter / 2
standard Stan deweloperski
Mieszkanie 3-pokojowe w centrum miasta

Zapraszamy do zapoznania się z ofertą sprzedaży mieszkań osiedlu bloków wielorodzinnych przy ul. Chopina w Goleniowie.

Cena zawiera obowiązujący podatek VAT, kupujący nie płaci 2% PCC u Notariusza.

Inwestycja polega na budowie trzech budynków jednoklatkowych w niskiej dwupiętrowej zabudowie z podziemnym parkingiem wielostanowiskowym oraz cichobieżną windą z poziomu parkingu.

Prezentowany Państwu lokal mieszkalny o pow. użytkowej ok. 65,4   m2 znajduje się   na parterze   budynku nr 3.

Składa się z następujących pomieszczeń:
  - salon z aneksem kuchennym,
  - pokój,
  - pokój,
  - łazienka,
  - przedpokój,

Mieszkanie posiada balkon o powierzchni 3 m2.

STANDARD - stan developerski:
   - podłogi - posadzka cementowa zatarta na gładko z izolacją termiczną 5 cm, dodatkowo docieplenie stropu nad garażem wełną gr. 15 cm,   na
      piętrach izolacją akustyczną   – 5 cm,
   - ściany - tynk wewnętrzny gipsowy maszynowe III kategorii na ścianach silikatowych i stropie żelbetowym,
   - okna - profil PCV, 5-komorowa, zestaw 3-szybowy,
   - drzwi wejściowe do mieszkania - antywłamaniowe PORTA,

INSTALACJE:
    - elektryczna - pełne okablowanie budynku i podstawowy osprzęt elektroinstalacyjny,
    - RTV - okablowanie mieszkania do telewizji naziemnej oraz przygotowanie instalacji do telewizji kablowej,
    - internetowa wewnętrzna,
    - wodno - kanalizacyjna - wyprowadzenia instalacyjne bez białego montażu, zaworów i armatury sanitarnej,
    - odgromowa,
    - domofonowa,
    - centralnego ogrzewania - miejskie PEC, grzejniki panelowe z głowicami termostatycznymi,

WYKOŃCZENIE BUDYNKU:
   -   strop   żelbetowy,
   -   ściany zewnętrzne murowane, z bloków silikatowych 24 cm,
   -   ściany działowe: murowane z bloków silikatowych 8 cm,
   -   schody wewnętrzne żelbetowe,
   -   posadzka klatek i biegów schodowych – granitowa,
   -   brama garażowa segmentowa, ażurowa w kolorze szarym z napędem,
   -   pokrycie dachu - dach drewniany kryty papą, strop docieplony wełną mineralną gr. 25 cm,
   -   elewacja - ocieplenie styropianem 15 cm, tynk mineralny malowany farbą silikonową, system STO;
    na fragmentach elewacji przyziemia płytki klinkierowe,

Dodatkowo dokupić można miejsce parkingowe w garażu podziemnym w cenie 50.000,00 zł,

ZAKUP MIEJSCA POSTOJOWEGO NIE JEST OBOWIĄZKOWY.

Jeżeli masz ochotę zamieszkać w nowo wybudowanym komfortowym mieszkaniu   w centrum miasta, a jednocześnie blisko miejskiego parku to właśnie takie znalazłeś/łaś !!

Zapraszamy do biura sprzedaży w Goleniowie w celu uzyskania szczegółowych informacji o ofercie.

BEZPŁATNIE POMAGAMY W UZYSKANIU KREDYTU

KUPUJEMY NIERUCHOMOŚCI ZA GOTÓWKĘ w Szczecinie oraz nad morzem, również zadłużone: mieszkania, domy, działki - płacimy natychmiast

 Powyższe ogłoszenie ma wyłącznie charakter informacyjny. Nie stanowi ono oferty w myśl art. 66 i n. ustawy z dnia 23.04.1964r. Kodeks cywilny (Dz.U. 1964r. Nr 16, poz. 93, ze zm.).

Cena
539 000 zł
Cena za m2
8 241 zł
Miejscowość
Goleniów
Rodzaj budynku
Niski blok
Stan prawny
Własność
Rok budowy
2024
Powierzchnia
65 m2
Standard
Stan deweloperski
Liczba pokoi
3
Typ kuchni
Otwarta
Dodatkowe
Winda, Garaż
Wyświetleń
134
Sprawdź ratę kredytu
539 000 PLN
8 241 PLN / m2

ELITE nieruchomości

tel. 91 817 17 17

zainteresowania@elite.nieruchomosci.pl

Wyrażam zgodę na przetwarzanie danych
539 000 Stan deweloperski
Chcesz otrzymywać podobne oferty?

Skorzystaj z automatycznych powiadomień e-mail o nowych ogłoszeniach

© 2025 Elite Nieruchomości Szczecin - Mieszkania i domy na sprzedaż - Szczecin, Warszewo, Mierzyn, Bezrzecze, Gumieńce