JUŻ DZISIAJ UMÓW SIĘ NA PREZENTACJĘ!!!
Przedmiotem sprzedaży jest LOKAL MIESZKALNY w stanie do wykończenia, wybudowany w technologii tradycyjnej według indywidualnego projektu.
Nieruchomość położona w GOLENIOWIE, na cichym i spokojnym osiedlu domków jednorodzinnych.
Mieszkanie znajduje się w budynku czterolokalowym, położony na działce o pow. 338 m2, częściowo ogrodzonej. Dojazd drogą gminną gruntową.
Przed budynkiem wykonana kostka polbrukowa.
W ofercie także lokal na parterze z ogródkiem.
Media - prąd, woda i kanalizacja z sieci miejskiej.
Ogrzewanie - gaz (w cenie piec gazowy)
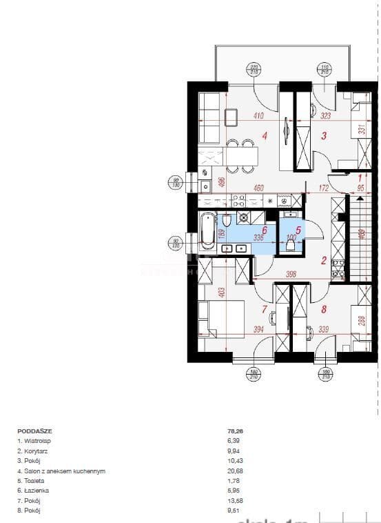
Mieszkanie o pow. użytkowa 78,26 m2, na którą składa się:
- salon z aneksem kuchennym - 20,68 m² (wyjście na taras),
- pokoje - 10,43 m²; 13,58 m² ; 9,51 m²
- łazienka - 5,95 m²,
- toaleta - 1,78 m²,
- hol - 9,94 m2,
- wiatrołap - 6,39 m2
KONSTRUKCJA:
- Ściany konstrukcyjne - bloczki beton komórkowy 24 cm, ściany wewnętrzne - bloczki beton komórkowy 12 cm,
- Strop - betonowy,
- Ocieplenie ścian zewnętrznych - styropian 20 cm,
- Pokrycie dachu - dachówka.
STANDARD WYKOŃCZENIA
- drzwi wejściowe,
- okna PCV 3-szybowe + okno tarasowe,
- instalacja - elektryczna, wodna, kanalizacyjna, gazowa (piec gazowy), RTV,
- ocieplenie stropu - wełna,
- kaloryfery.
W pokojach ściany gładzone malowane, podłogi posadzki. 2 miejsca postojowe na podjeździe.
Koszty związane z nabyciem nieruchomości:
- opłaty u notariusza - taksa notarialna, podatek PCC, opłaty sądowe, opłata za wypisy aktu,
- wynagrodzenie biura nieruchomości za usługę pośrednictwa w zakupie.
ZAPRASZAMY NA PREZENTACJE i DO SKŁADANIA OFERT ZAKUPU !!!
KUPUJEMY NIERUCHOMOŚCI ZA GOTÓWKĘ w Szczecinie oraz nad morzem, również zadłużone: mieszkania, domy, działki - płacimy natychmiast
Powyższe ogłoszenie ma wyłącznie charakter informacyjny. Nie stanowi ono oferty w myśl art. 66 i n. ustawy z dnia 23.04.1964r. Kodeks cywilny (Dz.U. 1964r. Nr 16, poz. 93, ze zm.).