Przedstawiamy ofertę sprzedaży rozkładowego mieszkania w bloku o pow. 42,19mkw, w bardzo dobrej lokalizacji, w ścisłym Centrum Gryfina niedaleko mostu nad Odrą. Idealny wybór na pierwsze M lub pod inwestycję na wynajem.
Mieszkanie ma wymienioną elektrykę!
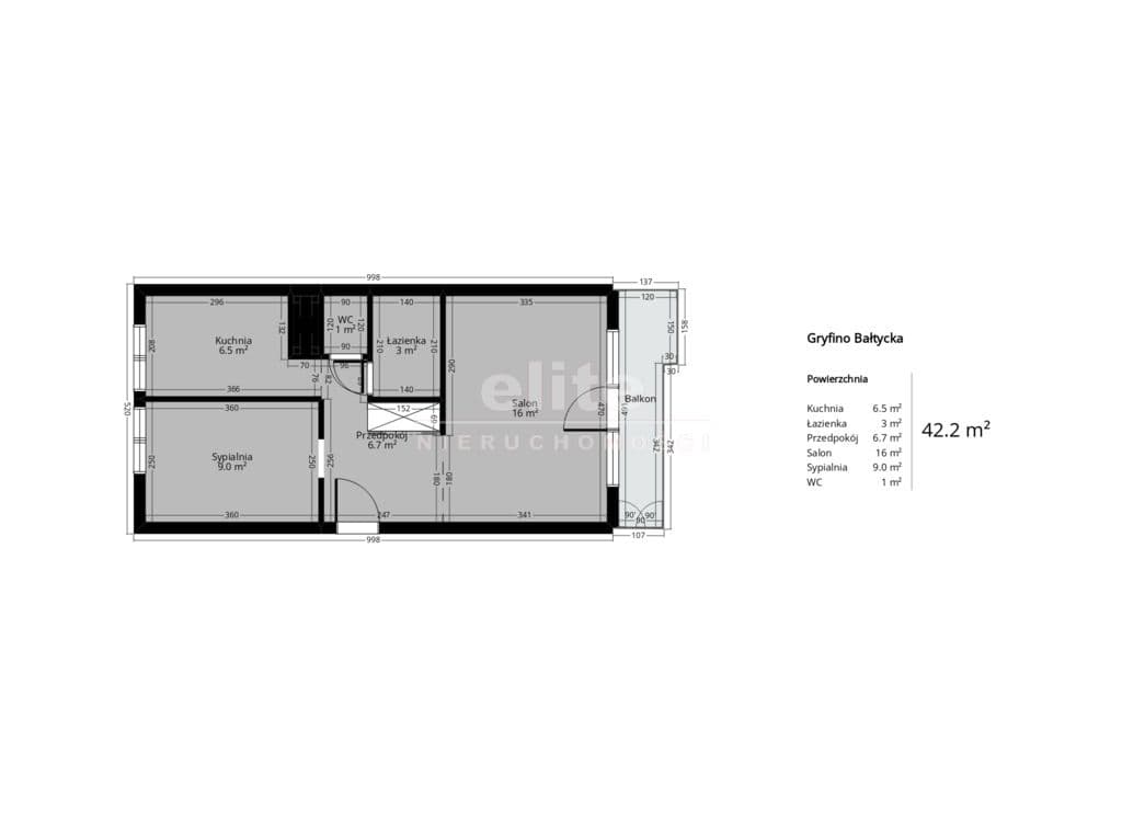
Mieszkanie:
* powierzchnia 42,19mkw, IV piętro, wysokość 255cm
* orientacja wschód-zachód, bardzo jasne i ciepłe
* przedpokój, łazienka, wc, 2 pokoje, kuchnia, balkon
* salon wyposażony w rozkładaną kanapę, fotele i meblościanę
* sypialnia z rozkładaną kanapą oraz meblościaną
* przedpokój z dużą szafą na wymiar
* łazienka z wanną, umywalką i pralką, osobne WC
* widna kuchnia wyposażona w meble kuchenne, lodówkę, zlewozmywak oraz kuchenkę gazową z piekarnikiem, dodatkowo filtr wody wbudowany
* CO i ciepła woda z sieci miejskiej
* okna PCV w idealnym stanie, na wszystkich oknach rolety plus moskitiery na oknach uchylnych
* nowe solidne drzwi wejściowe do mieszkania
* przestronny balkon poszerzony z jednej strony (miejsce np. na stolik i krzesła)
* wymieniona instalacja elektryczna w 2010
* na podłogach w całym mieszkaniu terakota i dywany, ściany gładzone i malowane
* dobrze utrzymane i wydajne grzejniki żeliwne
Budynek:
* blok z wielkiej płyty
* dach po renowacji i ociepleniu
* bardzo dobrze utrzymana i czysta klatka schodowa odmalowana w tym roku
* duże ogólnodostępne pomieszczenie gospodarcze
Okolica:
Mieszkanie znajduje się w samym centrum Gryfina, a więc w zasięgu spaceru jest wszystko czego rodzina może potrzebować na co dzień:
- komunikacja miejska
- sklepy Żabka, Biedronka, Rossmann
- dla dzieci place zabaw, przedszkola, żłobek, szkoła podstawowa, liceum
- punkty usługowe takie jak fryzjer, restauracja, apteka, bank,
- ponadto miejsca użyteczności publicznej takie jak kościół, szpital, urząd miasta, stacja PKP, hala sportowa, korty tenisowe, boiska do siatkówki i piłki nożnej a także Stadion Miejski, Park Miejski i Aquapark Laguna
Ważne:
* Czynsz administracyjny 588zł, fundusz remontowy 118zł
* Prąd i gaz wg zużycia
* Przynależna piwnica
* Umeblowanie w cenie
* Pełna własność
KUPUJEMY NIERUCHOMOŚCI ZA GOTÓWKĘ w Szczecinie oraz nad morzem, również zadłużone: mieszkania, domy, działki - płacimy natychmiast
Powyższe ogłoszenie ma wyłącznie charakter informacyjny. Nie stanowi ono oferty w myśl art. 66 i n. ustawy z dnia 23.04.1964r. Kodeks cywilny (Dz.U. 1964r. Nr 16, poz. 93, ze zm.).