Oferujemy do sprzedaży dwupokojowe mieszkanie w standardzie deweloperskim o powierzchni 42,3 m2, położone na trzecim piętrze niskiego bloku z 2024 roku. W budynku jest winda.
Nieruchomość usytuowana jest w dzielnicy Gumieńce na osiedlu Cukrownia Apartamenty oferującym nowoczesną architekturę w przyjaznej niskiej zabudowie. Na osiedlu planowana jest rozbudowa zaplecza handlowo usługowego w połączeniu z funkcjonalną przestrzenią , w której nie zabraknie terenów rekreacyjnych dla mieszkańców. Całość dopełnią liczne nasadzenia drzew i krzewów by stworzyć przyjazną przestrzeń do życia mieszkańców w każdym wieku.
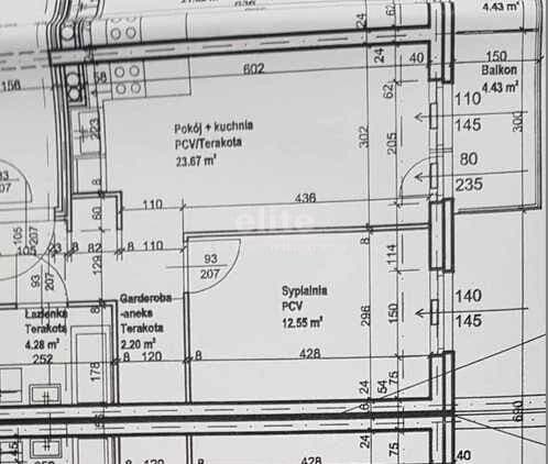
Na nieruchomość składają się :
- salon z aneksem kuchennym ( 23,67 m2 ) z wyjściem na balkon ( 4,43 m2 ) od strony południowej z pięknym widokiem na panoramę miasta,
- sypialnia ( 12,55 m2 ),
- garderoba ( 2,20 m2 ),
- łazienka z WC ( 4,28 m2 ).
W cenie nieruchomości jest komórka lokatorska. Okna PCV. Drzwi zewnętrzne antywłamaniowe Porta. Ogrzewanie i ciepła woda z sieci miejskiej. Istnieje możliwość dokupienia garażu zamykanego, położonego w garażowisku za dodatkowe 80 000 zł.
Nieruchomość położona jest w prężnie rozwijającej się okolicy w sąsiedztwie wydziałów Uniwersytetu Szczecińskiego. Osiedle to cechuje także dogodna komunikacja z centrum i łatwy wyjazd z miasta i za granice kraju. W okolicy znajduje się nowe centrum handlowe Rondo Hakena Park, Ikea, Auchan i Leroy Merlin.
Dostępne do sprzedaży jest jeszcze jedno mieszkanie na tym samym osiedlu :
* wysoki parter, 2 pokoje , 41,5 m2 w cenie 12 000 / m2.
Klucze w biurze - serdecznie zapraszam na prezentację.
KUPUJEMY NIERUCHOMOŚCI ZA GOTÓWKĘ w Szczecinie oraz nad morzem, również zadłużone: mieszkania, domy, działki - płacimy natychmiast
Powyższe ogłoszenie ma wyłącznie charakter informacyjny. Nie stanowi ono oferty w myśl art. 66 i n. ustawy z dnia 23.04.1964r. Kodeks cywilny (Dz.U. 1964r. Nr 16, poz. 93, ze zm.).