Kołobrzeg

Mieszkania na Sprzedaż
nr oferty 426530
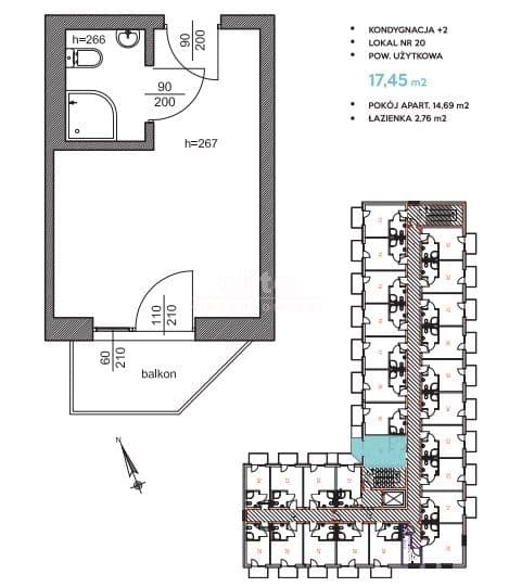
powierzchnia 17 m2
ilość pokoi 1
piętro 1 / 2
standard Idealny
Dochodowy,gotowy,apartament w Indu,blisko morza.

Obniżona cena!!!
Do sprzedaży
Apartament "ekonomiczny", 1 pokojowy w Kołobrzegu! Z wykończeniem, umeblowaniem, wyposażeniem, balkonem, windą w budynku i restauracją. Pełna własność.

Niskie opłaty za utrzymanie lokalu - ok. 221 zł miesięcznie (w tym zaliczki na wodę, ogrzewanie), opłata za zużycie prądu według licznika.   Apartament na I piętrze, z wystawą okien i balkonem od strony zachodniej.   Łóżko 2 osobowe składane, wygodne (materac hotelowy).
Nowy właściciel może nabyć nie tylko lokal, ale również gotowy biznes, z możliwością przejęcia umowy z dobrym operatorem w znanym obiekcie turystycznym, zapewniającym gościom standard hotelowy a właścicielom stabilne stopy zwrotu, apartament w największym uzdrowisku w Polsce - Kołobrzegu.
Umowę z operatorem można przejąć, ale nie jest to konieczność.
Znana i lubiana inwestycja INDU w zachodniej dzielnicy Kołobrzegu, ok. 700 m od parku nadmorskiego, w pobliżu ścieżek rowerowych, tras biegowych, sklepów, punktów gastronomicznych, doskonała komunikacja z miastem.
Inwestycja Indu, w stylu industrialnym, cieszy się bardzo dobrymi opiniami turystów, ulubiona na pobyty krótkoterminowe ze względu na bliskość zarówno plaży, jak i centrum miasta. W budynku 3 piętrowym, z windą funkcjonuje restauracja, w której można zamówić posiłki, wypić kawę.
Mały, dobrze zaprojektowany lokal, oferuje wszystko co jest niezbędne turystom na znacznie mniejszej przestrzeni niż w standardowo projektowanych apartamentach, spełnia   oczekiwania turysty pod względem komfortu i estetyki i pozwala uzyskiwać ceny najmu
porównywalne do apartamentów o większej powierzchni. Obiekt dostosowany do osób niepełnosprawnych.
Przepięknie zorganizowana przestrzeń wspólna:
Nowoczesny design, przestronny lobby bar z wyjściem do ogrodu, obiekt bezobsługowy-zautomatyzowany (klucze elektroniczne).
Na zewnątrz zorganizowane miejsce do wypoczynku (kanapy, stoliki), rowerownia dla właścicieli i klientów.
Miejsce na samochód zapewnia parking dla gości przed budynkiem (płatny za dobę według cennika obiektu).
Inwestycja idealna dla osób poszukujących niedrogiego lokalu, z niskimi kosztami utrzymania, zarówno biznesowo pod wynajem krótko i długoterminowy, oraz dla własnych potrzeb. Okolica oddalona od głównej ulicy, dzięki czemu zapewnia wypoczynek i relaks w ciszy i spokoju.
Oferta dostępna wyłącznie u nas.
Zapraszamy na prezentację.
Powyższa oferta ma charakter informacyjny i nie stanowi oferty handlowej w rozumieniu art. 66 §1 Kodeksu Cywilnego

KUPUJEMY NIERUCHOMOŚCI ZA GOTÓWKĘ w Szczecinie oraz nad morzem, również zadłużone: mieszkania, domy, działki - płacimy natychmiast

 Powyższe ogłoszenie ma wyłącznie charakter informacyjny. Nie stanowi ono oferty w myśl art. 66 i n. ustawy z dnia 23.04.1964r. Kodeks cywilny (Dz.U. 1964r. Nr 16, poz. 93, ze zm.).

Cena
290 000 zł
Cena za m2
16 618 zł
Czynsz administracyjny
221 zł
Miejscowość
Kołobrzeg
Rodzaj budynku
Dom wielolokalowy
Stan prawny
Własność
Rok budowy
2019
Powierzchnia
17 m2
Standard
Idealny
Piętro
1
Liczba pokoi
1
Typ kuchni
Brak
Dodatkowe
Winda
Wyświetleń
416
Sprawdź ratę kredytu
290 000 PLN
16 618 PLN / m2

ELITE nieruchomości

tel. 91 817 17 17

zainteresowania@elite.nieruchomosci.pl

Wyrażam zgodę na przetwarzanie danych
290 000 Idealny
Chcesz otrzymywać podobne oferty?

Skorzystaj z automatycznych powiadomień e-mail o nowych ogłoszeniach

© 2025 Elite Nieruchomości Szczecin - Mieszkania i domy na sprzedaż - Szczecin, Warszewo, Mierzyn, Bezrzecze, Gumieńce