Szczecin, Łasztownia

Mieszkania na Sprzedaż
Obniżka ceny
nr oferty 435439
powierzchnia 77 m2
ilość pokoi 3
piętro 3 / 5
standard Stan deweloperski
3 Pokoje I Taras, ogródek i balkon I Łasztownia

Na sprzedaż przestronne 3-pokojowe mieszkanie z tarasem, ogródkiem i balkonem, oferowane w stanie deweloperski, położone na 3. piętrze nowego apartamentowca w dynamicznie rozwijającej się szczecińskiej dzielnicy Łasztownia. 

NIERUCHOMOŚĆ:
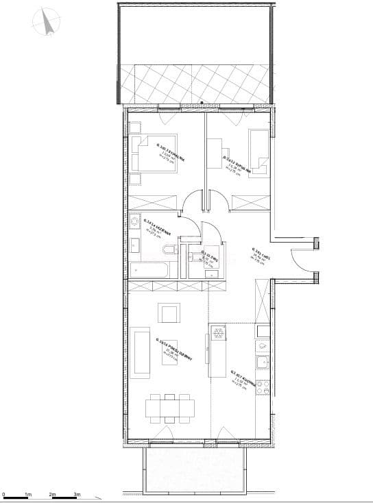
Mieszkanie o powierzchni 77,55 m2 składa się z:

- pokoju dziennego (21,56 m2) z wyjściem na balkon (7,15 m2),
- 2 sypialni (12,58 m2 i 10,34 m2) z wyjściem na taras (9,81 m2) i ogródek (14,70 m2),
- oddzielnej kuchni (11,02 m2),
- łazienki (5,56 m2),
- oddzielnej toalety (2,01 m2),
- holu (14,48 m2).

Istnieje możliwość zakupu miejsca postojowego w ogrzewanej hali garażowej, komórki lokatorskiej oraz boksu na rowery.

STAN NIERUCHOMOŚCI:
Nieruchomość w stanie deweloperskim. Do własnej aranżacji i wykończenia.

BUDYNEK i OKOLICA:
- nowa inwestycja wykonana w wysokim standardzie,
- przestronne, wysokie (do 276 cm) mieszkania z panoramicznymi przeszkleniami oraz balkonami, tarasami lub ogródkami, 
- części wspólne w budynku wykonane elegancko i zapewniające komfort mieszkańcom,
- ścieżki, chodniki oraz place wykonane z kostki granitowej z pasmami świetlnymi ukrytymi w posadzce,
- w budynku dostępne specjalne rowerownie do przechowywania rowerów dla lokatorów,
- brak barier dla osób starszych i z niepełnosprawnościami,
- na parterze budynku lokale przystosowane pod działalność usługową,
- duża liczba (większa niż ilość mieszkań) miejsc parkingowych w halach garażowych oraz ogólnodostępne miejsca w okolicy.

LOKALIZACJA:
Dynamicznie rozwijająca się dzielnica nad rzeką Odrą, tuż przy Starym Mieście i w bliskiej odległości od centrum miasta. 
Bardzo dobrze skomunikowana okolica (tramwaje, autobusy, dworzec główny PKP i PKS) z szybkim dostępem do punktów handlowo-usługowych (targowisko Tobruk, CH Kaskada), oświaty (PUM, ZUT, Uniwersytet Szczeciński, licea, szkoły, przedszkola itd.) oraz gastronomii. W pobliżu dostępne liczne instytucje kultury - Morskie Centrum Nauki, Opera na Zamku, Muzeum Narodowe, Filharmonia Szczecińska, teatry oraz atrakcje turystyczne i miejsca rekreacji.

DLA KOGO JEST TA NIERUCHOMOŚĆ:
Mieszkanie idealne dla rodziny lub inwestorów. Dla osób lubiących zarówno miejski styl życia, jak i bliskość natury oraz miłośników sportów wodnych.
Świetnie sprawdzi się jako inwestycja pod wynajem!

DLACZEGO WARTO KUPIĆ TO MIESZKANIE?
- znakomita, prężnie rozwijająca się i reprezentacyjna lokalizacja,
- mieszkanie do własnej aranżacji, zgodnie z gustem właściciela,
- nowa inwestycja wykonana nowocześnie i w wysokim standardzie,
- kupujący nie płaci podatku PCC,
- rewelacyjne jako inwestycja pod wynajem!

W ofercie dostępne również inne mieszkania w tej inwestycji o różnych parametrach oraz lokale usługowe!

Serdecznie polecam i zapraszam na prezentację! 

KUPUJEMY NIERUCHOMOŚCI ZA GOTÓWKĘ w Szczecinie oraz nad morzem, również zadłużone: mieszkania, domy, działki - płacimy natychmiast

 Powyższe ogłoszenie ma wyłącznie charakter informacyjny. Nie stanowi ono oferty w myśl art. 66 i n. ustawy z dnia 23.04.1964r. Kodeks cywilny (Dz.U. 1964r. Nr 16, poz. 93, ze zm.).

Cena
1 090 490 zł
Cena za m2
14 061 zł
Miejscowość
Szczecin, Łasztownia
Rodzaj budynku
Apartamentowo-handlowy
Stan prawny
Własność
Rok budowy
2024
Powierzchnia
77 m2
Standard
Stan deweloperski
Piętro
3
Liczba pokoi
3
Ogrzewanie
CO miejskie
Ciepła woda
Wodociąg miejski
Typ kuchni
Oddzielna
Dodatkowe
Winda, Garaż
Wyświetleń
101
Sprawdź ratę kredytu
1 090 490 PLN
14 061 PLN / m2

ELITE nieruchomości

tel. 91 817 17 17

zainteresowania@elite.nieruchomosci.pl

Wyrażam zgodę na przetwarzanie danych
1 090 490 Stan deweloperski
Chcesz otrzymywać podobne oferty?

Skorzystaj z automatycznych powiadomień e-mail o nowych ogłoszeniach

© 2026 Elite Nieruchomości Szczecin - Mieszkania i domy na sprzedaż - Szczecin, Warszewo, Mierzyn, Bezrzecze, Gumieńce