Mierzyn

Mieszkania na Sprzedaż
Oferta specjalna
nr oferty 438392
powierzchnia 103 m2
ilość pokoi 5
piętro parter / 3
standard Stan deweloperski
Mieszkanie 2 poziomowe z ogródkiem i 5 pokojami

Na sprzedaż mieszkanie dwupoziomowe, pięciopokojowe w stanie deweloperskim na popularnym osiedlu w Szczecinie

Apartament z wyjściem na ogród o pow. 100m2
Inwestycja zakończona,  mieszkanie gotowe do wydania.

Na powierzchnię użytkową 103,58m2,3m2 składają się:

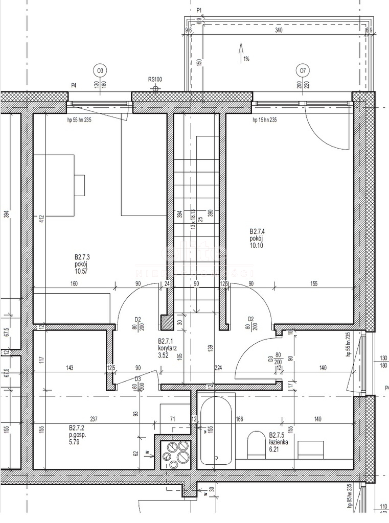
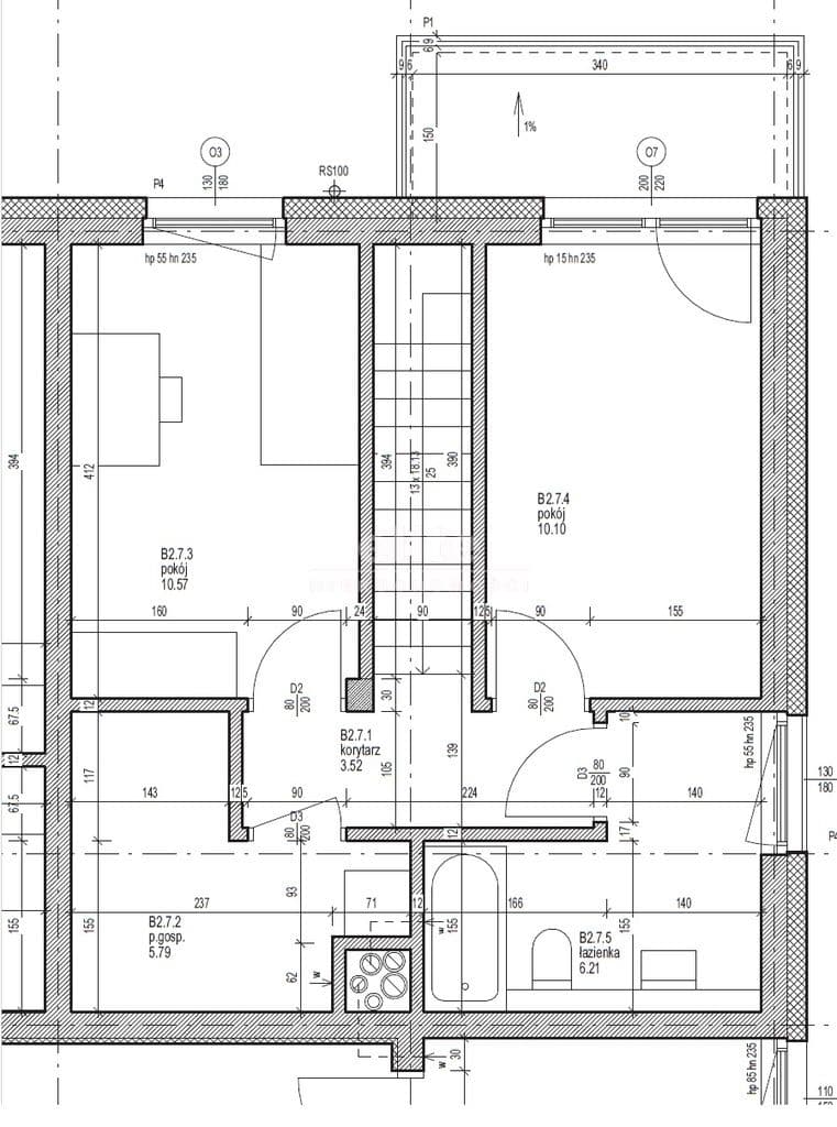
Poziom I :
  • salon z aneksem kuchennym o pow. 30m2
  • pokój o pow. 10,57m2
  • pokój o pow. 12,57m2
  •  pomieszczenie gospodarcze o pow. 2,35m2
  •  łazienka o po2. 3m74m2
  • korytarz i przedpokój


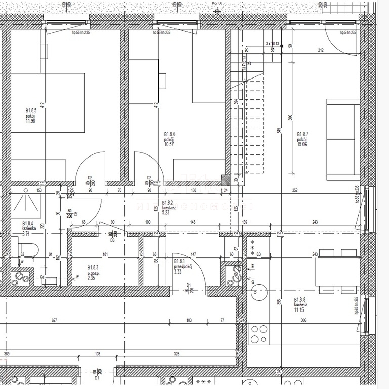
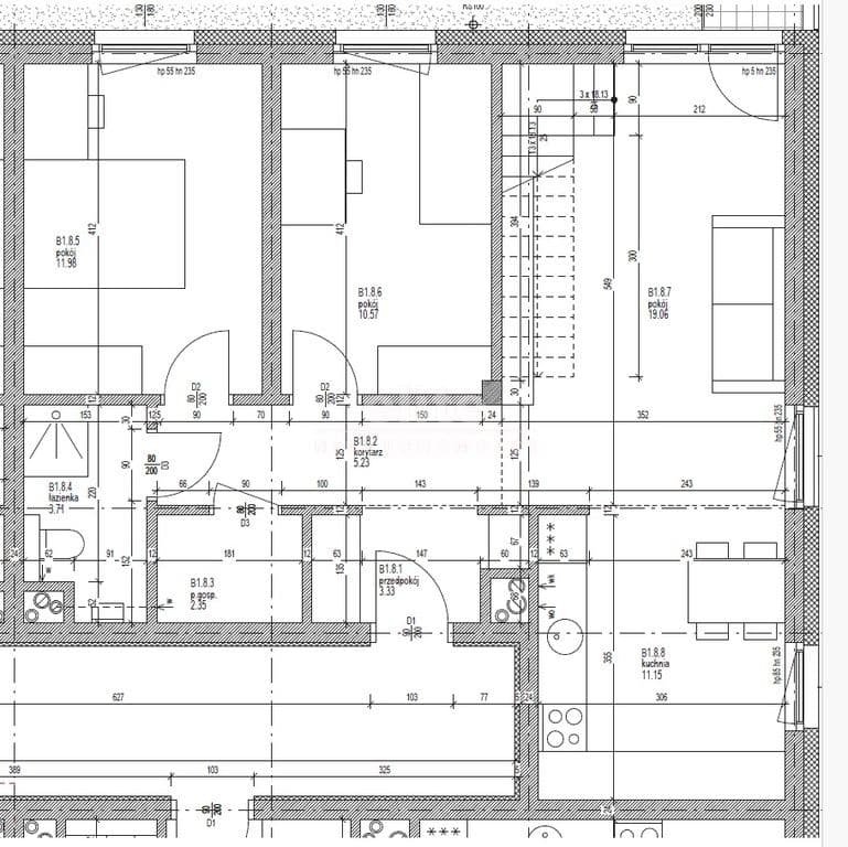
Poziom II :
  • sypialnia o pow. 10,57 m2
  • sypialnia o pow. 10,1m2 z wyjściem na balkon
  • łazienka o pow. 6,21 m2
  •  pomieszczenie gospodarcze o pow. 5,79m2
  • korytarz

W standardzie deweloperskim :

  • okna trzyszybowe, 
  •  tynki gipsowe, maszynowe
  • rozprowadzona instalacja elektryczna, wodno-kanalizacyjna, grzewcza
  •  rozprowadzona instalacja telewizyjna i internetowa
  •  w sypialniach grzejniki panelowe w łazience grzejnik drabinkowy ( możliwość zrobienia ogrzewania podłogowego ).

Do każdego mieszkania trzeba dokupić obligatoryjnie minimum jedno miejsce parkingowe znajdujące się w hali garażowej pod budynkiem ( winda zjeżdża na poziom: -1 )

Ogrzewanie i ciepła woda z SEC'u.


Nowoczesna architektura, kompleksowo zagospodarowany teren osiedla, chodniki, niskie nasadzenia, plac zabaw dla najmłodszych.
Doskonała lokalizacja, spokojne sąsiedztwo, niska zabudowa, w pobliżu: szkoła ,żłobek, przedszkole, sklepy, blisko komunikacja miejska. 
Zapraszam na prezentację

KUPUJEMY NIERUCHOMOŚCI ZA GOTÓWKĘ w Szczecinie oraz nad morzem, również zadłużone: mieszkania, domy, działki - płacimy natychmiast

 Powyższe ogłoszenie ma wyłącznie charakter informacyjny. Nie stanowi ono oferty w myśl art. 66 i n. ustawy z dnia 23.04.1964r. Kodeks cywilny (Dz.U. 1964r. Nr 16, poz. 93, ze zm.).

Cena
994 368 zł
Cena za m2
9 600 zł
Czynsz administracyjny
300 zł
Miejscowość
Mierzyn
Rodzaj budynku
Niski blok
Stan prawny
Własność
Rok budowy
2025
Powierzchnia
103 m2
Standard
Stan deweloperski
Liczba pokoi
5
Ogrzewanie
CO miejskie
Ciepła woda
Wodociąg miejski
Typ kuchni
Aneks
Dodatkowe
Winda, Garaż
Wyświetleń
8
Sprawdź ratę kredytu
994 368 PLN
9 600 PLN / m2

Piotr Byzdra

tel. +48 500 358 321

piotr@elite.nieruchomosci.pl

Wyrażam zgodę na przetwarzanie danych
994 368 Stan deweloperski
Chcesz otrzymywać podobne oferty?

Skorzystaj z automatycznych powiadomień e-mail o nowych ogłoszeniach

© 2026 Elite Nieruchomości Szczecin - Mieszkania i domy na sprzedaż - Szczecin, Warszewo, Mierzyn, Bezrzecze, Gumieńce