Na sprzedaż mieszkanie trzy pokojowe
w stanie deweloperskim w niskim budynku z winą
na Mierzynie. Apartament znajduje się na ostatnim trzecim piętrze ( brak sąsiada nad głową ).
Winda zjeżdża do hali z miejscami parkingowymi.
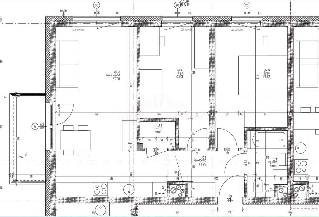
Na powierzchnię 60,7m2 składa się:
- salon z aneksem kuchennym o pow. 25m2
- sypialnia o pow. 11,89m2
- sypialnia o pow. 12,96m2
- łazienka razem z WC o pow. 4m2
- pomieszczenie gospodarcze o pow. 1,5m2
- korytarz
W standardzie deweloperskim : - okna trzyszybowe z nawietrznikami
- tynki gipsowe, maszynowe
- rozprowadzona instalacja elektryczna, wodno-kanalizacyjna, grzewcza
- rozprowadzona instalacja telewizyjna i internetowa
- w sypialniach grzejniki panelowe w łazience grzejnik drabinkowy..
Do każdego mieszkania trzeba dokupić obligatoryjnie minimum jedno miejsce parkingowe znajdujące się w hali garażowej pod budynkiem ( winda zjeżdża na poziom: -1 )
Ogrzewanie i ciepła woda z SEC'u. Inwestycja zakończona, mieszkanie gotowe do wydania.
Nowoczesna architektura, kompleksowo zagospodarowany teren osiedla, chodniki, niskie nasadzenia, plac zabaw dla najmłodszych.
Doskonała lokalizacja,
spokojne sąsiedztwo, niska zabudowa, w pobliżu: szkoła ,żłobek, przedszkole, sklepy,
blisko komunikacja miejska. Zapraszam na prezentację
KUPUJEMY NIERUCHOMOŚCI ZA GOTÓWKĘ w Szczecinie oraz nad morzem, również zadłużone: mieszkania, domy, działki - płacimy natychmiast
Powyższe ogłoszenie ma wyłącznie charakter informacyjny. Nie stanowi ono oferty w myśl art. 66 i n. ustawy z dnia 23.04.1964r. Kodeks cywilny (Dz.U. 1964r. Nr 16, poz. 93, ze zm.).