Oferujemy mieszkania sprzedawane w standardzie deweloperskim na pograniczu Mierzyna oraz Gumieniec.
Dzięki możliwości własnej aranżacji wnętrza, nie musisz już iść na kompromis z dopasowaniem się do gustu poprzedniego właściciela!
Świetna lokalizacja, cisza i spokój a jednocześnie szybki dojazd do centrum Szczecina!
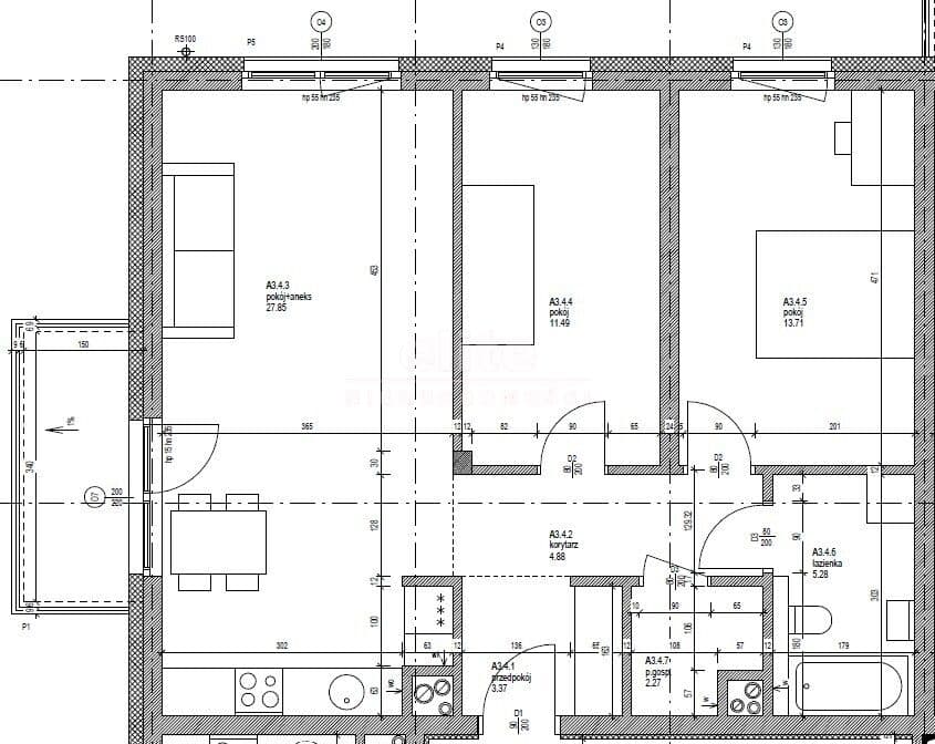
Na powierzchnię składają się:
- salon z aneksem kuchennym,
- sypialnia,
- pokój,
- łazienka,
- pomieszczenie gospodarcze,
- przedpokój.
Istnieje możliwość zakupu miejsca postojowego w hali garażowej już od 40 000zł !
Posiadamy także inne mieszkania w tej inwestycji.
Nie czekaj, zadzwoń i umów się na prezentację już dziś!
KUPUJEMY NIERUCHOMOŚCI ZA GOTÓWKĘ w Szczecinie oraz nad morzem, również zadłużone: mieszkania, domy, działki - płacimy natychmiast
Powyższe ogłoszenie ma wyłącznie charakter informacyjny. Nie stanowi ono oferty w myśl art. 66 i n. ustawy z dnia 23.04.1964r. Kodeks cywilny (Dz.U. 1964r. Nr 16, poz. 93, ze zm.).