Mierzyn

Mieszkania na Sprzedaż
Oferta specjalna
nr oferty 438389
powierzchnia 75 m2
ilość pokoi 4
piętro parter / 3
standard Stan deweloperski
Mierzyn mieszkanie z ogrodem! Gotowe 4 pok.

Na sprzedaż gotowe mieszkanie dwupoziomowe, czteropokojowe w stanie deweloperskim w niskim budynku na Mierzynie.

Inwestycja zakończona,  mieszkanie gotowe do wydania.
Apartament z wyjściem na ogród o pow.  50 m2

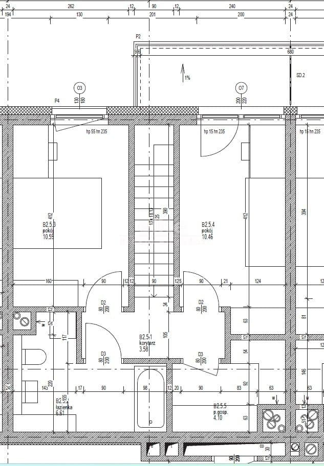
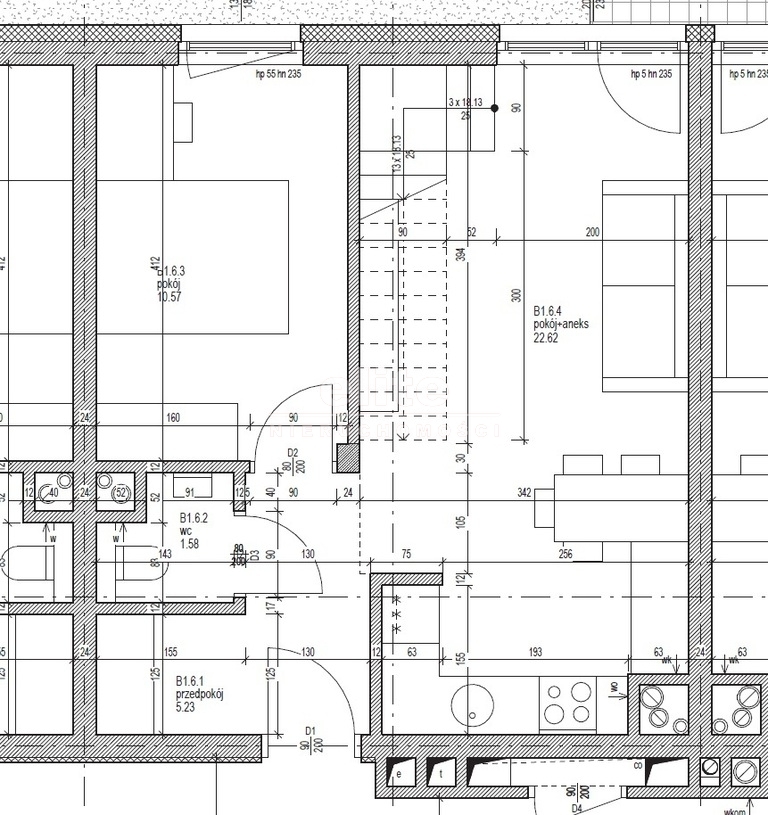
Na powierzchnię użytkową 75m2,3m2 składają się:
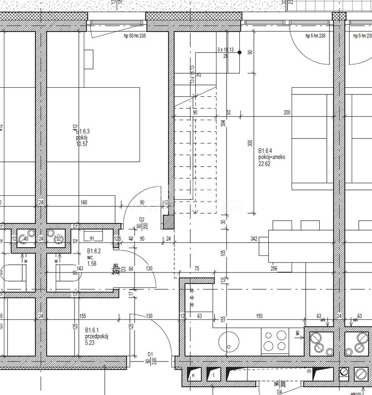
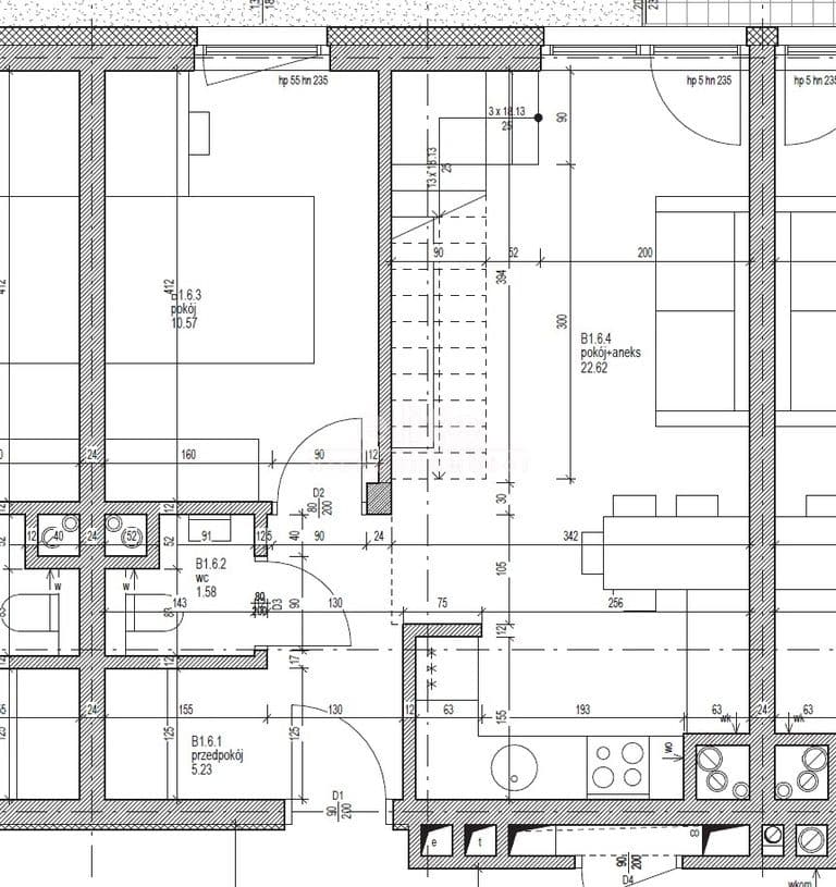
Poziom I :
  •  salon z aneksem kuchennym o pow. 22,6m2
  •  pokój o pow. 10,57m2
  •  toaleta o pow. 1,58m2
  • przedpokój
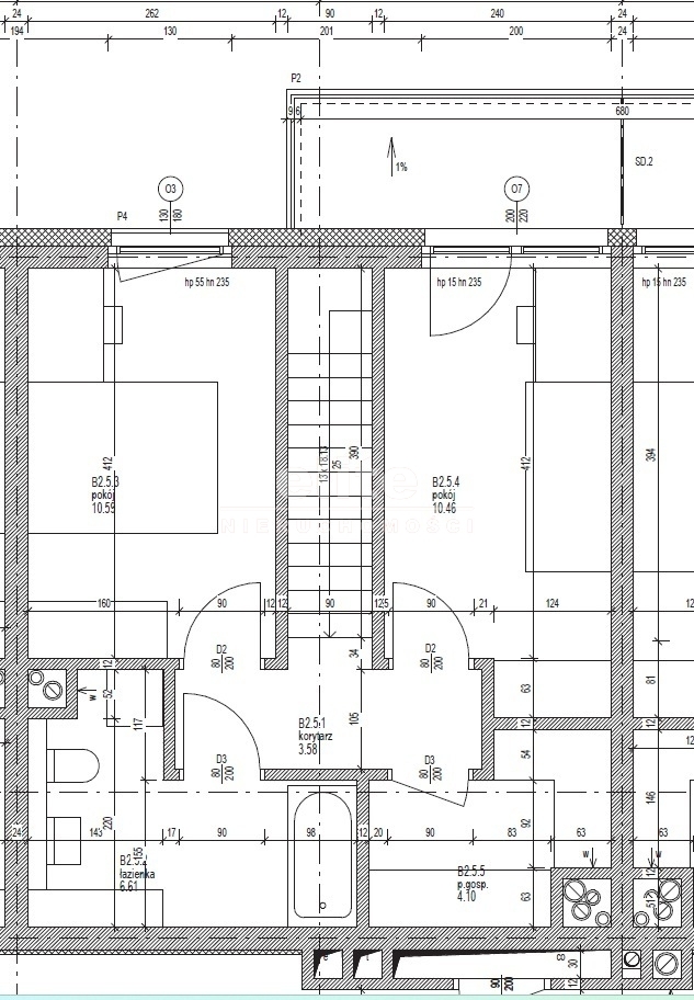
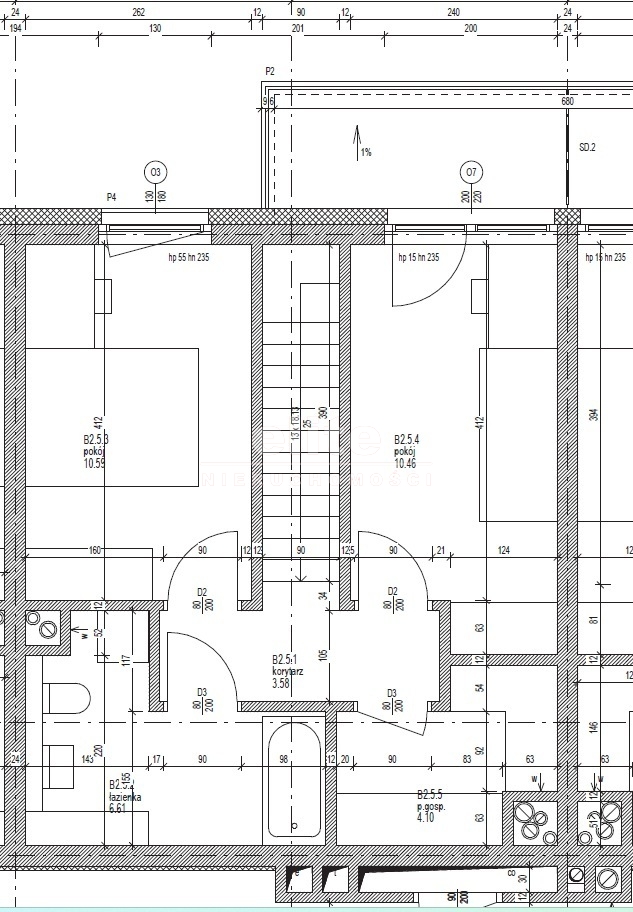
Poziom II :
  • sypialnia o pow. 10,59 m2
  • sypialnia o pow. 10,46 m2 z wyjściem na balkon
  •  łazienka o pow. 6,61 m2
  •  korytarz

W standardzie deweloperskim :

  • okna trzyszybowe 
  • tynki gipsowe, maszynowe
  • rozprowadzona instalacja elektryczna, wodno-kanalizacyjna, grzewcza
  • rozprowadzona instalacja telewizyjna i internetowa
  • w sypialniach grzejniki panelowe w łazience grzejnik drabinkowy.

Do każdego mieszkania trzeba dokupić obligatoryjnie minimum jedno miejsce parkingowe znajdujące się w hali garażowej pod budynkiem ( winda zjeżdża na poziom: -1 )

Ogrzewanie i ciepła woda z SEC'u.


Nowoczesna architektura, kompleksowo zagospodarowany teren osiedla, chodniki, niskie nasadzenia, plac zabaw dla najmłodszych.
Doskonała lokalizacja, spokojne sąsiedztwo, niska zabudowa, w pobliżu: szkoła ,żłobek, przedszkole, sklepy, blisko komunikacja miejska. 
Zapraszam na prezentację

KUPUJEMY NIERUCHOMOŚCI ZA GOTÓWKĘ w Szczecinie oraz nad morzem, również zadłużone: mieszkania, domy, działki - płacimy natychmiast

 Powyższe ogłoszenie ma wyłącznie charakter informacyjny. Nie stanowi ono oferty w myśl art. 66 i n. ustawy z dnia 23.04.1964r. Kodeks cywilny (Dz.U. 1964r. Nr 16, poz. 93, ze zm.).

Cena
730 701 zł
Cena za m2
9 700 zł
Czynsz administracyjny
450 zł
Miejscowość
Mierzyn
Rodzaj budynku
Niski blok
Stan prawny
Własność
Rok budowy
2026
Powierzchnia
75 m2
Standard
Stan deweloperski
Liczba pokoi
4
Ogrzewanie
CO miejskie
Ciepła woda
Wodociąg miejski
Typ kuchni
Aneks
Dodatkowe
Winda, Garaż
Wyświetleń
24
Sprawdź ratę kredytu
730 701 PLN
9 700 PLN / m2

Piotr Byzdra

tel. +48 500 358 321

piotr@elite.nieruchomosci.pl

Wyrażam zgodę na przetwarzanie danych
730 701 Stan deweloperski
Chcesz otrzymywać podobne oferty?

Skorzystaj z automatycznych powiadomień e-mail o nowych ogłoszeniach

© 2026 Elite Nieruchomości Szczecin - Mieszkania i domy na sprzedaż - Szczecin, Warszewo, Mierzyn, Bezrzecze, Gumieńce