Na sprzedaż mieszkanie 2-pokojowe o powierzchni 58,4m2, w pełni wyposażone. Lokal znajduje się na pierwszym piętrze wyremontowanej kamienicy.
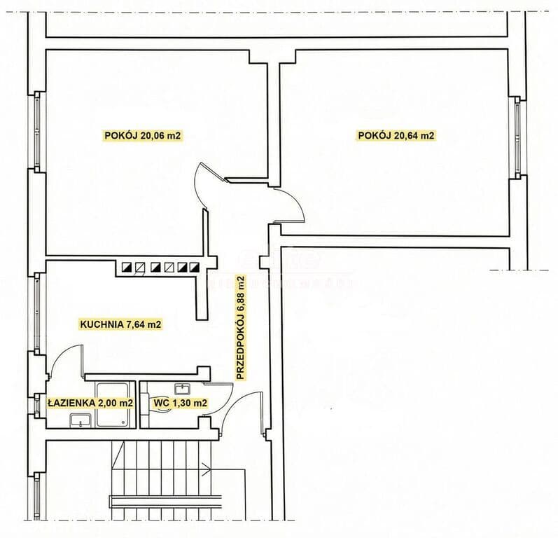
UKŁAD MIESZKANIA:
- 2 duże słoneczne pokoje, z wyposażeniem widocznym na zdjęciach
- oddzielna kuchnia wyposażona w meble, pralkę, kuchenkę gazową, piekarnik, okap, lodówkę, zmywarkę
- przedpokój
- łazienka wyposażona w wannę, umywalkę
- osobne WC
DODATKOWO:
- piwnica
- okna PCV
- światłowód
- kablówka
- wymienione grzejniki
LOKALIZACJA:
Atutem mieszkania jest bardzo dobra lokalizacja. Zaledwie 2 min do Dworca Niebuszewo.
TRAMWAJE LINIE: 2,11, które zapewniają bezpośrednie połączenie z centrum.
AUTOBUSY LINIE: 51, 57, 63, 78, 87, 82, 92, 99.
W OKOLICY ZNAJDUJĄ SIĘ: Apteka, Sklepy spożywcze, Przychodnia, Stacja Paliw Orlen, Restauracje.
Dodatkowym atutem jest wjazd na podwórko, umożliwiające mieszkańcom parkowanie. W okolicy znajdują się darmowe miejsca parkingowe, ogólnodostępne (bez strefy płatnego parkowania).
Mieszkanie jest tanie w utrzymaniu. Czynsz wynosi zaledwie 505zł, zawierający fundusz remontowy. Budynek jest ocieplony i pomalowany. Kamienica przeszła remont 5 lat temu, w którym została wymieniona instalacja elektryczna, zostały wymienione piony wodno-kanalizacyjne oraz remont przeszedł dach.
Niewątpliwym atutem są idealnie doświetlone pokoje naturalnym światłem przez cały dzień.
Mieszkanie jest własnościowe z Księgą Wieczystą (bez obciążeń). Gotowe do zamieszkania!
Zainteresowanych zapraszam na prezentację.
KUPUJEMY NIERUCHOMOŚCI ZA GOTÓWKĘ w Szczecinie oraz nad morzem, również zadłużone: mieszkania, domy, działki - płacimy natychmiast
Powyższe ogłoszenie ma wyłącznie charakter informacyjny. Nie stanowi ono oferty w myśl art. 66 i n. ustawy z dnia 23.04.1964r. Kodeks cywilny (Dz.U. 1964r. Nr 16, poz. 93, ze zm.).