Polecam na sprzedaż mieszkanie na nowym, nowoczesnym osiedlu.
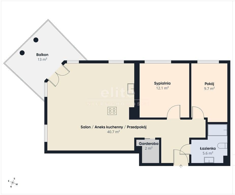
Na 70,14 mkw. składa się:
- salon z aneksem kuchennym o powierzchni 31,90 mkw. z wyjściem na taras,
- sypialnia o powierzchni 12,13 mkw.
- mniejsza sypialnia,
- garderoba,
- łazienka z WC,
- przedpokój z szafą,
Wartym uwagi jest lokalizacja, która zapewnia bezpośrednią bliskość uczelni, centrum miasta, komunikacji miejskiej, sklepów oraz terenów zielonych. Ogromnym atutem oferty jest duży taras z pięknym widokiem.
Dodatkowo istnieje zakup garażu na dwa samochody w cenie 150 000 (zakup nie obowiązkowy , osobna księga wieczysta).
Mieszkanie zostało wykończone z materiałów wysokiej jakości, a w kuchni znajdują się funkcjonalne meble w zabudowie.
Ogrzewanie i ciepła woda pochodzi z sieci miejskiej, a ich koszt jest już uwzględniony w czynszu.
Opłaty administracyjne wynoszą ok. 969 zł miesięcznie (w tym: ogrzewanie, ciepła woda, ścieki, śmieci).
Zapraszam na prezentację!
KUPUJEMY NIERUCHOMOŚCI ZA GOTÓWKĘ w Szczecinie oraz nad morzem, również zadłużone: mieszkania, domy, działki - płacimy natychmiast
Powyższe ogłoszenie ma wyłącznie charakter informacyjny. Nie stanowi ono oferty w myśl art. 66 i n. ustawy z dnia 23.04.1964r. Kodeks cywilny (Dz.U. 1964r. Nr 16, poz. 93, ze zm.).