Mieszkanie 2 pokojowe po kapitalnym remoncie | Balkon | Os. Arkońskie | Gotowe do wprowadzenia.Na sprzedaż komfortowe mieszkanie o powierzchni 47,80 m², zlokalizowane na 2 piętrze wysokiego budynku z dwiema szybkobieżnymi windami na os. Arkońskim. Budynek ocieplony. Możliwość parkowania przed blokiem.
Lokal przeszedł kapitalny remont z dbałością o detale i jest sprzedawany jako w pełni umeblowany oraz wyposażony, co pozwala na natychmiastowe wprowadzenie się – bez dodatkowych nakładów finansowych.
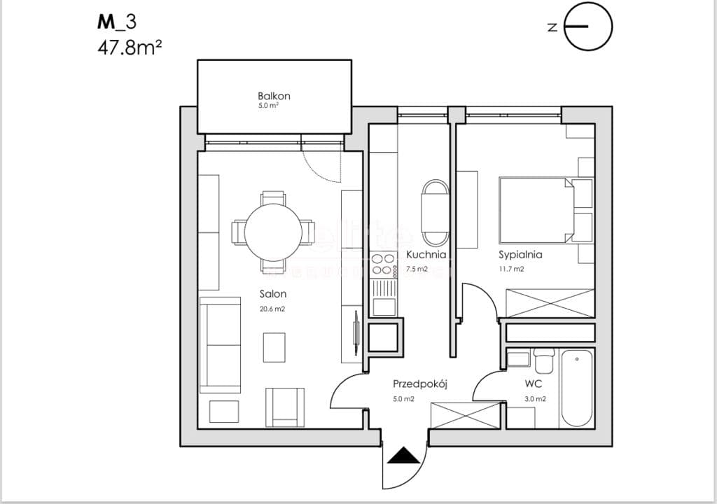
Funkcjonalny układ pomieszczeń obejmuje:
- przestronny salon (ok. 20 m²) z wyjściem na balkon (ok. 5 m²),
- ustawna sypialnia (11,5 m²),
- oddzielna kuchnia (7,5 m²),
- łazienka (3 m²),
- przedpokój (5 m²).
Dodatkowo do mieszkania przynależy piwnica (ok. 3 m²).
Mieszkanie jest ciepłe, środkowe i bardzo dobrze doświetlone – ekspozycja wschodnia zapewnia dostęp do naturalnego światła w godzinach porannych i do wczesnego popołudnia.
Atutem nieruchomości jest zielona, spokojna okolica, w bezpośrednim sąsiedztwie terenów rekreacyjnych i lasu – idealna dla osób ceniących aktywny wypoczynek. W pobliżu znajdują się również szkoły, przedszkola, sklepy oraz pełna infrastruktura miejska. Szybki dojazd do centrum – ok. 10 minut.
Mieszkanie stanowi doskonałą propozycję zarówno do zamieszkania, jak i jako inwestycja pod wynajem.Klucze w biurze – zapraszamy na prezentację.
KUPUJEMY NIERUCHOMOŚCI ZA GOTÓWKĘ w Szczecinie oraz nad morzem, również zadłużone: mieszkania, domy, działki - płacimy natychmiast
Powyższe ogłoszenie ma wyłącznie charakter informacyjny. Nie stanowi ono oferty w myśl art. 66 i n. ustawy z dnia 23.04.1964r. Kodeks cywilny (Dz.U. 1964r. Nr 16, poz. 93, ze zm.).