Pogorzelica

Mieszkania na Sprzedaż
Obniżka ceny
nr oferty 431837
powierzchnia 32 m2
ilość pokoi 2
piętro parter / 3
standard Stan deweloperski
NOWOCZESNE APARTAMETY W POGORZELICY Z OGRÓDKIEM

Zapraszamy do zapoznania się z ofertą 2 pokojowego mieszkania położonego w nowoczesnym kompleksie apartamentowców w Pogorzelicy

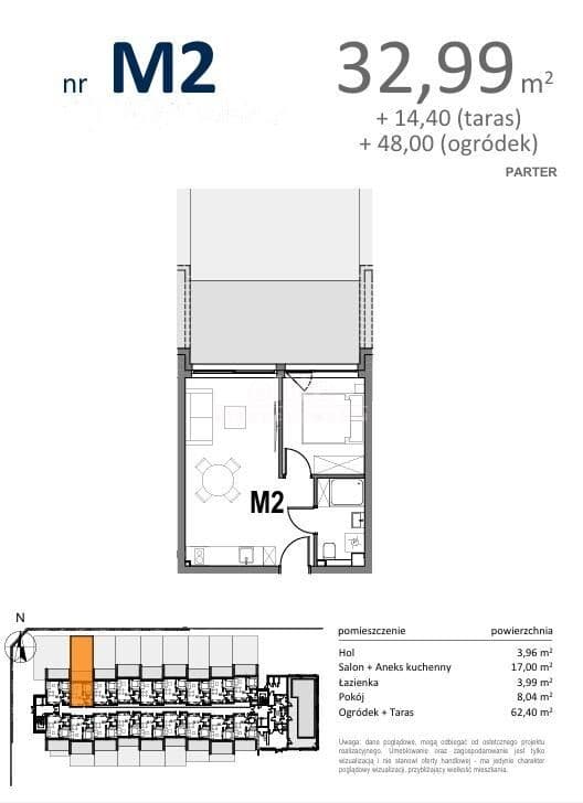
Lokal o powierzchni 32,99 m2, składa się z salonu z aneksem kuchennym, sypialni, łazienki wraz z WC oraz przedpokoju, do mieszkania przynależy taras i ogródek.

Dodatkowo miejsca parkingowego z blokadą na kłódkę 32tyś zł netto. Na parkingu będzie znajdować się również stacja ładowania samochodów elektrycznych.

STANDARD WYKOŃCZENIA:
- Okna PCV
- Parapety zewnętrzne – metalowe
- Balustrady balkonów i tarasów – parter - betonowe, piętro 1,2,3, antresola - stalowe malowane proszkowo w kolorze antracyt wypełnione szkłem
   klejonym;
- Maszynowe tynki wewnętrzne gipsowe na mokro bez gruntowania i szpachlowania
- Podłoża pod posadzki – betonowe z izolacją termiczną gr. 14 cm – parter i o gr. 4 cm – piętro 1,2,3;
- Instalacje – elektryczne z rozdzielnią uzbrojoną (bez osprzętu i punktów świetlnych);
- Instalacje wody zimnej i ciepłej – przyłącza z rozprowadzeniem instalacji w apartamencie;
- Instalacja kanalizacyjna – pion i trójnik z podejściem kanalizacyjnym pod przybory z zamontowanym stelażem podtynkowym do wc;
- Instalacja RTV; Instalacja internetowa; Instalacja domofonowa;
- Instalacja centralnego ogrzewania i ciepłej wody użytkowej zasilana z indywidualnego kotła gazowego dwufunkcyjnego z sterownikiem
   manualnym, grzejnik stalowy drabinkowy w łazience i ogrzewanie podłogowe w apartamencie. Instalacja gazowa podłączona do kotła gazowego;
- Drzwi wejściowe do mieszkań min klasy B


Mieszkanie składa się z:
- pokoju dziennego z aneksem kuchennym o pow. 17,00 m2
- sypialni/pokoju o pow. 8,04 m2,
- łazienki o pow. 3,99 m2
- taras o pow. 14,40 m2 + ogródek o pow. 48,00 m2.

OPŁATY ZA UTRZYMANIE LOKALU:

- miesięczny czynsz do zarządcy - ok. 300,00 zł w tym: opłaty zaliczkowe za utrzymanie nieruchomości wspólnej, zimną wodę, śmieci, fundusz remontowy, KORZYSTANIE ZE STREFY BASENOWEJ,
- gaz - wg zużycia - ogrzewanie, ciepła woda,
- prąd - wg zużycia.

Sprzedawane apartamenty oddawane są w stanie deweloperskim, co pozwala na wykończenie ich zgodnie z indywidualnymi preferencjami i potrzebami. W ramach dodatkowej oferty istnieje możliwość wykończenia lokali pod klucz. Lokale można użytkować cały rok, co pozwala elastycznie zarządzać czasem wynajmu i własnego wypoczynku.

Ten znakomicie zlokalizowany apartament stanowi idealne połączenie przytulnego mieszkania i wygody nadmorskiego kurortu.
Wokół panuje cisza i spokój. Obiekt położony jest zaledwie 1000 m od plaży.

Niewątpliwie jednym z atutów inwestycji jest całoroczny kryty basen sąsiadujący z salką fitness oraz sauną.

BARDZO DOBRA INWESTYCJA !!!

Zainwestuj swoje środki finansowe w pewną lokalizację. Możliwość wynajmu lokalu stanowi doskonałą inwestycję generującą dodatkowe dochody.

Podana cena, jest ceną NETTO, do której należy doliczyć 23% podatku VAT.

Kto może odliczyć 23% podatku VAT?
Przedsiębiorca, osoba fizyczna prowadząca działalność gospodarczą oraz osoba fizyczna nieprowadząca działalności gospodarczej, zarejestrowana jako czynny podatnik VAT.

ZAPRASZAMY DO KONTAKTU ORAZ UMÓWIENIA SIĘ NA PREZENTACJĘ !

KUPUJEMY NIERUCHOMOŚCI ZA GOTÓWKĘ w Szczecinie oraz nad morzem, również zadłużone: mieszkania, domy, działki - płacimy natychmiast

 Powyższe ogłoszenie ma wyłącznie charakter informacyjny. Nie stanowi ono oferty w myśl art. 66 i n. ustawy z dnia 23.04.1964r. Kodeks cywilny (Dz.U. 1964r. Nr 16, poz. 93, ze zm.).

Cena
425 571 zł
Cena za m2
12 900 zł
Czynsz administracyjny
300 zł
Miejscowość
Pogorzelica
Rodzaj budynku
Budynek apartamentowy
Stan prawny
Własność
Rok budowy
2026
Powierzchnia
32 m2
Standard
Stan deweloperski
Liczba pokoi
2
Typ kuchni
Aneks
Dodatkowe
Winda, Garaż
Wyświetleń
224
Sprawdź ratę kredytu
425 571 PLN
12 900 PLN / m2

ELITE nieruchomości

tel. 91 817 17 17

zainteresowania@elite.nieruchomosci.pl

Wyrażam zgodę na przetwarzanie danych
425 571 Stan deweloperski
Chcesz otrzymywać podobne oferty?

Skorzystaj z automatycznych powiadomień e-mail o nowych ogłoszeniach

© 2025 Elite Nieruchomości Szczecin - Mieszkania i domy na sprzedaż - Szczecin, Warszewo, Mierzyn, Bezrzecze, Gumieńce