Zapraszamy do zapoznania się z ofertą 2 pokojowego mieszkania położonego w nowoczesnym kompleksie apartamentowców w Pogorzelicy
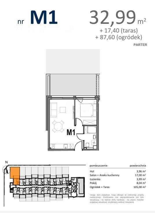
Lokal o powierzchni 32,99 m2, składa się z salonu z aneksem kuchennym, sypialni, łazienki wraz z WC oraz przedpokoju.
Dodatkowo miejsca parkingowego z blokadą na kłódkę 32tyś zł netto. Na parkingu będzie znajdować się również stacja ładowania samochodów elektrycznych.
STANDARD WYKOŃCZENIA:
- Okna PCV
- Parapety zewnętrzne – metalowe
- Balustrady balkonów i tarasów – parter - betonowe, piętro 1,2,3, antresola - stalowe malowane proszkowo w kolorze antracyt wypełnione szkłem
klejonym;
- Maszynowe tynki wewnętrzne gipsowe na mokro bez gruntowania i szpachlowania
- Podłoża pod posadzki – betonowe z izolacją termiczną gr. 14 cm – parter i o gr. 4 cm – piętro 1,2,3;
- Instalacje – elektryczne z rozdzielnią uzbrojoną (bez osprzętu i punktów świetlnych);
- Instalacje wody zimnej i ciepłej – przyłącza z rozprowadzeniem instalacji w apartamencie;
- Instalacja kanalizacyjna – pion i trójnik z podejściem kanalizacyjnym pod przybory z zamontowanym stelażem podtynkowym do wc;
- Instalacja RTV; Instalacja internetowa; Instalacja domofonowa;
- Instalacja centralnego ogrzewania i ciepłej wody użytkowej zasilana z indywidualnego kotła gazowego dwufunkcyjnego z sterownikiem
manualnym, grzejnik stalowy drabinkowy w łazience i ogrzewanie podłogowe w apartamencie. Instalacja gazowa podłączona do kotła gazowego;
- Drzwi wejściowe do mieszkań min klasy B
Mieszkanie składa się z:
- pokoju dziennego z aneksem kuchennym o pow. 17,00 m2
- sypialni/pokoju o pow. 8,04 m2,
- łazienki o pow. 3,99 m2
- taras o pow. 17,40 m2 + ogródek o pow. 87,60 m2.
OPŁATY ZA UTRZYMANIE LOKALU:
- miesięczny czynsz do zarządcy - ok. 300,00 zł w tym: opłaty zaliczkowe za utrzymanie nieruchomości wspólnej, zimną wodę, śmieci, fundusz remontowy, KORZYSTANIE ZE STREFY BASENOWEJ,
- gaz - wg zużycia - ogrzewanie, ciepła woda,
- prąd - wg zużycia.
Sprzedawane apartamenty oddawane są w stanie deweloperskim, co pozwala na wykończenie ich zgodnie z indywidualnymi preferencjami i potrzebami. W ramach dodatkowej oferty istnieje możliwość wykończenia lokali pod klucz. Lokale można użytkować cały rok, co pozwala elastycznie zarządzać czasem wynajmu i własnego wypoczynku.
Ten znakomicie zlokalizowany apartament stanowi idealne połączenie przytulnego mieszkania i wygody nadmorskiego kurortu.
Wokół panuje cisza i spokój. Obiekt położony jest zaledwie 1000 m od plaży.
Niewątpliwie jednym z atutów inwestycji jest całoroczny kryty basen sąsiadujący z salką fitness oraz sauną.
BARDZO DOBRA INWESTYCJA !!!
Zainwestuj swoje środki finansowe w pewną lokalizację. Możliwość wynajmu lokalu stanowi doskonałą inwestycję generującą dodatkowe dochody.
Podana cena, jest ceną NETTO, do której należy doliczyć 23% podatku VAT.
Kto może odliczyć 23% podatku VAT?
Przedsiębiorca, osoba fizyczna prowadząca działalność gospodarczą oraz osoba fizyczna nieprowadząca działalności gospodarczej, zarejestrowana jako czynny podatnik VAT.
ZAPRASZAMY DO KONTAKTU ORAZ UMÓWIENIA SIĘ NA PREZENTACJĘ !
KUPUJEMY NIERUCHOMOŚCI ZA GOTÓWKĘ w Szczecinie oraz nad morzem, również zadłużone: mieszkania, domy, działki - płacimy natychmiast
Powyższe ogłoszenie ma wyłącznie charakter informacyjny. Nie stanowi ono oferty w myśl art. 66 i n. ustawy z dnia 23.04.1964r. Kodeks cywilny (Dz.U. 1964r. Nr 16, poz. 93, ze zm.).