Zapraszamy do zapoznania się NOWĄ ofertą MIESZKAŃ w standardzie DEWELOPERSKIM zlokalizowanych w Policach.
Inwestycja obejmuje budynek wielorodzinny 3 - piętrowy z windą, składający się z 45 lokali mieszkalnych oraz 2 mniejsze budynki z 4 lokalami mieszkalnymi. Lokale będą posiadać aneks kuchenny lub oddzielną kuchnię.
Na parterze dużego bloku zlokalizowany będzie garaż z miejscami parkingowymi (32 miejsc), natomiast w obrębie osiedla zapewniono 22 miejsca parkingowe "pod chmurką".
Udogodnienia inwestycji:
- teren przyszłej inwestycji to kameralne w pełni zagospodarowane osiedle,
- do wyboru mieszkania o o pow. od ok. 25 m2 do ok. 65 m2,
- możliwość wykupienia miejsca postojowego w garażu lub na zewnątrz budynku za dodatkową opłatą.
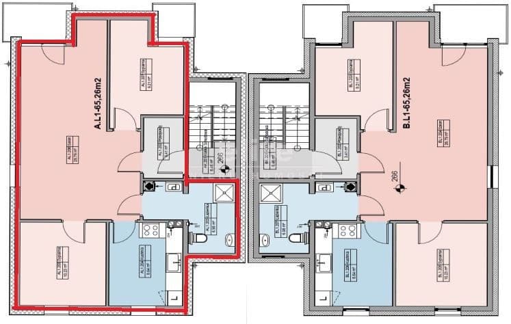
Niniejsza oferta dotyczy mieszkania 3-pokojowego z 2 balkonami położonego na I piętrze budynku mieszkalnego.
Lokal mieszkalny o pow. użytkowej 65,26 m2 składa się z następujących pomieszczeń:
- przedpokój - pow. 3,41 m2,
- salon - pow. 26,79 m2,
- kuchnia - pow. 8,64 m2
- sypialnia - pow. 10,23 m2,
- sypialnia - pow. 9,21 m2,
- łazienka - pow. 6,98 m2.
Wszystkie lokale mieszkalne wykończone będą w następującym standardzie deweloperskim:
- podłoża pod posadzki – betonowe,
- okna PCV bez szprosów 3-szybowe,
- parapety zewnętrzne –stalowe lub PCV,
- parapety wewnętrzne – postforming,
- ściany tynk kl. I – III - bez szpachlowania,
- sufity nietynkowane, nieszpachlowane, płyty kanałowe,
- w korytarzu, pokojach, łazience- przygotowane podłoże pod posadzki,
- biały montaż –we własnym zakresie,
- instalacje elektryczne- okablowanie, gniazda wtykowe i włączniki,
- instalacje sanitarne wodno kanalizacyjne (bez białego montażu),
- instalacja centralnego ogrzewania z grzejnikami
- drzwi wejściowe do mieszkań w cenie lokalu,
- drzwi wewnętrzne – brak,
- klatki schodowe – schody żelbetowe obłożone płytkami, balustrada stalowa, ściany tynkowane i malowane,
- ocieplenie konstrukcji dachu wełną mineralną lub pianą PUR wraz z folią.
MEDIA:
- instalacje- elektryczna, wodna, kanalizacyjna (kompletne),
- centralne ogrzewanie, ciepła woda - z kotłowni gazowej,
- instalacja TV, telefoniczna, internetowa- orurowanie.
Planowany termin zakończenia budowy XII.2025 r.
LOKALIZACJA:
Nowoczesne osiedle zlokalizowane jest w centrum Polic. Dobrze skomunikowane z centrum miasta i nie tylko. Idealna komunikacja, ośrodki dydaktyczne, służba zdrowia, centra handlowe gwarantują zarówno spokój jak i wygodę mieszkania.
W CENIE ZAWARTE JEST 8% VAT, Kupujący zwolniony jest z podatku od czynności cywilnoprawnych u notariusza.
ZAPRASZAMY DO KONTAKTU w celu poznania szczegółów, bądź UMÓWIENIA SIĘ NA PREZENTACJE !
BEZPŁATNIE POMAGAMY W UZYSKANIU KREDYTU HIPOTECZNEGO NA ZAKUP MIESZKANIA.
KUPUJEMY NIERUCHOMOŚCI ZA GOTÓWKĘ w Szczecinie oraz nad morzem, również zadłużone: mieszkania, domy, działki - płacimy natychmiast
Powyższe ogłoszenie ma wyłącznie charakter informacyjny. Nie stanowi ono oferty w myśl art. 66 i n. ustawy z dnia 23.04.1964r. Kodeks cywilny (Dz.U. 1964r. Nr 16, poz. 93, ze zm.).