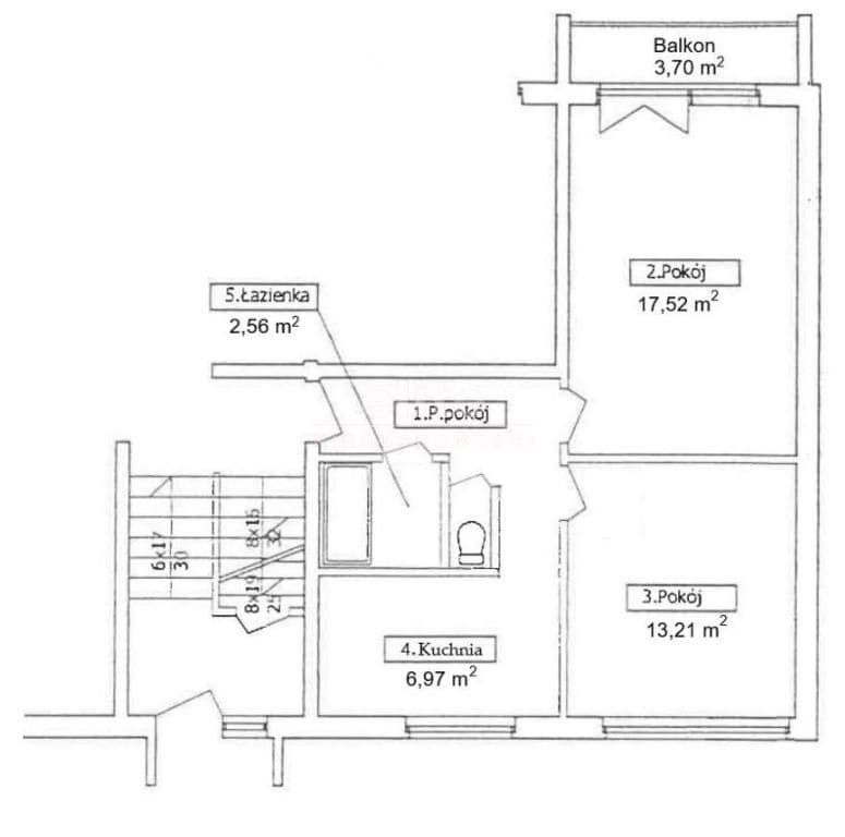
Na sprzedaż mieszkanie 2-pokojowe o powierzchni 46,80 m², zlokalizowane na początku Pomorzan – tuż przy węźle komunikacyjnym (przystanek tramwajowy i autobusowy wielu linii, przystanek Szczecińskiej Kolei Metropolitalnej).
Budynek jest ocieplony, a samo mieszkanie jest schludne, jasne oraz posiada funkcjonalny rozkład pomieszczeń. Z większego pokoju wyjście na słoneczną loggię.
To świetna propozycja inwestycyjna, szczególnie dla studentów medycyny – szpital na Pomorzanach znajduje się w bliskiej odległości.
Ogrzewanie pochodzi z sieci miejskiej, a okna PCV zapewniają komfort i ciszę.
Meble w sypialni pozostają w cenie mieszkania.
Status prawny to pełna własność.
Czynsz do zarządcy wynosi 650 zł i zawiera zaliczki na ciepłą i zimną wodę, ogrzewanie oraz fundusz remontowy.
Do lokalu przynależy piwnica (4,4 m2).
Okolica jest spokojna, z przyjaznym sąsiedztwem i dobrym dostępem do infrastruktury usługowo-handlowej.
Dodatkowo, za kwotę 30 000 zł można dokupić blaszany garaż zlokalizowany niedaleko budynku – idealne rozwiązanie dla osób ceniących komfort parkowania.
Zapraszam na bezpłatną prezentację – to miejsce, które warto zobaczyć!
KUPUJEMY NIERUCHOMOŚCI ZA GOTÓWKĘ w Szczecinie oraz nad morzem, również zadłużone: mieszkania, domy, działki - płacimy natychmiast
Powyższe ogłoszenie ma wyłącznie charakter informacyjny. Nie stanowi ono oferty w myśl art. 66 i n. ustawy z dnia 23.04.1964r. Kodeks cywilny (Dz.U. 1964r. Nr 16, poz. 93, ze zm.).