Mieszkanie na sprzedaż, Śródmieście-Centrum, Szczecin, 50m2, 3 pokoje, 520 000 zł, Oferta numer 439471
49.6 m²
3 pokoje
piętro: 2
Niski blok

















Mieszkanie 3 pokojowe z balkonem w centrum
Oferujemy na sprzedaż słoneczne i ciepłe mieszkanie położone w niskim bloku w centrum Szczecina, w pobliżu Placu Kościuszki i Bramy Portowej. Doskonała lokalizacja zapewnia łatwy dostęp do komunikacji miejskiej (tramwaj, autobus), a także do szkół, przedszkoli, sklepów i punktów usługowych.
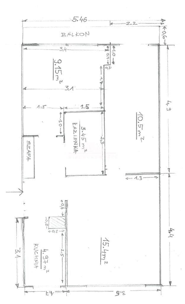
Mieszkanie składa się z trzech pokoi, w tym jednego z balkonem, oraz pokoju przechodniego przez salon. Osobna kuchnia z oknem jest w pełni wyposażona w zabudowę meblową, kuchenkę gazową i lodówkę, okap. Łazienka z WC posiada wannę, glazurę i terakotę, a w przedpokoju znajduje się praktyczna szafa w zabudowie.
Na podłogach w pokojach położono panele, a ściany są wygładzone i pomalowane w jasnych, neutralnych kolorach. Mieszkanie przeszło generalny remont 4 lata temu, a całe umeblowanie widoczne na zdjęciach może pozostać w cenie nieruchomości.
Dane techniczne:
Liczba pokoi: 3 (1 pokój z balkonem, 1 pokój przechodni przez salon)
Powierzchnia: 49,60 m2
Kuchnia: osobna, okno, zabudowa meblowa, kuchenka gazowa, lodówka
Łazienka: wanna, WC, glazura i terakota
Przedpokój: szafa w zabudowie
Podłogi: panele w pokojach
Ściany: wygładzone, malowane jasnymi tonacjami
Ogrzewanie i ciepła woda: sieć miejska
Piwnica i dostęp do strychu dla mieszkańców
Miejsca parkingowe na zamykanym podwórzu (bez dodatkowych opłat w strefie)
Opłaty:
Czynsz do zarządcy: 950 zł (3 osoby), 650 zł (1 osoba)
Mieszkanie jest idealne zarówno dla rodziny szukającej komfortowego miejsca do życia, jak i dla inwestora planującego wynajem. Gotowe do wprowadzenia od zaraz!
Mieszkanie składa się z trzech pokoi, w tym jednego z balkonem, oraz pokoju przechodniego przez salon. Osobna kuchnia z oknem jest w pełni wyposażona w zabudowę meblową, kuchenkę gazową i lodówkę, okap. Łazienka z WC posiada wannę, glazurę i terakotę, a w przedpokoju znajduje się praktyczna szafa w zabudowie.
Na podłogach w pokojach położono panele, a ściany są wygładzone i pomalowane w jasnych, neutralnych kolorach. Mieszkanie przeszło generalny remont 4 lata temu, a całe umeblowanie widoczne na zdjęciach może pozostać w cenie nieruchomości.
Dane techniczne:
Liczba pokoi: 3 (1 pokój z balkonem, 1 pokój przechodni przez salon)
Powierzchnia: 49,60 m2
Kuchnia: osobna, okno, zabudowa meblowa, kuchenka gazowa, lodówka
Łazienka: wanna, WC, glazura i terakota
Przedpokój: szafa w zabudowie
Podłogi: panele w pokojach
Ściany: wygładzone, malowane jasnymi tonacjami
Ogrzewanie i ciepła woda: sieć miejska
Piwnica i dostęp do strychu dla mieszkańców
Miejsca parkingowe na zamykanym podwórzu (bez dodatkowych opłat w strefie)
Opłaty:
Czynsz do zarządcy: 950 zł (3 osoby), 650 zł (1 osoba)
Mieszkanie jest idealne zarówno dla rodziny szukającej komfortowego miejsca do życia, jak i dla inwestora planującego wynajem. Gotowe do wprowadzenia od zaraz!
KUPUJEMY NIERUCHOMOŚCI ZA GOTÓWKĘ w Szczecinie oraz nad morzem, również zadłużone: mieszkania, domy, działki - płacimy natychmiast
Powyższe ogłoszenie ma wyłącznie charakter informacyjny. Nie stanowi ono oferty w myśl art. 66 i n. ustawy z dnia 23.04.1964r. Kodeks cywilny (Dz.U. 1964r. Nr 16, poz. 93, ze zm.).
cena
520 000 zł
cena za metr
10 484 zł
miejscowość
Szczecin
piętro
2
pięter
5
czynsz administracyjny
650 zł
rok budowy
1970
powierzchnia
49.6 m2
stan nieruchomości
Bardzo dobry
stan prawny
Własność
rodzaj budynku
Niski blok
rodzaj ogrzewania
CO miejskie
ciepła woda
Wodociąg miejski
typ okien
PCV
typ kuchni
Widna
materiał
Wielka Płyta
stan prawny
Własność
dodatki
domofon
wyświetleń
3

