Przestronne mieszkanie w sercu Szczecina w prestiżowej lokalizacji przy Jasnych Błoniach i Urzędzie Miasta.
Szukasz komfortowego mieszkania w Centrum dla swojej rodziny? A może interesuje Cię znalezienie punktu w świetnej lokalizacji na prowadzenie cichej działalności? Mamy dla ciebie ofertę wyjątkowego mieszkania na sprzedaż o pow. 90,97 m2 na parterze budynku wielorodzinnego w samym sercu miasta. Remont wykonany w 2020 roku na podstawie projektów, ponadto zachowana została cała dokumentacja techniczna i odbiory.
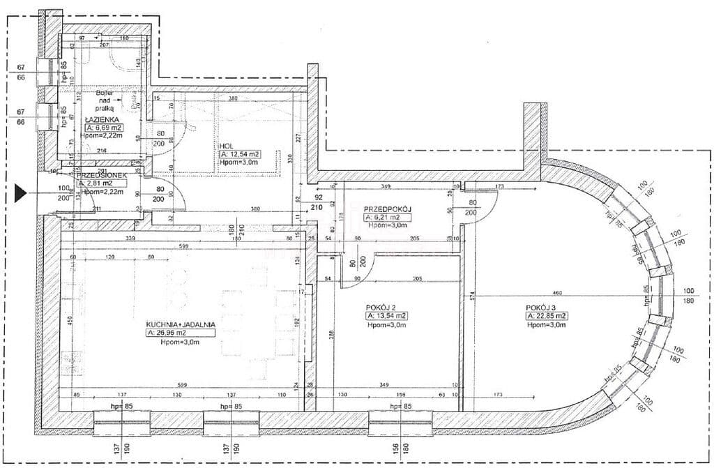
Mieszkanie:
* powierzchnia 90,97 m2
* parter z osobnym wejściem z ulicy – idealne dla rodzin z dziećmi, osób starszych lub z ograniczeniami ruchowymi oraz pod cichą działalność
* w skład powierzchni 90,97 m2 obecnie wchodzą:
· przedsionek 2,84 m2,
· hol 12,58 m2,
· łazienka 5,76 m2,
· przedpokój 6,25 m2,
· kuchnia z jadalnią 26,96 m2,
· sypialnia 13,50 m2,
· salon o 23,09 m2,
* kuchnia z meblami w zabudowie na wymiar koloru białego z granitowymi blatami i wyspą, wyposażona w sprzęt AGD: piekarnik, lodówkę z zamrażarką, płytę gazową, okap z wyciągiem oraz zmywarkę. Kuchnia to przestronne i jasne pomieszczenie połączone z jadalnią, gdzie obecnie znajduje się duży drewniany stół z 6 krzesłami.
* łazienka wykończona materiałami wysokiej klasy – nowe kafle, nowoczesny grzejnik, WC podtynkowe marki Grohe, kabina typu walk-in, pralka. W łazience zainstalowano dodatkowo wentylację mechaniczną.
* funkcjonalny przedpokój z dużymi, drewnianymi szafami w zabudowie
* drewniana stolarka wewnętrzna
* centralne ogrzewanie, żeliwne grzejniki
* ciepła woda z bojlera elektrycznego
* nowa instalacja wodno-kanalizacyjna, elektryczna, gazowa oraz wentylacja z 2020 r.
* ocieplone podłogi na wylewce, na nich położone są kafle granitowe oraz deska drewniana
* nowe okna 3-szybowe zapewniające ciszę i wzorową izolację cieplną, granitowe parapety
* orientacja okien na południowy zachód i północny zachód
Budynek:
* wielorodzinny z fasadą odnowioną 10 lat temu
* zainstalowane kamery z czujnikami ruchu
* zainstalowana TV naziemna
* otoczony zadbanym terenem zielonym do użytku wspólnego
Okolica:
Nie sposób wymienić wszystkich zalet tej lokalizacji, która łączy w sobie historyczny urok z nowoczesną energią miasta. To przepiękne centrum zielonego Szczecina z rozwiniętą infrastrukturą. W okolicy znajdziemy liczne punkty handlowo – usługowe oraz przystanki autobusowe linii 87 oraz 70 i tramwajowe linii 1, 2, 3, 4, 5. W odległości spacerowej jest Urząd Miasta, Jasne Błonia, fitness club, przedszkole, szkoła podstawowa, liceum, basen, Teatr Lalek Pleciuga. Dla osób szukających wygody, którą daje mieszkanie w Centrum będzie to doskonała lokalizacja pod każdym względem ze względu na bliskość przykładowo do:
- Ogrodów Śródmieście – 750m
- Galaxy - 1,2 km
- Kina Pionier 1,3 km
- Filharmonii – 1,8 km
Co jednak najważniejsze, miejsce to w pełni oddaje piękno Szczecina, które można poczuć spacerując szerokimi ulicami w otoczeniu zieleni. Osoby szukające miejsca na otwarcie cichej działalności także nie znajdą lepszej lokalizacji – przy budynku znajdziemy wiele ogólnodostępnych miejsc do parkowania na ulicy (żółta strefa PP).
Ważne:
* wysokiej klasy materiały użyte do wykończenia
* nowa instalacja wodno-kanalizacyjna, gazowa oraz elektryczna
* przynależna piwnica o pow. 16 m2
* meble wolnostojące widoczne w ogłoszeniu nie są dostępne na sprzedaż
* opłaty: czynsz z zaliczkami na CO, wodę, śmieci - 900 zł, fundusz remontowy - 230 zł, prąd wg zużycia, gaz wg zużycia
* monitoring
KUPUJEMY NIERUCHOMOŚCI ZA GOTÓWKĘ w Szczecinie oraz nad morzem, również zadłużone: mieszkania, domy, działki - płacimy natychmiast
Powyższe ogłoszenie ma wyłącznie charakter informacyjny. Nie stanowi ono oferty w myśl art. 66 i n. ustawy z dnia 23.04.1964r. Kodeks cywilny (Dz.U. 1964r. Nr 16, poz. 93, ze zm.).