Świnoujście

Mieszkania na Sprzedaż
Obniżka ceny
nr oferty 428640
powierzchnia 84 m2
ilość pokoi 3
piętro 4 / 4
standard Idealny
mieszkanie w Świnoujściu

Oferujemy   do   sprzedaży   luksusowe, dwupoziomowe mieszkanie w   Świnoujściu,   które zlokalizowane jest w odległości około 350. metrów od plaży i blisko promenady nadmorskiej w   
otoczeniu Parku Zdrojowego. Sąsiaduje z kompleksem medyczno-rehabilitacyjnym, basenem,   salą fitness   i   całą   gamą   usług   pielęgnacyjno-leczniczych.

Otoczenie nieruchomości jest zagospodarowane architekturą krajobrazu z fontanną ,  piękną dobrze utrzymaną zielenią, placem zabaw, miejscem na rowery.
Na terenie znajduje się również bistro serwujące pyszne posiłki.
Osiedle jest objęte ochroną.

Apartament   znajduje   się   na   4. piętrze   budynku   wyposażonego   w   windę   z dostępem   do podziemnego, wielostanowiskowego garażu.
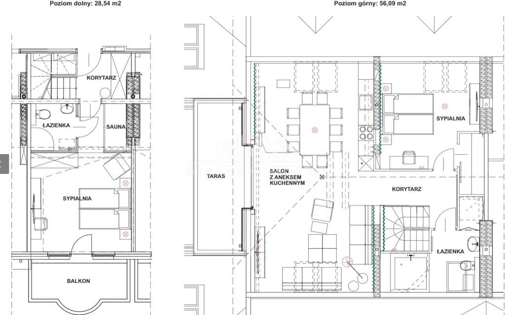
Na   powierzchnię   mieszkania   84,63   m2   składają   się:
- na 1. poziomie przedpokój z szafą w zabudowie i szafkami na obuwie, holl, sauna na podczerwień, sypialnia   z   balkonem, łazienka z wc, 
- na 2. poziomie duży salon z jadalnią, aneksem kuchennym i tarasem 18m 2, sypialnia , łazienka z dużą wanną narożną z hydromasażem i wc 

Apartament jest pięknie zaprojektowany oraz komfortowo wykończony i wyposażony m.in. w saunę, wannę z hydromasażem, stół bilardowy.
Miesięczne opłaty związane z utrzymaniem mieszkania i nieruchomości wspólnej wynoszą około 1000 zł.

Zapraszamy do kontaktu i obejrzenia mieszkania

KUPUJEMY NIERUCHOMOŚCI ZA GOTÓWKĘ w Szczecinie oraz nad morzem, również zadłużone: mieszkania, domy, działki - płacimy natychmiast

 Powyższe ogłoszenie ma wyłącznie charakter informacyjny. Nie stanowi ono oferty w myśl art. 66 i n. ustawy z dnia 23.04.1964r. Kodeks cywilny (Dz.U. 1964r. Nr 16, poz. 93, ze zm.).

Cena
1 820 000 zł
Cena za m2
21 505 zł
Czynsz administracyjny
650 zł
Miejscowość
Świnoujście
Rodzaj budynku
Budynek apartamentowy
Rok budowy
2015
Powierzchnia
84 m2
Standard
Idealny
Piętro
4
Liczba pokoi
3
Ogrzewanie
CO miejskie
Ciepła woda
Wodociąg miejski
Typ kuchni
Aneks
Dodatkowe
Winda, Garaż
Wyświetleń
104
Sprawdź ratę kredytu
1 820 000 PLN
21 505 PLN / m2

ELITE nieruchomości

tel. 91 817 17 17

zainteresowania@elite.nieruchomosci.pl

Wyrażam zgodę na przetwarzanie danych
1 820 000 Idealny
Chcesz otrzymywać podobne oferty?

Skorzystaj z automatycznych powiadomień e-mail o nowych ogłoszeniach

© 2025 Elite Nieruchomości Szczecin - Mieszkania i domy na sprzedaż - Szczecin, Warszewo, Mierzyn, Bezrzecze, Gumieńce