PROWIZJĘ POŚREDNIKA POKRYWA SPRZEDAJĄCY
Idealne dla osób szukających własnej przystani nad morzem lub pewnej inwestycji.
Lokale:
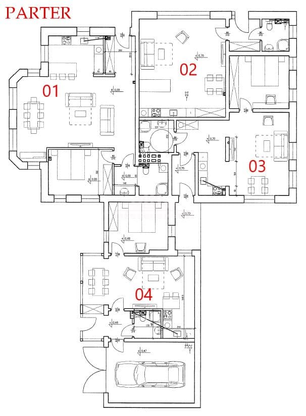
* powierzchnia od 28mkw do 77mkw (rzuty, wymiary i dostępność poszczególnych lokali widoczna na zdjęciach oraz u pośrednika)
* 1- lub 2- pokojowe, z kuchnią w formie aneksu i łazienką, niektóre z balkonem (nr. 5 i 6) lub antresolą (nr. 13) a jedno z garażem w bryle budynku (nr. 4)
* mieszkania na parterze z osobnymi wejściami z dworu, dodatkowo jedno z nich przystosowane dla osób niepełnosprawnych (nr. 2)
* stan deweloperski: wykonano gładzie, posadzki samopoziomujące, zamontowano grzejniki, wykonano instalację elektryczną, grzewczą, wodno-kanalizacyjną, okna drewniane II szybowe, parapety z konglomeratu, drzwi wejściowe antywłamaniowe
* ciepła woda i ogrzewanie z dwu obiegowego pieca gazowego znajdującego się w każdym lokalu
* indywidualne liczniki wody, gazu i prądu dla każdego z lokali
* istnieje możliwość wykończenia pod klucz oraz wynajmu pod nadzorem firm współpracujących z biurem nieruchomości (zapewniamy projekt, zakupy z rabatem 15% w Leroy Merlin, wykonanie prac wykończeniowych, a jeśli trzeba także zarządzanie najmem krótkoterminowym)
* prywatne miejsca postojowe w cenie 8000 zł
* rozprowadzona instalacja TV/internet do każdego lokalu indywidualnie
* podana cena jest ceną brutto (VAT 8% jest już wliczony) - brak podatku PCC 2% przy zakupie
* ceny poszczególnych lokali różnią się w zależności od powierzchni (cena za metr kwadratowy wynosi 12.500 zł)
Budynek:
* dwupiętrowy dom otoczony zielenią, posadowiony w głębi działki w otoczeniu innych domów gościnnych, z dala od dużych ośrodków, tylko 14 apartamentów
* miejsce do grillowania umiejscowione za budynkiem w kameralnym patio
Okolica:
* Ustronie Morskie to znana i lubiana miejscowość wypoczynkowa i turystyczna. Jest to też doskonała baza wypadowa. W okolicy znajdują się m.in. Rezerwat Wierzchomiński, Ogrody Hortulus, pomniki przyrody i wiele innych atrakcji. Miejscowość oddalona jest zaledwie 10 km od Kołobrzegu i 30 km od Koszalina. W Ustroniu Morskim funkcjonuje transport publiczny – PKS, PKP i busy prywatnych przewoźników. Do autostrady S3 mamy zaledwie 4km, zaś do lotniska Bagicz (loty do Warszawy!) 5km.
Ważne:
* teren wspólny o powierzchni ponad 2000mkw ogrodzony z bramą wjazdową
* tylko 14 apartamentów (kameralna zabudowa)
* przedstawione zdjęcia to wizualizacje, możliwość obejrzenia stanu faktycznego podczas prezentacji z pośrednikiem
* podana cena jest ceną brutto (VAT 8% jest już wliczony)
* ceny poszczególnych lokali różnią się w zależności od powierzchni (cena za metr kwadratowy wynosi 12.500 zł)* budynek oddany do użytku - przeniesienie własności możliwe w każdej chwili
KUPUJEMY NIERUCHOMOŚCI ZA GOTÓWKĘ w Szczecinie oraz nad morzem, również zadłużone: mieszkania, domy, działki - płacimy natychmiast
Powyższe ogłoszenie ma wyłącznie charakter informacyjny. Nie stanowi ono oferty w myśl art. 66 i n. ustawy z dnia 23.04.1964r. Kodeks cywilny (Dz.U. 1964r. Nr 16, poz. 93, ze zm.).