Zapraszamy na prezentację przestronnego dwupokojowego lokalu o powierzchni 49,55 m², położonego na popularnym Warszewie. Mieszkanie jest słoneczne, ciepłe i bardzo funkcjonalne, idealne zarówno dla singla, pary, jak i pod inwestycję.
Mieszkanie:
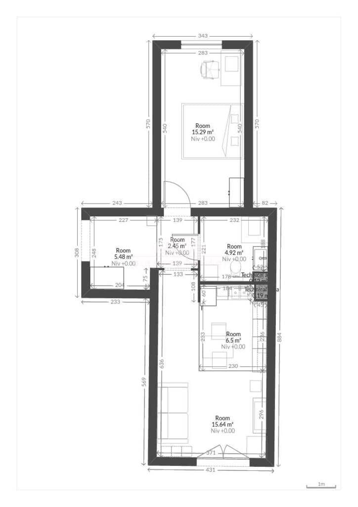
* powierzchnia 49,55mkw
* 1 piętro z balkonem
* salon z aneksem kuchennym (22mkw)
* ustawna sypialnia (15mkw)
* przedpokój z dużą szafą (8mkw)
* łazienka z prysznicem (5mkw)
* ogrzewanie i ciepła woda z kotłowni osiedlowej
* okna PCV w bardzo dobrym stanie
* na podłogach panele
* drzwi antywłamaniowe
* dobre położenie względem stron świata – sypialnia znajduje się od północnego-wschodu, a salon z balkonem ma wystawę południowo-zachodnią co zapewnia dużo światła słonecznego przez cały dzień.
Budynek:
* niski blok z 2018 r.
* umiejscowienie przy małej, osiedlowej ulicy
* klatki schodowe będą odmalowane – w marcu br. Wspólnota podjęła stosowną uchwałę
* monitoring
* liczne ogólnodostępne miejsca postojowe wzdłuż ulicy, a Wspólnota dysponuje dodatkowo 8 miejscami dla mieszkańców za szlabanem.
Okolica:
Warszewo to jedna z najbardziej cenionych części Szczecina, łącząca kameralny charakter z wygodnym dostępem do centrum miasta. Dzięki sprawnemu dojazdowi zarówno samochodem, jak i komunikacją miejską, dotarcie do śródmieścia zajmuje zaledwie kilkanaście minut. Osiedle położone jest na wzgórzach, w sąsiedztwie terenów zielonych i lasów, co zapewnia mieszkańcom codzienny kontakt z naturą, ciszę oraz doskonałe warunki do spacerów, biegania i aktywnego wypoczynku.
Na osiedlu znajduje się duży miejski plac zabaw dla dzieci w każdym wieku (z siłownią pod chmurką i boiskiem do koszykówki) plus 3 mniejsze place zabaw rozsiane po osiedlu.
W najbliższej okolicy znajdują się: sklep Żabka, Biedronka, przychodnia, piekarnia, szkoła podstawowa, paczkomaty, apteka, restauracja. Tuż obok przystanek autobusowy linii 87, a około kilometr dalej linii 92, 57 i 99.
Do Puszczy Wkrzańskiej mamy 10 minut spacerem.
Do Szczecińskiej Gubałówki niewiele więcej.
Po drugiej stronie ulicy ROD Zjednoczenie.
Ważne:
* Czynsz przy 3 osobach z zaliczkami na wodę, ogrzewanie i śmieci wynosi 750zł + fundusz remontowy 150zł
* mieszkanie jest ciepłe – regularne zwroty za ogrzewanie
* dostępny internet światłowodowy od Play i Orange
* dla kupującego rabat 15% na zakupy w Leroy Merlin
KUPUJEMY NIERUCHOMOŚCI ZA GOTÓWKĘ w Szczecinie oraz nad morzem, również zadłużone: mieszkania, domy, działki - płacimy natychmiast
Powyższe ogłoszenie ma wyłącznie charakter informacyjny. Nie stanowi ono oferty w myśl art. 66 i n. ustawy z dnia 23.04.1964r. Kodeks cywilny (Dz.U. 1964r. Nr 16, poz. 93, ze zm.).