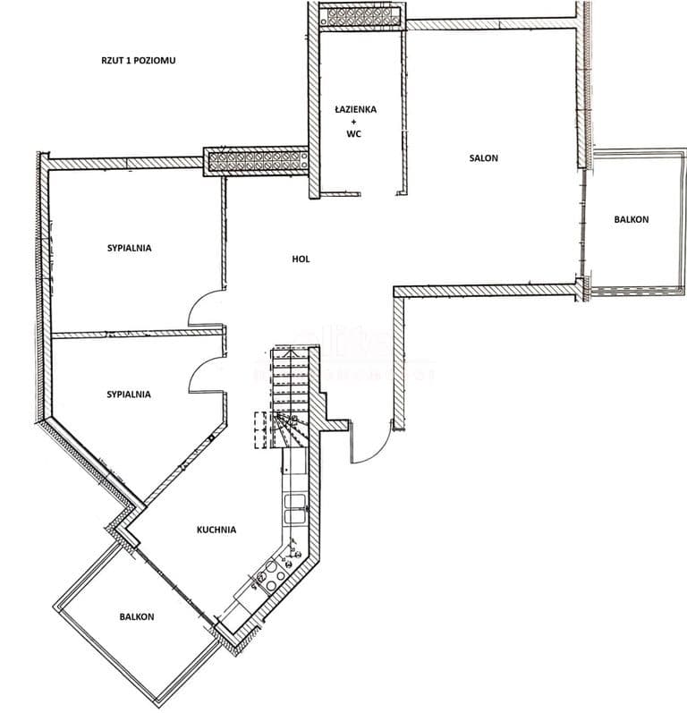
Prezentujemy Państwu na sprzedaż 4 pokojowe mieszkanie o pow. ok. 89 m2 usytuowane na 2 piętrze niskiego budynku na klimatycznym i zamkniętym osiedlu na Warzymicach.
Nieruchomość o bardzo ciekawym rozkładzie pomieszczeń, funkcjonalnie i przyjemnie zaaranżowana.
Na powierzchnię mieszkania składają się dwa poziomy.
Na pierwszym znajdują się spory salon o pow. ok. 23 m2 w wyjściem na balkon, dwie sypialnie, kuchnia z wyjściem na balkon, łazienka z WC oraz duży hol z szafami w zabudowie.
Łazienka spora wyposażona w wannę, kabinę prysznicową WC oraz bidet, wykończona gustownymi kaflami.
Kuchnia urządzona bardzo funkcjonalnie, z meblami w zabudowie .
Na drugim poziomie znajduje się duża przestrzeń gdzie znajduje się sypialnia z garderobą oraz część przeznaczona na gabinet.
Nieruchomość w bardzo dobrym stanie, nowocześnie zaaranżowana i przyjemna dla oka.
Liczne punktowe oświetlenie oraz wystrój dają bardzo przyjemny klimat.
Czynsz ok. 1200 + 330 zł fundusz remontowy. Ogrzewanie oraz ciepła woda w czynszu (miejskie).
Do użytku 2 piwnice!
Istnieje możliwość dokupienia garażu.
Budynek w świetnym stanie z ładną klatką oraz przyjemną infrastrukturą na całym osiedlu.
Osiedle strzeżone i monitorowane z licznymi miejscami parkingowymi.
Okolica przyjazna rodzinie. W pobliżu sklepy, punkty usługowe oraz miejsca do rekreacji!
Szczególnie polecamy ze względu na lokalizację oraz standard nieruchomości!
Zapraszamy na prezentacje
KUPUJEMY NIERUCHOMOŚCI ZA GOTÓWKĘ w Szczecinie oraz nad morzem, również zadłużone: mieszkania, domy, działki - płacimy natychmiast
Powyższe ogłoszenie ma wyłącznie charakter informacyjny. Nie stanowi ono oferty w myśl art. 66 i n. ustawy z dnia 23.04.1964r. Kodeks cywilny (Dz.U. 1964r. Nr 16, poz. 93, ze zm.).