Na sprzedaż duże, zadbane, słoneczne mieszkanie, zlokalizowane na 4 piętrze W NOWYM BUDYNKU Z CEGŁY.
Mieszkanie jest wewnętrzne, a ponad nim jest jeszcze nieużytkowe poddasze i dach dwuspadowy kryty dachówką ceramiczną BRASS.
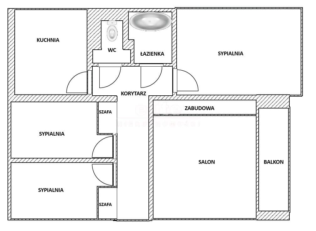
Mieszkanie o powierzchni 77 m2, składa się z :
- salonu (18 m2) z wyjściem na balkon (4,5 m2),
- trzech sypialni (16/8/8 m2.),
- oddzielnej kuchni z oknem (9 m2),
- łazienki z wanną (3 m2),
- oddzielnej toalety 1,7 m2),
- oraz przestronnego korytarza (9 m2).
Wszystkie pokoje rozkładowe.
Na podłogach w pokojach panele, w kuchni i korytarzu terakota. Ściany i sufity gładzone i malowane.
Kuchnia zabudowana jest meblami na wymiar, z wyposażeniem w zabudowie (kuchenka gazowa z piekarnikiem, okap, zmywarka).
Łazienka z wanną oraz osobna toaleta z umywalką - w nowej glazurze i terakocie.
Przedpokój zabudowany dwoma, pojemnymi, szafami firmy Komandor.
W salonie na jednej ze ścian duża, praktyczna zabudowa firmy Komandor, z tego pokoju jest wyjście na balkon od strony południowo - zachodniej.
W mieszkaniu rozprowadzona instalacja internetowa, TV kablowej, telefoniczna. Instalacja elektryczna miedziana. Centralne ogrzewanie i ciepła woda z sieci miejskiej.
Okna PCV, z zamontowanymi wywietrznikami ciśnieniowymi.
Do mieszkania przynależy duża piwnica.
Klatka schodowa czysta, po remoncie. Budynek z cegły, ocieplony, nowy dwuspadowy dach kryty dachówką ceramiczną, wymienione piony wodno - kanalizacyjne.
Czynsz do SM: 1200 PLN (na 4 osoby, w tym dwójka małych dzieci) - w dużej mierze zależy od zużycia wody. Czynsz zawiera zaliczki na centralne ogrzewanie, wodę zimną i ciepłą, śmieci, fundusz remontowy, ryczałt za gaz (tylko do kuchenki).
Coroczne zwroty za centralne ogrzewanie.
Mieszkanie jasne, przestronne i ciepłe.
Lokalizacja w samym centrum Zdrojów, tuż przy Rondzie Ułanów Podolskich.
W pobliżu dostęp do pełnej infrastruktury: szkoły, przedszkola, przychodnie, sklepy wielu branż (LIDL, Biedronka), apteki, banki, inne usługi.
Przepiękny, nieograniczony widok z okien na Puszczę Bukową i Jezioro Dąbie.
Bezproblemowe parkowanie przed budynkiem - duży parking dla mieszkańców tylko tego budynku.
Bliskość przystanków wielu linii autobusowych oraz szybkiego tramwaju zapewnia dogodny dojazd do centrum w kilkanaście minut.
KUPUJEMY NIERUCHOMOŚCI ZA GOTÓWKĘ w Szczecinie oraz nad morzem, również zadłużone: mieszkania, domy, działki - płacimy natychmiast
Powyższe ogłoszenie ma wyłącznie charakter informacyjny. Nie stanowi ono oferty w myśl art. 66 i n. ustawy z dnia 23.04.1964r. Kodeks cywilny (Dz.U. 1964r. Nr 16, poz. 93, ze zm.).