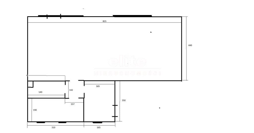
Na sprzedaż nieduża kamienica o powierzchni użytkowej 267,85 m2 znajdująca się w zabytkowej części Szczecina na Podzamczu. Obiekt składa się z trzech kondygnacji. Na parterze znajduje się lokal użytkowy o powierzchni około 54 m2, który świetnie nadaje się pod działalność: salon masażu salon fryzjerski , salon kosmetyczny , biuro . Na pierwszym piętrze znajduje się przestronne mieszkanie składające się z salonu z wyjściem na balkon, sypialni, otwartej kuchni oraz łazienki o powierzchni około 53 m2.
Na drugiej kondygnacji jest dwupoziomowe mieszkanie o powierzchni około 110 m2. Na pierwszym poziomie tego mieszkania jest salon z dużą otwartą kuchnią, łazienka i pomieszczenie gospodarcze zaś na drugim poziomie są dwie sypialnie, łazienka oraz kotłownia z piecem gazowym ogrzewającym całą kamienicę oraz małe pomieszczenie z oknem około 2,5 m2. Budynek posiada wykończoną piwnicę, około 30 m2, którą z powodzeniam można wykorzystać do prowadzenia działalności..
Kamienica została wybudowana w 1999 roku. Okna są drewniane. Drzwi wejściowe oraz pozostała stolarka drewniana.. Ogrzewanie piec gazowy. Ciepła woda. piec gazowy.
Budynek położony jest w niedalekiej odległości od centrum (15 minut pieszo). Do dyspozycji jest również komunikacja miejska zapewniająca łatwy dostęp do innych części miasta, do centrum w parę minut można dostać się liniami autobusowymi: 61, 75, 87 oraz liniami tramwajowymi: 2, 6, 8. W okolicy znajdują się: opera, Zamek Książąt Pomorskich, liczne restauracje, bulwar Piastowski, rynek Sienny, Wały Chrobrego oraz dwie galerie (Galaxy oraz Kaskada).
KUPUJEMY NIERUCHOMOŚCI ZA GOTÓWKĘ w Szczecinie oraz nad morzem, również zadłużone: mieszkania, domy, działki - płacimy natychmiast
Powyższe ogłoszenie ma wyłącznie charakter informacyjny. Nie stanowi ono oferty w myśl art. 66 i n. ustawy z dnia 23.04.1964r. Kodeks cywilny (Dz.U. 1964r. Nr 16, poz. 93, ze zm.).