Na sprzedaż budynek/hala magazynowo - produkcyjna.
Budynek magazynowo - produkcyjny, idealny pod produkcję hurtową garmażeryjną itp.
Atrakcyjna lokalizacja ( przy DK 13, Rondo Hakena).
Powierzchnia użytkowa: 250 m2 + dostawione kontenery = łączna powierzchnia użytkowa ok 350 m2.
Powierzchnia działki: 915 m2.
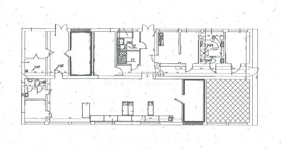
W budynku znajduje się dużo pomieszczeń m.in.:
- biurowe
- socjalne
- magazynowe
- produkcyjne
- 3 chłodnie
- wc
- szatnia
- kotłownia
Budynek wymaga odświeżenia.
Podana cena jest ceną netto, należy doliczyć 23% VAT.
Zapraszam na prezentację.
Mapka nie odzwierciedla faktycznej lokalizacji.
Treść niniejszego ogłoszenia nie stanowi oferty handlowej w rozumieniu Kodeksu Cywilnego. Treść ma charakter informacyjny i zalecamy ich osobistą weryfikację. Kontaktując się z biurem Klient wyraża zgodę na przetwarzanie danych osobowych zgodnie z przepisami ustawy z dnia 29 sierpnia 1997 roku o ochronie danych osobowych / Dz.U.Nr. 133 poz. 883/. Klientowi przysługuje prawo do wglądu do swoich danych osobowych i ich aktualizacji.
KUPUJEMY NIERUCHOMOŚCI ZA GOTÓWKĘ w Szczecinie oraz nad morzem, również zadłużone: mieszkania, domy, działki - płacimy natychmiast
Powyższe ogłoszenie ma wyłącznie charakter informacyjny. Nie stanowi ono oferty w myśl art. 66 i n. ustawy z dnia 23.04.1964r. Kodeks cywilny (Dz.U. 1964r. Nr 16, poz. 93, ze zm.).