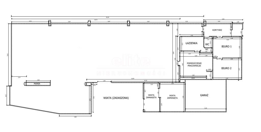
Do wynajęcia hala produkcyjno - magazynowa o powierzchni 380 m2, w tym ok. 80 m2 powierzchni biurowo - socjalnej z toaletą:
- dwa pomieszczenia biurowe ( ok. 15 m2 każde);
- pomieszczenie socjalne dla pracowników, wraz z przebieralnią i łazienkami (ok. 30 m2)
- toaleta dla klientów (ok. 2 m2);
Hala murowana, o powierzchni 300 m2. Posadzka niepylna. W hali zainstalowane jest oświetlenie elektryczne.
W części biurowo - socjalnej na podłogach położono kafle,WC z kabiną prysznicową w glazurze i terakocie.
Obiekt posiada niezależne ogrzewanie gazowe w postaci centralnego ogrzewania i nadmuchu.
Dodatkowo do wynajęcia wiata przylegająca do hali (92 m2 w cenie 2024 zł) oraz plac (ok 285 m2 w cenie 3396 zł).
Przy hali duży, utwardzony plac manewrowy umożliwiający dojazd i parkowanie samochodów typu TIR. Teren zamykany na noc i monitorowany.
Preferowany najem na minimum 12 miesięcy, kaucja w kwocie 30 000 zł.
Biura: 80 m2 - 40 zł/m2 = 3200 zł/netto
Hala: 300 m2 - 35 zł/m2 =10500 zł/netto
Wiata obok Hali: 92 m2 - 20 zł/m2 = 1840 zł/netto
Razem: 15 540 zł/netto/miesięcznie.
Kaucja 30 000 zł
Hala dostępna od 01.06.2026.
Do ceny najmu będzie doliczony VAT.
Doskonała lokalizacja -blisko Centrum - szybki i bezkonfliktowy wyjazd z miasta.
KUPUJEMY NIERUCHOMOŚCI ZA GOTÓWKĘ w Szczecinie oraz nad morzem, również zadłużone: mieszkania, domy, działki - płacimy natychmiast
Powyższe ogłoszenie ma wyłącznie charakter informacyjny. Nie stanowi ono oferty w myśl art. 66 i n. ustawy z dnia 23.04.1964r. Kodeks cywilny (Dz.U. 1964r. Nr 16, poz. 93, ze zm.).