Dobra

Domy na Sprzedaż
nr oferty 437725
powierzchnia 133 m2
ilość pokoi 5
piętro parter / 1
standard Stan deweloperski
Bliźniak Dobra 133 mkw, ogród, 2 m.parking.

Oferta sprzedaży domu jednorodzinnego dwulokalowego zlokalizowanego wśród niskiej zabudowy jednorodzinnej na zadbanym osiedlu w Dobrej z dostępem do wszystkich mediów.
Dojazd pod posesję drogą asfaltową i z polbruku.
Do każdego lokalu przynależne są 2 miejsca parkingowe oraz ogród zlokalizowany od strony południowo-zachodniej.

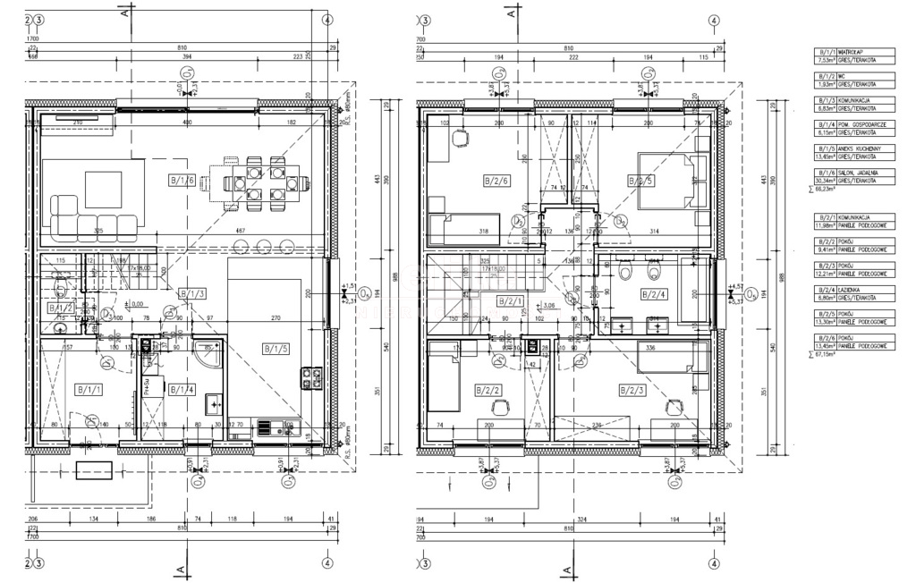
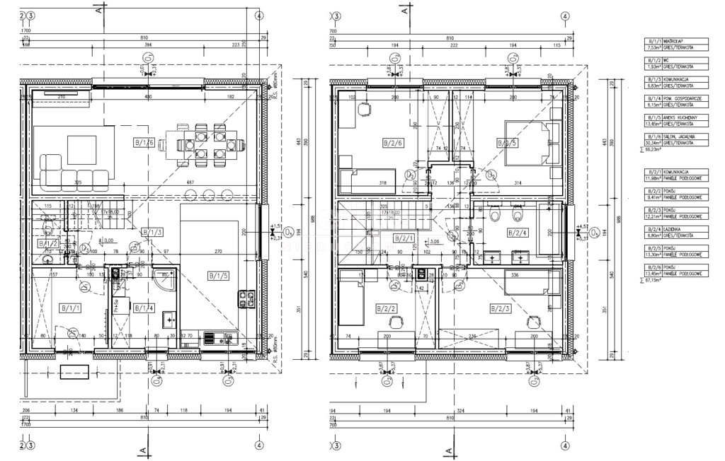
Na powierzchnię 133,49m2 składa się: 
Parter (66,27 m2):
- przestronny salon z jadalnią o powierzchni 30,34m2,
- aneks kuchenny (13,45m2),
- łazienka (6,19m2),
- wiatrołap (7,53m2),
- korytarz (6,83m2),
- pomieszczenie gospodarcze (1,93m2).
 Piętro (67,15 m2):
- cztery pokoje (13,45m2, 13,30m2, 12,21m2, 9,41m2),
- korytarz (11,98m2),
- łazienka (6,80m2).
Dodatkowo na strychu znajduje się około 12m2 powierzchni do własnego zagospodarowania.
Niewątpliwym atutem jest brak skosów na piętrze, dzięki czemu pokoje są bardzo ustawne.

Standard deweloperski obejmuje:
- System rekuperacji
- Pompę ciepła firmy York
- Ogrzewanie podłogowe w całym budynku
- Instalacje pod fotowoltaikę
- Ocieplenie budynku styropianem grafitowym o grubości 20 cm
- Okna trzyszybowe wraz z ciepłym montażem na profilach firmy REHAU, a w salonie okno typu HST na podwalinie (brak mostków termicznych)
- Ocieplenie poddasza i stropu pianą PUR
- Kanalizację sanitarną i deszczową
- Drzwi wejściowe antywłamaniowe z Relingiem
- Na parterze rolety zewnętrzne sterowane elektrycznie
- Biały osprzęt elektryczny
- Wylewane schody na piętro
- Schody na strych techniczne
- Podwójna ściana między lokalami z dylatacją
- Tynk zewnętrzny silikonowy
- Elewacja budynku koloru białego
Zagospodarowanie zewnętrzne:
- Podjazdy, podejście do domu i tarasy wyłożone kostką z polbruku
- Dwa miejsca parkingowe przed domem
- Teren ogrodzony panelami z siatki, furtka na ogród

Pełna infrastruktura drogowa wokół budynku (drogi dojazdowe oraz chodniki wyłożone kostką z polbruku).


 Kupujący jest zwolniony z 2% PCC.

Polecam i zapraszam na prezentację!

KUPUJEMY NIERUCHOMOŚCI ZA GOTÓWKĘ w Szczecinie oraz nad morzem, również zadłużone: mieszkania, domy, działki - płacimy natychmiast

 Powyższe ogłoszenie ma wyłącznie charakter informacyjny. Nie stanowi ono oferty w myśl art. 66 i n. ustawy z dnia 23.04.1964r. Kodeks cywilny (Dz.U. 1964r. Nr 16, poz. 93, ze zm.).

Cena
1 049 000 zł
Cena za m2
7 858 zł
Miejscowość
Dobra
Rodzaj budynku
Bliźniak
Stan prawny
Własność
Rok budowy
2025
Powierzchnia
133 m2
Powierzchnia działki
340 m2
Standard
Stan deweloperski
Liczba pokoi
5
Ogrzewanie
Pompa ciepła
Ciepła woda
Pompa ciepła
Typ kuchni
Otwarta
Dodatkowe
Garaż, Ogród
Wyświetleń
8
Sprawdź ratę kredytu
1 049 000 PLN
7 858 PLN / m2

ELITE nieruchomości

tel. 91 817 17 17

zainteresowania@elite.nieruchomosci.pl

Wyrażam zgodę na przetwarzanie danych
1 049 000 Stan deweloperski
Chcesz otrzymywać podobne oferty?

Skorzystaj z automatycznych powiadomień e-mail o nowych ogłoszeniach

© 2025 Elite Nieruchomości Szczecin - Mieszkania i domy na sprzedaż - Szczecin, Warszewo, Mierzyn, Bezrzecze, Gumieńce