Szczecin, Gumieńce

Domy na Sprzedaż
nr oferty 436456
powierzchnia 139 m2
ilość pokoi 3
piętro parter / 1
standard Stan deweloperski
Piękny szeregowiec na Gumieńcach

Mam przyjemność zaprezentować Państwu bardzo interesujący dom 139m², 4pokojowy w zabudowie szeregowej, znajdujący się na Gumieńcach.
Do nieruchomości przynależy ogród z tarasem, idealny do wypoczynku na świeżym powietrzu, oraz garaż z automatyczną bramą na pilota. Dodatkowo przy domu znajdują się miejsca parkingowe dla mieszkańców i gości.


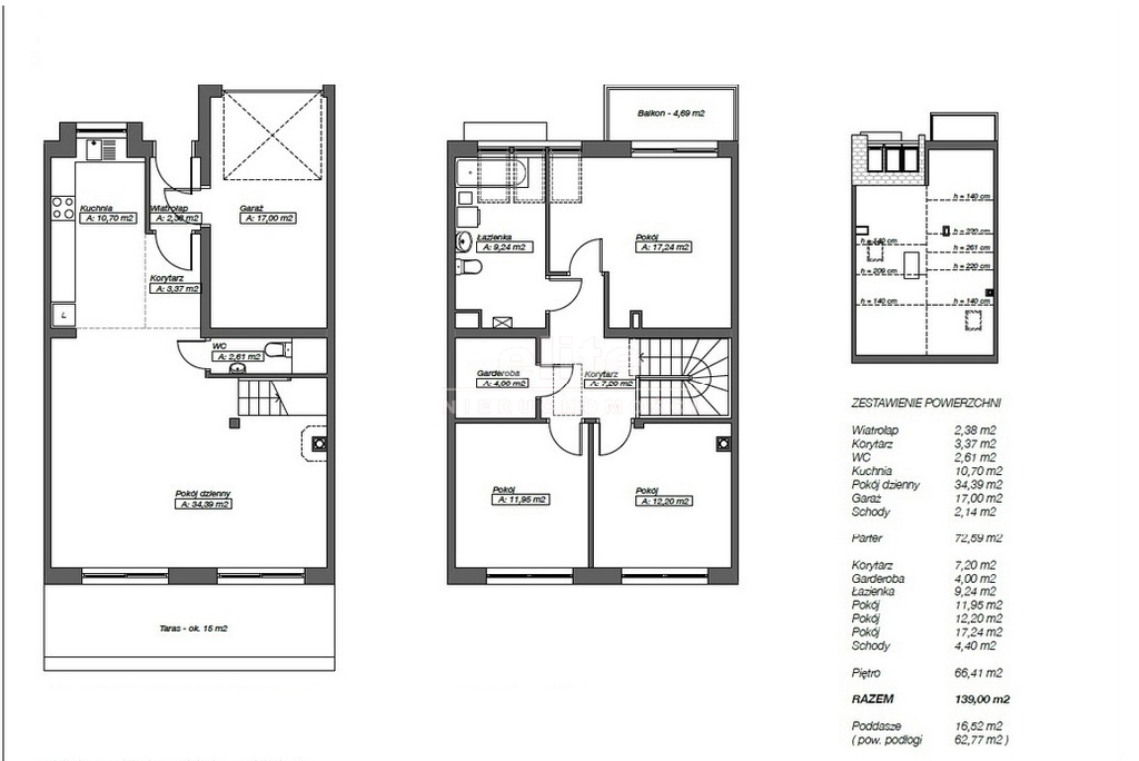
Na powierzchnię użytkową składają się:


Parter:

- Salon z aneksem kuchennym o powierzchni 45,09 m2,
- wc o powierzchni 2,61 m2,
- korytarz o powierzchni 3,37 m2,
- wiatrołap o powierzchni 2,38 m2,
- garaż o powierzchni 17,00 m2,
- schody o powierzchni 2,14 m2.
+ Taras o powierzchni 15m2,
+ Ogród o powierzchni 178 m2.


Piętro:

- Pokój o powierzchni 17,24 m2,
- Pokój o powierzchni 12,20 m2,
- Pokój o powierzchni 11,95 m2,
- Garderoba o powierzchni 4 m2,
- Łazienka o powierzchni 9,24 m2,
- Korytarz o powierzchni   7,20 m2,
- Schody o powierzchni 4,20 m2.
+ Do swojej dyspozycji mają państwo również strych, który nie został wliczony w metraż domu .


Lokalizacja to doskonały wybór dla osób ceniących spokój, bezpieczeństwo i komfort, do centrum miasta zaledwie 15min.
W okolicy znajduje się dużo otwartej przestrzeni, co stanowi ogromny atut tej nieruchomości. W sąsiedztwie dostępne są również apteki, szkoły oraz przedszkola, co czyni to miejsce idealnym dla rodzin.

Nieruchomość sprzedawana w standardzie deweloperskim - Możliwe wykończenie domu pod klienta - odbiór pod klucz.

Serdecznie zapraszam na prezentację – ten dom z pewnością spełni Państwa oczekiwania!

KUPUJEMY NIERUCHOMOŚCI ZA GOTÓWKĘ w Szczecinie oraz nad morzem, również zadłużone: mieszkania, domy, działki - płacimy natychmiast

 Powyższe ogłoszenie ma wyłącznie charakter informacyjny. Nie stanowi ono oferty w myśl art. 66 i n. ustawy z dnia 23.04.1964r. Kodeks cywilny (Dz.U. 1964r. Nr 16, poz. 93, ze zm.).

Cena
1 299 000 zł
Cena za m2
9 345 zł
Miejscowość
Szczecin, Gumieńce
Rodzaj budynku
Terraced
Stan prawny
Własność
Rok budowy
2025
Powierzchnia
139 m2
Powierzchnia działki
178 m2
Kształt działki
Nieregularny
Standard
Stan deweloperski
Liczba pokoi
3
Ogrzewanie
Gazowe
Ciepła woda
Piec gazowy
Typ kuchni
Otwarta
Dodatkowe
Garaż, Ogród
Wyświetleń
10
Sprawdź ratę kredytu
1 299 000 PLN
9 345 PLN / m2

ELITE nieruchomości

tel. 91 817 17 17

zainteresowania@elite.nieruchomosci.pl

Wyrażam zgodę na przetwarzanie danych
1 299 000 Stan deweloperski
Chcesz otrzymywać podobne oferty?

Skorzystaj z automatycznych powiadomień e-mail o nowych ogłoszeniach

© 2025 Elite Nieruchomości Szczecin - Mieszkania i domy na sprzedaż - Szczecin, Warszewo, Mierzyn, Bezrzecze, Gumieńce