Szczecin, Gumieńce

Domy na Sprzedaż
Oferta specjalna
nr oferty
powierzchnia 87 m2
ilość pokoi 4
piętro parter / 1
standard Stan deweloperski
Gumieńce   4 pokoje 88m2 + 2 m. p

    Na sprzedaż nowoczesny dom w zabudowie szeregowej w prestiżowej lokalizacji na Gumieńcach .

Inwestycja, mająca charakter osiedla zamkniętego w pełni zagospodarowanego, z szlabanem  na pilota, drogi wewnętrzne z polbruku z oświetleniem.

Każdy dom   sprzedawany z wyodrębnioną działką (osobna Księga Wieczysta ).
 Do nieruchomości przynależą dwa miejsca parkingowe.

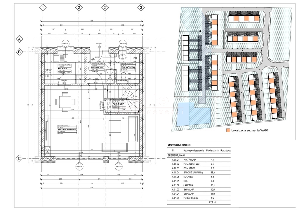
Parter
- pokój dzienny z jadalnią o pow. 28,3m2
- kuchnia 5,8 m2
- pom. gospodarcze z toaletą o pow.  3,3m2
- pom. gospodarcze o pow. 2,1m2
- wiatrołap o pow. 4,1m2

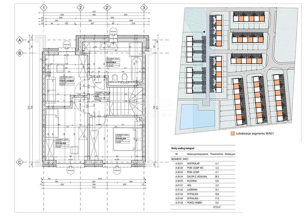
Piętro :
- sypialnia  o pow. 11m2 
- sypialnia o pow.  10,6m2
- sypialnia o pow. 9,2m2
- łazienka o pow. 10,1m2
- hol o pow. 3,4m2 

Poniżej zestawienie użytych materiałów oraz standard wykończenia :

- Ściany nośne porotherm 25 cm + 20cm ocieplenia styropianem grafitowym tynk zewnętrzny silikat.
- ściana między domami - podwójna 18+18 z dylatacją  
- Tynki cementowo-wapienne,
- Przygotowana instalacja elektrycznej pod panele fotowoltaiczne
- Ogrzewanie podłogowe: cały parter i piętro
- Pompa ciepła z zasobnikiem wody

- Okna trzyszybowe, ciepły montaż 
- W salonie bez progowe drzwi tarasowe podnoszono-przesuwne w systemie HS;
- Puszki elewacyjne z zasilaniem pod rolety zewnętrzne elektryczne ( bez pancerzy ) - parter

- W pokojach rozprowadzona instalacja internetowa oraz TV;
- Instalacja elektryczna, hydrauliczna;
- Dachówka ceramiczna
- Strop poddasza ocieplony pianą PUR - paro przepuszczalną


- Elewacja z elementami imitującymi drewno oraz elementami z cegły klinkierowej   
- Drzwi zewnętrzne bezpieczne
- Ogrodzenie między sąsiadami, stalowe kratownice
- Droga wewnętrzna osiedlowa, polbrukowa z oświetleniem.

Dodatkowo za dopłatą możliwość wykonania :
- Systemu rekuperacji
- Montaż klimatyzacji
- Gładzenie ścian i sufitów ( gładź polimerowa)   
- Docieplenie dachu pianą PUR
- Wykonanie tarasu z drewna egzotycznego

Dom został zaprojektowany z naciskiem na funkcjonalność i estetykę, dogodny i szybki dojazd do centrum miasta.
Prowizja 0% od kupującego - prowizję pokrywa sprzedający - rynek pierwotny!
Brak  opłaty PCC, 2 % do Urzędu Skarbowego.
Zapraszam na prezentację.

KUPUJEMY NIERUCHOMOŚCI ZA GOTÓWKĘ w Szczecinie oraz nad morzem, również zadłużone: mieszkania, domy, działki - płacimy natychmiast

 Powyższe ogłoszenie ma wyłącznie charakter informacyjny. Nie stanowi ono oferty w myśl art. 66 i n. ustawy z dnia 23.04.1964r. Kodeks cywilny (Dz.U. 1964r. Nr 16, poz. 93, ze zm.).

Cena
949 000 zł
Cena za m2
10 796 zł
Miejscowość
Szczecin, Gumieńce
Rodzaj budynku
CenterSegment
Stan prawny
Własność
Rok budowy
2025
Powierzchnia
87 m2
Powierzchnia działki
180 m2
Kształt działki
Prostokąt
Standard
Stan deweloperski
Liczba pokoi
4
Ogrzewanie
Pompa ciepła
Ciepła woda
Pompa ciepła
Typ kuchni
Z oknem
Dodatkowe
Garaż, Ogród
Wyświetleń
78
Sprawdź ratę kredytu
949 000 PLN
10 796 PLN / m2

Piotr Byzdra

tel. +48 500 358 321

piotr@elite.nieruchomosci.pl

Wyrażam zgodę na przetwarzanie danych
949 000 Stan deweloperski
Chcesz otrzymywać podobne oferty?

Skorzystaj z automatycznych powiadomień e-mail o nowych ogłoszeniach

© 2026 Elite Nieruchomości Szczecin - Mieszkania i domy na sprzedaż - Szczecin, Warszewo, Mierzyn, Bezrzecze, Gumieńce