Szczecin, os. Zawadzkiego-Klonowica

Lokale na Sprzedaż
nr oferty 430438
powierzchnia 229 m2
piętro parter / 11
standard Do drobnego remontu
Lokal nie tylko pod działalność medyczną

2 poziomowy lokal, położony w miejscu o dużym natężeniu ruchu pieszego na osiedlu Zawadzkiego - Klonowica. Czytelna lokalizacja
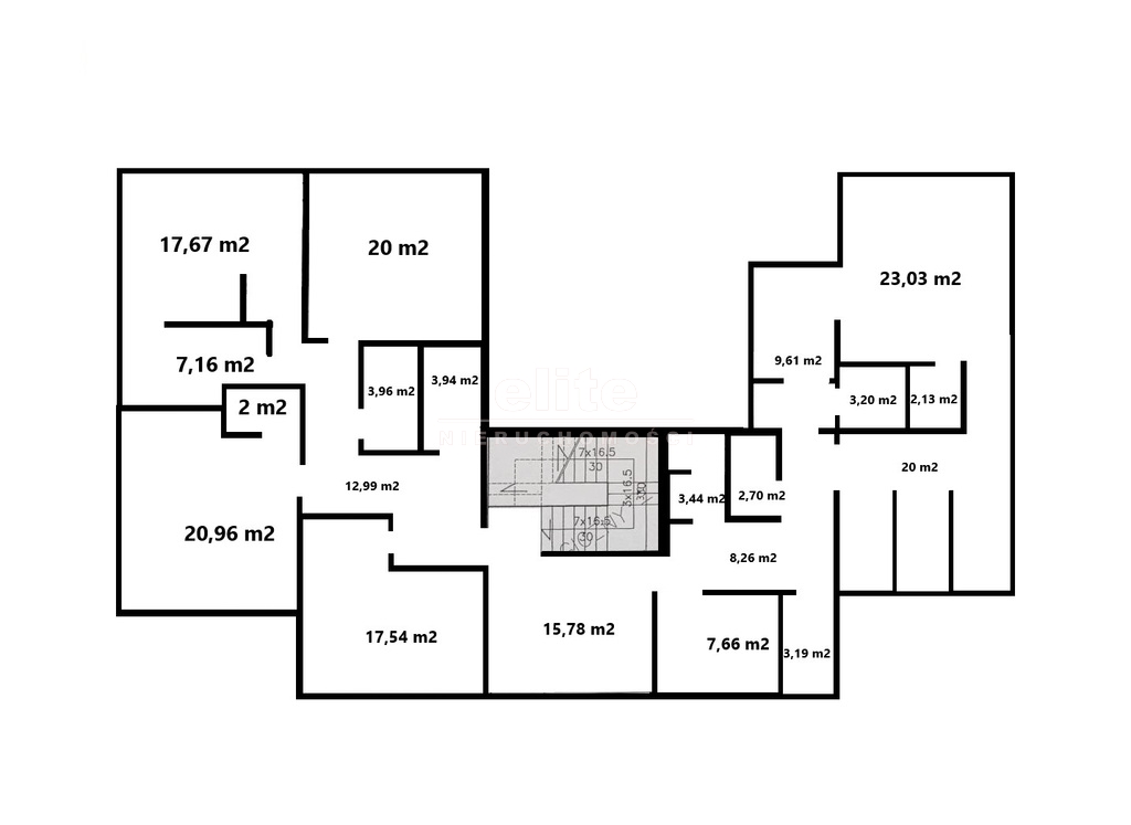
Na powierzchnię lokalu składa się:
PARTER (z wejściem z ulicy, bezpośrednio z chodnika)  - to obszerny hall i wewnętrzna klatka schodowa (szerokie schody prowadzące na piętro)
PIĘTRO
Hall (nadaje się na np. poczekalnię) oraz liczne pomieszczenia dostosowane w chwili obecnej do działalności medycznej:
- sale  o pow.: ok. 9,5 m2;  23 m2, 20 m2,   21 m2,  17,5 m2,   20  m2,
- pomieszczenia wspomagające działalność typu recepcja (7,66 m2), pomieszczenia gospodarcze,  sterylizacja, laboratorium  o pow.  od 1,8 m2 do 3,96 m2,
- cztery toalety + duża łazienka  (7,16 m2)
- oraz powierzchnia usprawniająca komunikację (hall  i korytarze miedzy pokojami).

Powierzchnia całkowita lokalu wynosi 229.85 m2, z czego część zajmuje powierzchnia parteru.
Wysokość pomieszczeń od 4 - 4,20 m
Lokal został był przygotowywany pod konkretny rodzaj działalności medycznej, ale z powodzeniem powierzchnię można wykorzystać pod inna działalność
Ogrzewanie i woda (ciepła i zimna) z sieci miejskiej.
Koszt czynszu administracyjnego (z funduszem remontowym i mediami) -3.400,-PLN

Lokalizacja – dobrze skomunikowane  osiedle  Zawadzkiego -Klonowica. (autobus linii 53, 75, 80 oraz tramwaj 1 i 3), blisko ogólnodostępne parkingi.

KUPUJEMY NIERUCHOMOŚCI ZA GOTÓWKĘ w Szczecinie oraz nad morzem, również zadłużone: mieszkania, domy, działki - płacimy natychmiast

 Powyższe ogłoszenie ma wyłącznie charakter informacyjny. Nie stanowi ono oferty w myśl art. 66 i n. ustawy z dnia 23.04.1964r. Kodeks cywilny (Dz.U. 1964r. Nr 16, poz. 93, ze zm.).

Cena
999 000 zł
Cena za m2
4 346 zł
Miejscowość
Szczecin, os. Zawadzkiego-Klonowica
Rodzaj budynku
Wysoki blok
Stan prawny
Własność
Rok budowy
1979
Powierzchnia
229 m2
Standard
Do drobnego remontu
Wyświetleń
46
Sprawdź ratę kredytu
999 000 PLN
4 346 PLN / m2

ELITE nieruchomości

tel. 91 817 17 17

zainteresowania@elite.nieruchomosci.pl

Wyrażam zgodę na przetwarzanie danych
999 000 Do drobnego remontu
Chcesz otrzymywać podobne oferty?

Skorzystaj z automatycznych powiadomień e-mail o nowych ogłoszeniach

© 2026 Elite Nieruchomości Szczecin - Mieszkania i domy na sprzedaż - Szczecin, Warszewo, Mierzyn, Bezrzecze, Gumieńce