Stargard

Lokale na Wynajem
Obniżka ceny
nr oferty 436812
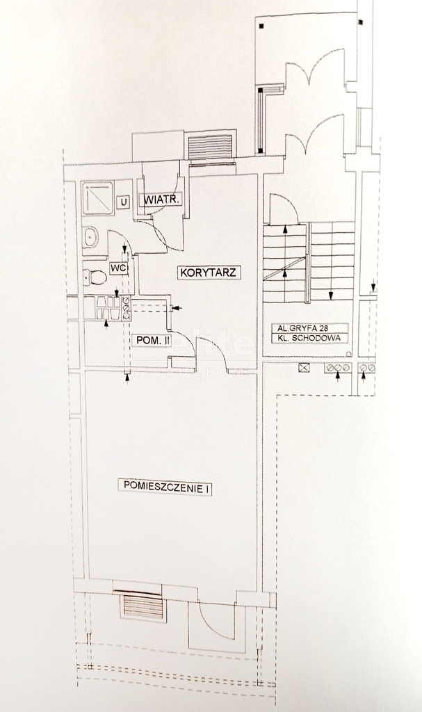
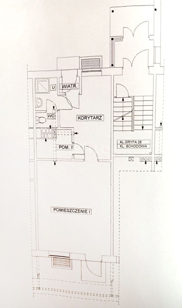
powierzchnia 47 m2
piętro parter / 4
standard Dobry
Lokal przy Aleji Gryfa

Do wynajęcia lokal usługowy w Stargardzie – idealne miejsce na Twój biznes!

Oferujemy do wynajęcia lokal usługowy zlokalizowany przy Alei Gryfa w Stargardzie, w rejonie, gdzie znajduje się już wiele innych lokali usługowych, co zapewnia duży ruch pieszy i samochodowy. To doskonała okazja, aby rozwinąć działalność w jednym z najatrakcyjniejszych miejsc miasta.

Charakterystyka lokalu:

Powierzchnia: 47.15 m²

Pomieszczenia: sala sprzedażowa, korytarz, WC, pomieszczenie socjalne

Dodatkowe atuty:

Drugie wejście od tyłu budynku, co ułatwia zatowarowanie i nie zakłóca działalności

Możliwość parkowania przy tylnym wejściu

Miejskie ogrzewanie

Nowe okna i drzwi wejściowe

Koszty wynajmu:

Cena: 25 zł/m² plus vat
Dodatkowo w czynszu zaliczki na media: prąd, woda, ogrzewanie, wywóz śmieci

Całkowity koszt miesięczny (czynsz brutto plus zaliczki na media): 1900 zł brutto

Lokal idealny dla sklepów, usług, biur czy innych działalności wymagających widoczności oraz łatwego dostępu. Wysoki standard, dobra lokalizacja oraz duży ruch w okolicy sprawiają, że jest to miejsce, które pozwoli Ci rozwinąć Twój biznes.

Zainteresowanych prosimy o kontakt. Zapraszam do obejrzenia lokalu!

KUPUJEMY NIERUCHOMOŚCI ZA GOTÓWKĘ w Szczecinie oraz nad morzem, również zadłużone: mieszkania, domy, działki - płacimy natychmiast

 Powyższe ogłoszenie ma wyłącznie charakter informacyjny. Nie stanowi ono oferty w myśl art. 66 i n. ustawy z dnia 23.04.1964r. Kodeks cywilny (Dz.U. 1964r. Nr 16, poz. 93, ze zm.).

Cena
1 178 zł
Cena za m2
25 zł
Miejscowość
Stargard
Rodzaj budynku
Blok
Rok budowy
1988
Powierzchnia
47 m2
Standard
Dobry
Dodatkowe
Garaż
Wyświetleń
11
1 178 PLN
25 PLN / m2

ELITE nieruchomości

tel. 91 817 17 17

zainteresowania@elite.nieruchomosci.pl

Wyrażam zgodę na przetwarzanie danych
1 178 Dobry
Chcesz otrzymywać podobne oferty?

Skorzystaj z automatycznych powiadomień e-mail o nowych ogłoszeniach

© 2025 Elite Nieruchomości Szczecin - Mieszkania i domy na sprzedaż - Szczecin, Warszewo, Mierzyn, Bezrzecze, Gumieńce