Szczecin, Centrum

Mieszkania na Sprzedaż
Obniżka ceny
nr oferty 438590
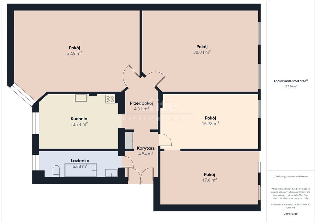
powierzchnia 128 m2
ilość pokoi 4
piętro 2 / 4
standard Do kapitalnego remontu
Gratka dla inwestora !

Przestrzeń, klimat i ogromny potencjał. 128 m² w sercu Szczecina



Na sprzedaż wyjątkowe mieszkanie o powierzchni 128 m², położone na 2. piętrze zadbanej kamienicy z 1930 roku przy ul. Marszałka Józefa Piłsudskiego w Szczecinie. To świetna propozycja zarówno do zamieszkania, jak i jako inwestycja pod wynajem lub lokata kapitału.



Najważniejsze atuty:

  • 4 duże, ustawne pokoje z możliwością swobodnej aranżacji
  • Widna kuchnia z dużą ilością miejsca do przechowywania
  • Łazienka z wanną
  • Funkcjonalny przedpokój z miejscem na zabudowę
  • Balkon – idealne na poranną kawę i odpoczynek


Wnętrze zachowało oryginalne elementy, które budują klimat kamienicy, m.in. piece kaflowe i węglowe. Mieszkanie wymaga remontu, co daje pełną swobodę w stworzeniu przestrzeni dokładnie pod własne potrzeby i gust – od klasyki po nowoczesne rozwiązania.



Lokalizacja:

Świetnie skomunikowane centrum Szczecina. W pobliżu znajdziesz sklepy, szkoły, przedszkola i uczelnie wyższe. Dodatkowym plusem jest sąsiedztwo terenów zielonych, które pozwalają złapać oddech na co dzień.



Ta nieruchomość łączy duży metraż, charakter kamienicy i topową lokalizację – to rzadkie połączenie na rynku.



Serdecznie zapraszam na prezentację!

KUPUJEMY NIERUCHOMOŚCI ZA GOTÓWKĘ w Szczecinie oraz nad morzem, również zadłużone: mieszkania, domy, działki - płacimy natychmiast

 Powyższe ogłoszenie ma wyłącznie charakter informacyjny. Nie stanowi ono oferty w myśl art. 66 i n. ustawy z dnia 23.04.1964r. Kodeks cywilny (Dz.U. 1964r. Nr 16, poz. 93, ze zm.).

Cena
650 000 zł
Cena za m2
5 078 zł
Czynsz administracyjny
900 zł
Miejscowość
Szczecin, Centrum
Rodzaj budynku
Kamienica
Stan prawny
Własność
Rok budowy
1930
Powierzchnia
128 m2
Standard
Do kapitalnego remontu
Piętro
2
Liczba pokoi
4
Ogrzewanie
Piec, Kominkowe, Gazowe
Ciepła woda
Piec gazowy
Typ kuchni
Z oknem
Wyświetleń
5
Sprawdź ratę kredytu
650 000 PLN
5 078 PLN / m2

ELITE nieruchomości

tel. 91 817 17 17

zainteresowania@elite.nieruchomosci.pl

Wyrażam zgodę na przetwarzanie danych
650 000 Do kapitalnego remontu
Chcesz otrzymywać podobne oferty?

Skorzystaj z automatycznych powiadomień e-mail o nowych ogłoszeniach

© 2026 Elite Nieruchomości Szczecin - Mieszkania i domy na sprzedaż - Szczecin, Warszewo, Mierzyn, Bezrzecze, Gumieńce