Mierzyn

Mieszkania na Sprzedaż
Oferta specjalna
Obniżka ceny
nr oferty
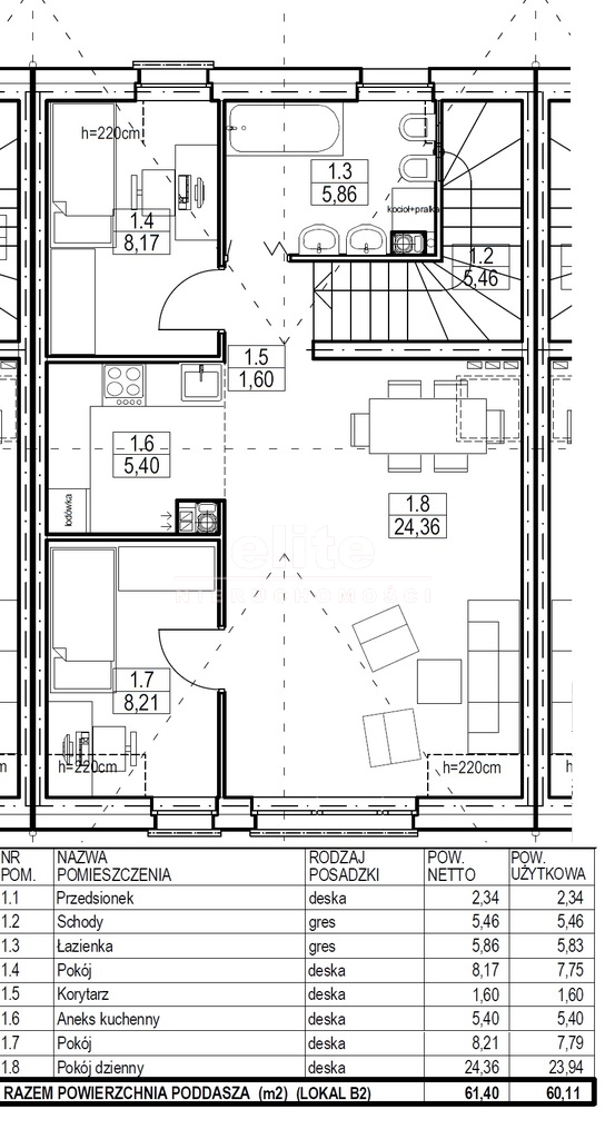
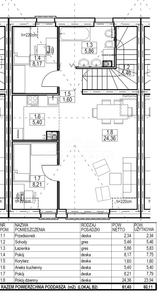
powierzchnia 60 m2
ilość pokoi 3
piętro 1 / 1
standard Idealny
Mierzyn 3 pokojowe + strych 30m2 + 2m. p

Na sprzedaż trzypokojowy, gotowy do oddania, apartament w stanie deweloperskim znajdujący się na pierwszym piętrze w niskim budynku na Mierzynie.

Do nieruchomości w cenie przynależą dwa miejsca postojowe oraz poddasze o pow. ok. 30 m2 

Kameralna inwestycja w budynku tylko sześć mieszkań. Każdy lokal z osobnym wejściem.

Lokal oddawany w stanie deweloperskim :

- piec gazowy kondensacyjny z zasobnikiem
- ogrzewanie podłogowe w każdym pomieszczeniu
- instalacja WOD-KAN z podejściami pod przybory, bez przyborów, lokalizacja wg. projektu.

- strop: nad parterem - betonowy, zbrojony, wylewany
- dach konstrukcja drewniana, prefabrykowana,   dachówka ceramiczna
- tynki wewnętrzne gipsowe, wykonywane maszynowo

- posadzki cementowe, ocieplone styropianem
- okna i drzwi balkonowe PCV trzyszybowe (  profilu Salamander )

- drzwi zewnętrzne bezpieczne
- Instalacja elektryczna, okablowanie z osprzętem wq. projektu ( zasilanie główne trójfazowe z rozdzielnią   ).
- punkty świetlne wg projektu
- Instalacja internetowa i TV .

- Ocieplenie zewnętrzne styropian grafitowy 20cm
- Tynk elewacyjny mineralny lub akrylowy
- Parapety zewnętrzne, blacha ocynkowana malowana proszkowo

- Rynny i rury spustowe z PCV
- Podejścia i podjazdy z kostki betonowej, opaska żwirowa wokół domu
- Teren posprzątany po procesie budowy,

Media Miejskie : woda, kanalizacja, prąd

Kupujący zwolniony z opłaty PCC, 2 % do Urzędu Skarbowego.

Zapraszam na prezentację

KUPUJEMY NIERUCHOMOŚCI ZA GOTÓWKĘ w Szczecinie oraz nad morzem, również zadłużone: mieszkania, domy, działki - płacimy natychmiast

 Powyższe ogłoszenie ma wyłącznie charakter informacyjny. Nie stanowi ono oferty w myśl art. 66 i n. ustawy z dnia 23.04.1964r. Kodeks cywilny (Dz.U. 1964r. Nr 16, poz. 93, ze zm.).

Cena
579 000 zł
Cena za m2
9 632 zł
Miejscowość
Mierzyn
Rodzaj budynku
Niski blok
Stan prawny
Własność
Rok budowy
2025
Powierzchnia
60 m2
Standard
Idealny
Piętro
1
Liczba pokoi
3
Ogrzewanie
Gazowe
Ciepła woda
Piec gazowy
Typ kuchni
Aneks
Dodatkowe
Garaż
Wyświetleń
222
Sprawdź ratę kredytu
579 000 PLN
9 632 PLN / m2

Piotr Byzdra

tel. +48 500 358 321

piotr@elite.nieruchomosci.pl

Wyrażam zgodę na przetwarzanie danych
579 000 Idealny
Chcesz otrzymywać podobne oferty?

Skorzystaj z automatycznych powiadomień e-mail o nowych ogłoszeniach

© 2026 Elite Nieruchomości Szczecin - Mieszkania i domy na sprzedaż - Szczecin, Warszewo, Mierzyn, Bezrzecze, Gumieńce