Szczecin, os. Arkońskie

Mieszkania na Sprzedaż
Obniżka ceny
nr oferty 437238
powierzchnia 74 m2
ilość pokoi 4
piętro parter / 3
standard Bardzo dobry
Magiczne 4 pokoje z ogródkiem, Osiedle Arkońskie.

Mamy dla Państwa   na sprzedaż piękną nieruchomość.
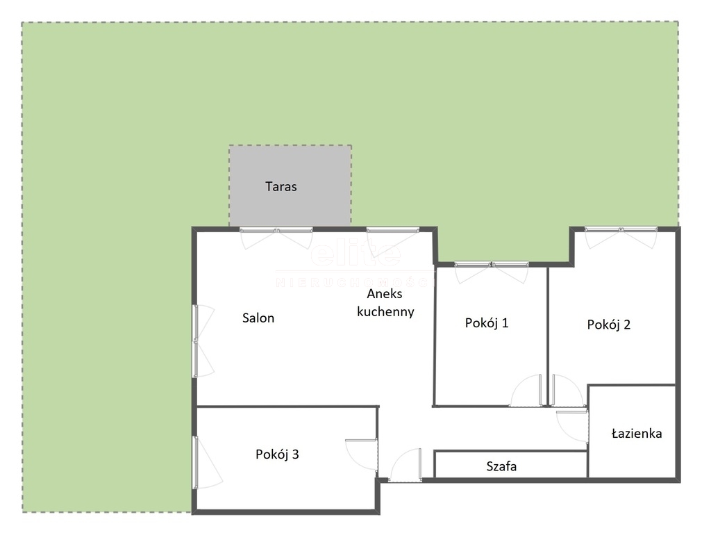
  Mieszkanie składa się z:
- dużego salonu z aneksem kuchennym (26,92 m2) z wyjściem na taras i ogród 91,79m2;
- 3 sypialni (10,35 m2, 10,41 m2, 11,28 m2);
- dużej łazienki (4,53 m2);
- przedpokoju (3,58 m2);
- komunikacji (7,00 m2), która przez całą długość zabudowana jest szafami na wymiar.

Do mieszkania przynależą   2 sąsiadujące miejsca postojowe każde dodatkowo płatne 50.000 zł (zakup obligatoryjny).
Większość mebli może pozostać w mieszkaniu (do uzgodnienia).

Ogrzewanie i   ciepła woda z sieci miejskiej. Czynsz   przy 4 osobach wynosi   ok.550 zł Dodatkowo płatne Enea, SEC i ZWiK wg zużycia.
Wystawa okien: Południe / Zachód.
Mieszkanie wykończone w bardzo wysokim standardzie, na podłodze jasne panele bardzo wysokiej jakości, włączniki świateł dotykowe. W całym mieszkaniu sterowanie: roletami zewnętrznymi, światłem, temperaturą, monitoringiem, ogrzewaniem również za pomocą aplikacji SMART DOM firmy Ampio.
W całym mieszkaniu okna wyposażone w automatyczne rolety antywłamaniowe oraz moskitiery wysokiej jakości. Lokal wyposażony w instalacje alarmową.

Polecam nieruchomość ze względu na bardzo dobra lokalizację, spokojną i piękną okolicę oraz wysoką jakość wykończenia. Mieszkanie na parterze z ogrodem to idealna przestrzeń dla miłośników natury, oferująca prywatną oazę spokoju i wygodny kontakt z zielenią. Jest to doskonałe miejsce do relaksu przy kawie, rodzinnych spotkań na świeżym powietrzu, bezpiecznej zabawy dla dzieci i miejsca dla czworonożnych pupili.
Wygoda wynikająca z braku schodów sprawia, że jest to też dobre rozwiązanie dla osób starszych, a ogród daje dodatkową przestrzeń do przechowywania.
Zapraszam na prezentację.

KUPUJEMY NIERUCHOMOŚCI ZA GOTÓWKĘ w Szczecinie oraz nad morzem, również zadłużone: mieszkania, domy, działki - płacimy natychmiast

 Powyższe ogłoszenie ma wyłącznie charakter informacyjny. Nie stanowi ono oferty w myśl art. 66 i n. ustawy z dnia 23.04.1964r. Kodeks cywilny (Dz.U. 1964r. Nr 16, poz. 93, ze zm.).

Cena
1 050 000 zł
Cena za m2
14 175 zł
Czynsz administracyjny
550 zł
Miejscowość
Szczecin, os. Arkońskie
Rodzaj budynku
Niski blok
Stan prawny
Własność
Rok budowy
2019
Powierzchnia
74 m2
Standard
Bardzo dobry
Liczba pokoi
4
Ogrzewanie
CO miejskie
Ciepła woda
Wodociąg miejski
Typ kuchni
Aneks
Dodatkowe
Winda, Garaż
Wyświetleń
31
Sprawdź ratę kredytu
1 050 000 PLN
14 175 PLN / m2

ELITE nieruchomości

tel. 91 817 17 17

zainteresowania@elite.nieruchomosci.pl

Wyrażam zgodę na przetwarzanie danych
1 050 000 Bardzo dobry
Chcesz otrzymywać podobne oferty?

Skorzystaj z automatycznych powiadomień e-mail o nowych ogłoszeniach

© 2026 Elite Nieruchomości Szczecin - Mieszkania i domy na sprzedaż - Szczecin, Warszewo, Mierzyn, Bezrzecze, Gumieńce