Szczecin, Podjuchy

Mieszkania na Sprzedaż
nr oferty 438520
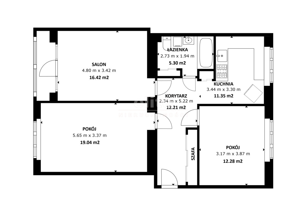
powierzchnia 67 m2
ilość pokoi 3
piętro parter / 4
standard Bardzo dobry
Trzy pokoje na parterze, blisko parku

Na sprzedaż zadbane, 3-pokojowe mieszkanie 67 m² położone na parterze, blisko parku.
Gotowe do wprowadzenia, dobrze utrzymane, czyste i w ładnym, spójnym stylu.
Co jest w środku:
  • salon z oknem na zieloną stronę i wyjściem na balkon
  • dwie oddzielne sypialnie (jedna sypialnia , druga dla dzieci / pokój gościnny / gabinet)
  • kuchnia z oknem 
  • łazienka z wc
  • przedpokój z dużą szafą wnękową ,mieści się tam masa rzeczy
  • rolety zewnętrzne na każdym oknie  
Największy plus tej oferty to lokalizacja, dosłownie 150 m do parku i sporych terenów zielonych. 
Parter to dodatkowy komfort, łatwo wjechać wózkiem, wnieść rower, zakupy, meble.
Mieszkanie ciepłe, suche, bez wilgoci.
Stan: gotowe do wprowadzenia, właściciele dbali o nie na bieżąco.
Dodatkowo ogródek do dyspozycji właściciela 

Czekam na kontakt.

Planujesz skredytować to marzenie-zadzwoń.


KUPUJEMY NIERUCHOMOŚCI ZA GOTÓWKĘ w Szczecinie oraz nad morzem, również zadłużone: mieszkania, domy, działki - płacimy natychmiast

 Powyższe ogłoszenie ma wyłącznie charakter informacyjny. Nie stanowi ono oferty w myśl art. 66 i n. ustawy z dnia 23.04.1964r. Kodeks cywilny (Dz.U. 1964r. Nr 16, poz. 93, ze zm.).

Cena
590 000 zł
Cena za m2
8 711 zł
Czynsz administracyjny
750 zł
Miejscowość
Szczecin, Podjuchy
Rodzaj budynku
Niski blok
Stan prawny
Własność
Rok budowy
1960
Powierzchnia
67 m2
Standard
Bardzo dobry
Liczba pokoi
3
Typ kuchni
Oddzielna
Wyświetleń
8
Sprawdź ratę kredytu
590 000 PLN
8 711 PLN / m2

ELITE nieruchomości

tel. 91 817 17 17

zainteresowania@elite.nieruchomosci.pl

Wyrażam zgodę na przetwarzanie danych
590 000 Bardzo dobry
Chcesz otrzymywać podobne oferty?

Skorzystaj z automatycznych powiadomień e-mail o nowych ogłoszeniach

© 2026 Elite Nieruchomości Szczecin - Mieszkania i domy na sprzedaż - Szczecin, Warszewo, Mierzyn, Bezrzecze, Gumieńce