Szczecin, Pogodno

Mieszkania na Sprzedaż
nr oferty 424514
powierzchnia 321 m2
ilość pokoi 7
piętro parter / 2
standard Do remontu
Willa na starym Pogodnie z możliwością rozbudowy

Na sprzedaż poniemiecka willa usytuowana w doskonałej lokalizacji na starym Pogodnie.
Obecny układ domu to dwa oddzielne mieszkania, plus strych do adaptacji co stanowi dodatkowy atut dla potencjalnych inwestorów czy nabywców.
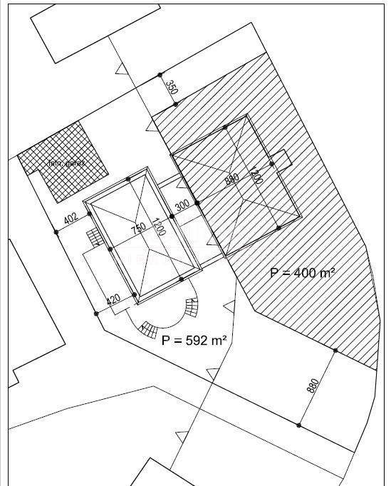
Dodatkowo istnieje możliwość  rozbudowy  od strony ogrodu. 


BUDYNEK

Dom wolnostojący podpiwniczony zbudowany w 1927 r.
Nieruchomość posadowiona jest na dużej działce 992 m2   z garażem wolnostojącym na 2 auta.
Ogród z licznymi nasadzeniami gwarantuje spokój i intymność.
Dom posiada powierzchnię całkowitą 321,04m i   użytkową 160,52m2.

Składa się z 3 kondygnacji: piwnica, parter i piętro

Parter to:
     • 3 przestronne pokoje
     • kuchnia
     • łazienka
     • wc
     • korytarz
       
Piętro:
     • 4 pokoje
     • kuchnia
     • łazienka
     • wc
     • korytarz

LOKALIZACJA

Tuż przy Parku Kasprowicza, Syrenich Stawach, Różanki i Arkonce. Blisko   komunikacja miejska, sklepy i ośrodki użyteczności publicznej.
W sąsiedztwie domy jednorodzinne i rezydencje. Lokalizacja domu to największy atut tej nieruchomości.



Zapraszam na prezentację.
Klucze w biurze

KUPUJEMY NIERUCHOMOŚCI ZA GOTÓWKĘ w Szczecinie oraz nad morzem, również zadłużone: mieszkania, domy, działki - płacimy natychmiast

 Powyższe ogłoszenie ma wyłącznie charakter informacyjny. Nie stanowi ono oferty w myśl art. 66 i n. ustawy z dnia 23.04.1964r. Kodeks cywilny (Dz.U. 1964r. Nr 16, poz. 93, ze zm.).

Cena
2 750 000 zł
Cena za m2
8 877 zł
Miejscowość
Szczecin, Pogodno
Rodzaj budynku
Willa
Stan prawny
Własność
Rok budowy
1927
Powierzchnia
321 m2
Powierzchnia działki
992 m2
Standard
Do remontu
Liczba pokoi
7
Typ kuchni
Oddzielna
Dodatkowe
Garaż
Wyświetleń
83
Sprawdź ratę kredytu
2 750 000 PLN
8 877 PLN / m2

ELITE nieruchomości

tel. 91 817 17 17

zainteresowania@elite.nieruchomosci.pl

Wyrażam zgodę na przetwarzanie danych
2 750 000 Do remontu
Chcesz otrzymywać podobne oferty?

Skorzystaj z automatycznych powiadomień e-mail o nowych ogłoszeniach

© 2025 Elite Nieruchomości Szczecin - Mieszkania i domy na sprzedaż - Szczecin, Warszewo, Mierzyn, Bezrzecze, Gumieńce