Szczecin, Pogodno

Mieszkania na Sprzedaż
Obniżka ceny
nr oferty 436119
powierzchnia 44 m2
ilość pokoi 3
piętro 2 / 3
standard Do kapitalnego remontu
3 pokoje-1.piętro, do remontu, POGODNO

SZCZECIN POGODNO | 44,6 m² | 3 POKOJE |1. PIĘTRO 

Szukasz idealnej inwestycji lub miejsca do stworzenia mieszkania dla siebie?
Ta nieruchomość w kameralnej, cichej części Pogodna czeka na Twoją wizję!


Lokalizacja i Budynek
  • Lokalizacja: Prestiżowe Pogodno (cicha uliczka), jedna z najbardziej pożądanych dzielnic Szczecina.
  • Budynek: niski 2-piętrowy budynek z 1920 r.
  • Stan budynku: Ocieplony, klatki schodowe w trakcie remontu.
  • Piętro: Idealne 1. piętro.
  • Okolica: Cicha, zielona, spokojna i jednocześnie świetnie skomunikowana z centrum.

Parametry Mieszkania
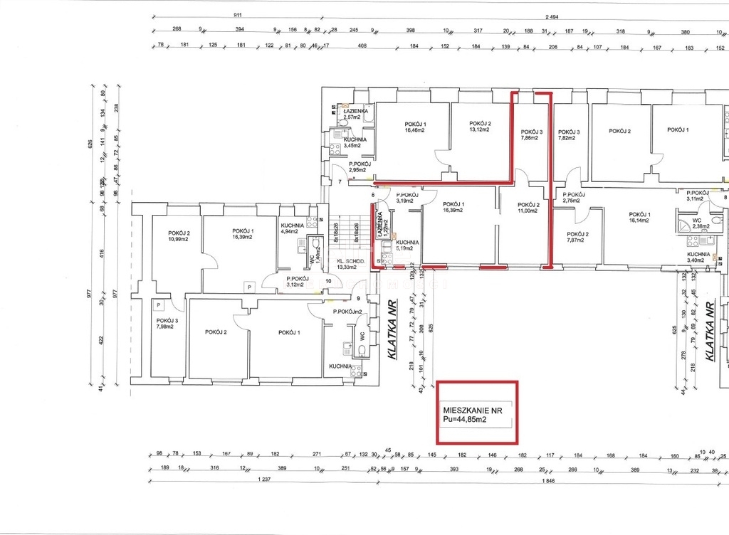
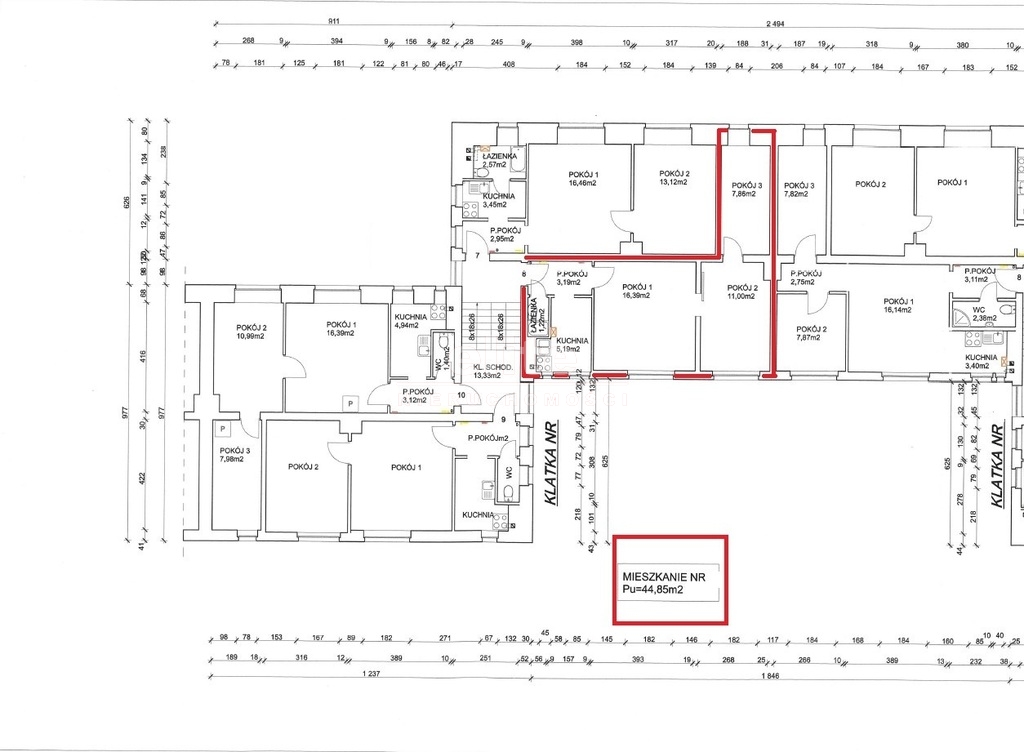
  • Powierzchnia: 44,6 m².
  • Układ: 3 pokoje (2 przechodnie), kuchnia z oknem, łazienka i przedpokój.
  • Stan: Do gruntownego remontu – masz pełną dowolność aranżacji!
  • Ogrzewanie: Własny piec gazowy (instalacja grzewcza gazowa).
  • Okna: Wymienione na plastikowe.


Wymiary pomieszczeń
  • Pokój 1 - 16,39 m2
  • Pokój 2- 11 m2
  • Pokój 3- 7,86 m2
  • Kuchnia - 5,19 m2
  • P.pok - 3,19 m2
  • Łazienka - 1,22 m2


Kluczowe Atuty
  • Potencjał: Idealne do przearanżowania pod własny gust lub na cele inwestycyjne (np. wynajem ).
  • Koszty: Bardzo niski czynsz.
  • Dodatki: Przynależne dwie piwnice.
  • Lokalizacja: Adres, który zawsze się obroni – Pogodno!
  • Parking: Darmowe rotacyjne miejsca parkingowe na ulicy, brak strefy.

Stan prawny:
Pełna własność, KW, brak obciążeń.

Zapraszam do kontaktu.
Polecam!



KUPUJEMY NIERUCHOMOŚCI ZA GOTÓWKĘ w Szczecinie oraz nad morzem, również zadłużone: mieszkania, domy, działki - płacimy natychmiast

 Powyższe ogłoszenie ma wyłącznie charakter informacyjny. Nie stanowi ono oferty w myśl art. 66 i n. ustawy z dnia 23.04.1964r. Kodeks cywilny (Dz.U. 1964r. Nr 16, poz. 93, ze zm.).

Cena
365 000 zł
Cena za m2
8 185 zł
Czynsz administracyjny
300 zł
Miejscowość
Szczecin, Pogodno
Rodzaj budynku
Niski blok
Stan prawny
Własność
Rok budowy
1920
Powierzchnia
44 m2
Standard
Do kapitalnego remontu
Piętro
2
Liczba pokoi
3
Ogrzewanie
Gazowe
Ciepła woda
Piec gazowy
Typ kuchni
Z oknem
Wyświetleń
31
Sprawdź ratę kredytu
365 000 PLN
8 185 PLN / m2

ELITE nieruchomości

tel. 91 817 17 17

zainteresowania@elite.nieruchomosci.pl

Wyrażam zgodę na przetwarzanie danych
365 000 Do kapitalnego remontu
Chcesz otrzymywać podobne oferty?

Skorzystaj z automatycznych powiadomień e-mail o nowych ogłoszeniach

© 2025 Elite Nieruchomości Szczecin - Mieszkania i domy na sprzedaż - Szczecin, Warszewo, Mierzyn, Bezrzecze, Gumieńce